Descripción
Nave industrial tipo C con edificio corporativo ubicado en Sant Just Desvern Centro. Situada en una zona estratégica con excelentes comunicaciones gracias a su proximidad a las principales vías de acceso: la B-23, la A-2 y la N-340, lo que permite una conexión rápida con Barcelona y municipios del entorno. A tan solo 20 minutos del Aeropuerto de Barcelona y de Sants Estación. El área dispone además de transporte público cercano.
Características de la propiedad
- Superficie total del conjunto: 5.155 m² (4.210 m² de nave industrial + 945 m² de edificio corporativo).
- Tipo de nave industrial: Tipo C.
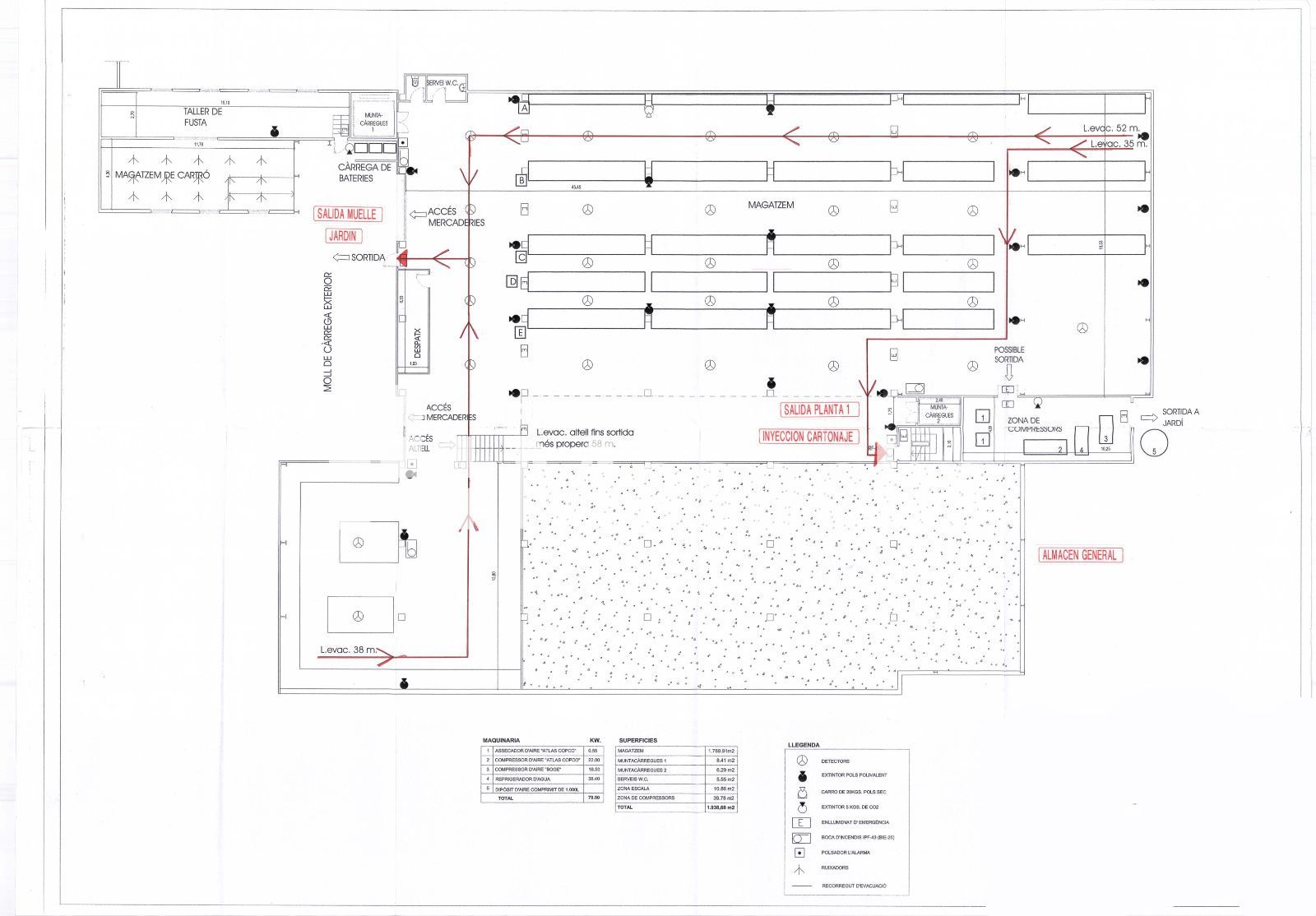
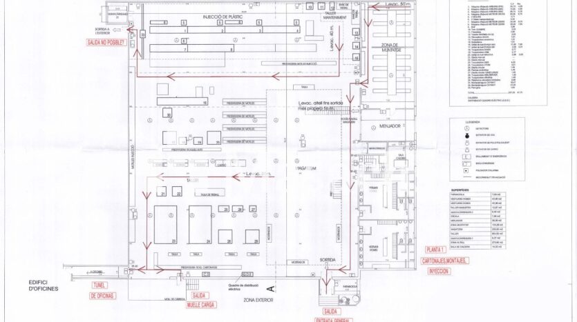
- Superficie total: 4.210 m².
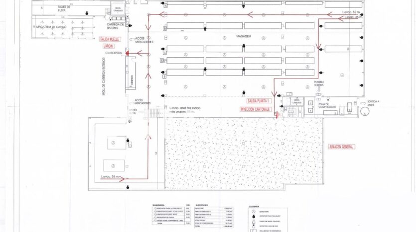
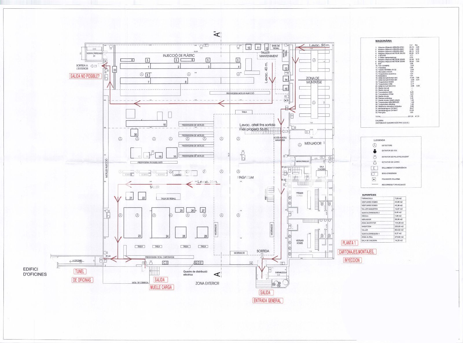
- Planta baja: 1.364 m² útiles, 6 m de altura, acceso para camiones, 2 muelles de carga, aseos, vestuarios, comedor, acceso peatonal y puente grúa de 500 kg.
- Planta semi-sótano: 1.938 m² con 5 m de altura y acceso directo para camiones desde la calle.
- Altillo: 618 m².
- Comunicaciones internas: Ambas plantas conectadas por 2 montacargas mixtos de 1.000 kg.
- Estructura:
– Pilares y forjado de la planta semi-sótano y forjado de planta primera construidos en hormigón.
– Pilares y vigas de planta primera en hierro ignifugado.
– Cerramiento y cubierta en chapa simple.
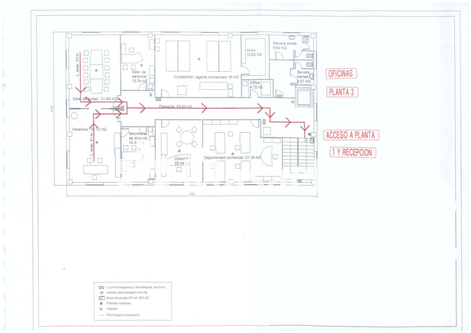
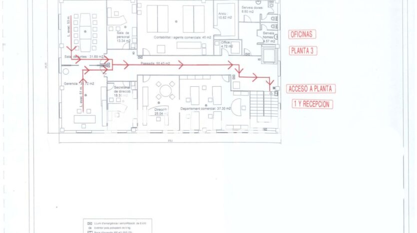
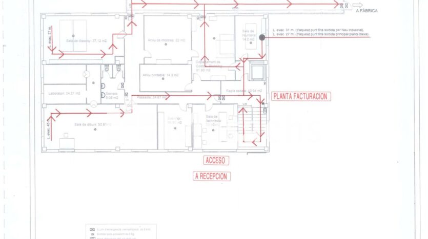
Edificio corporativo de oficinas
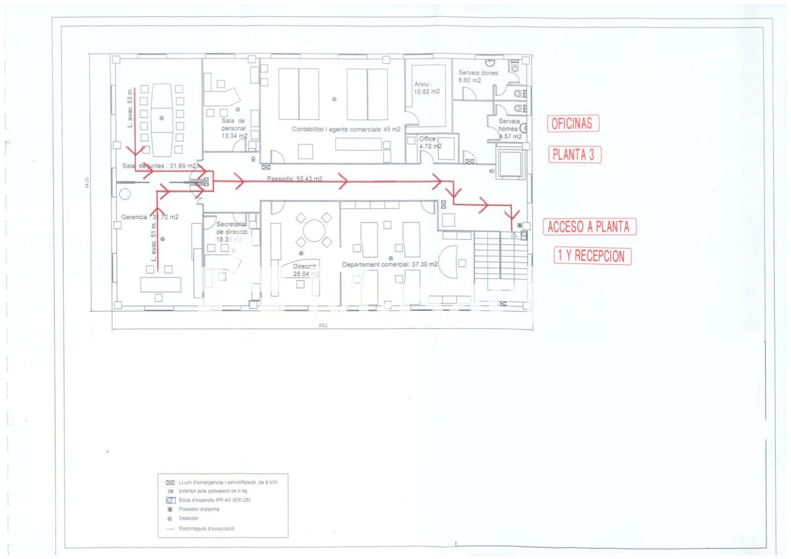
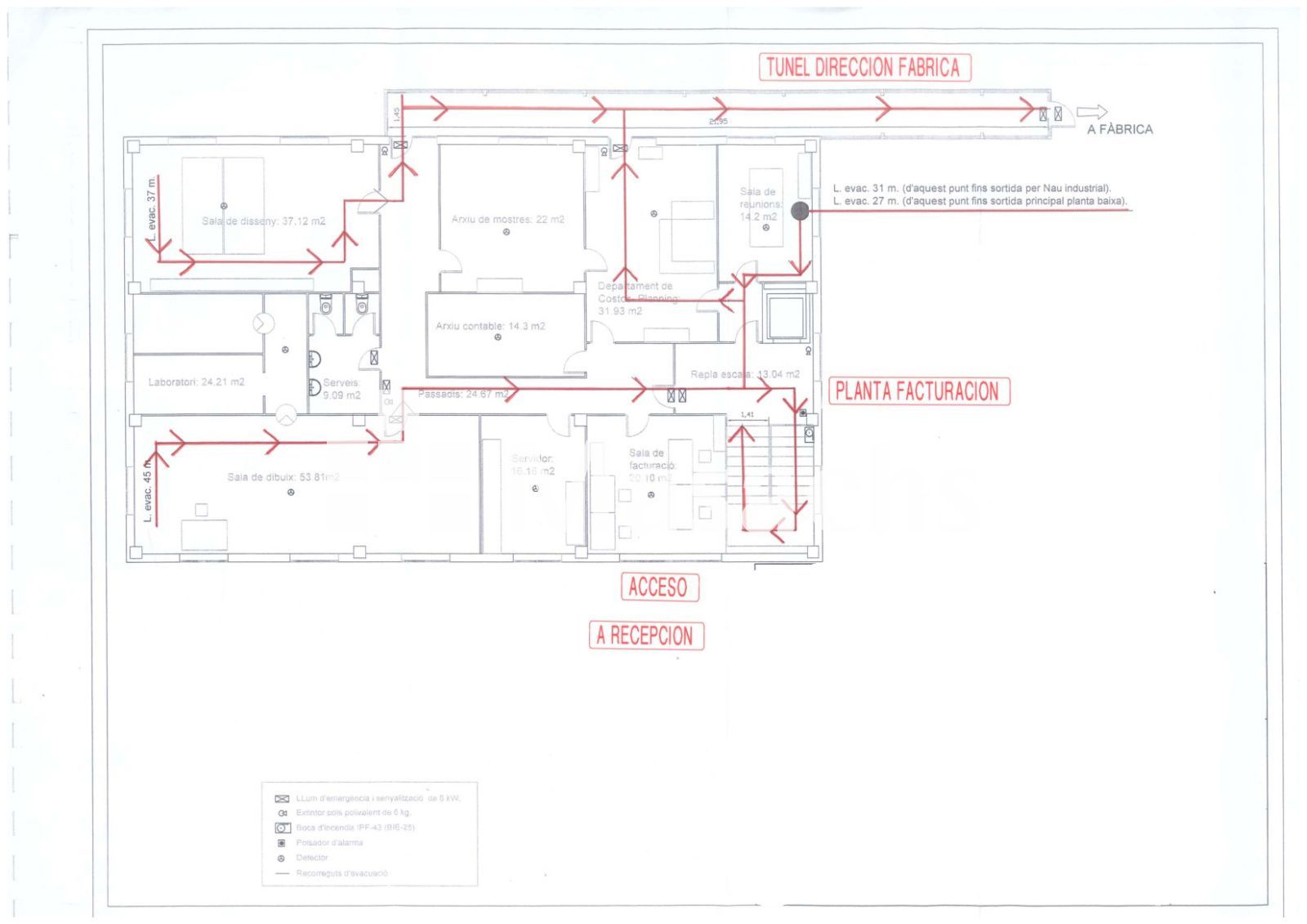
- Superficie total: 945 m².
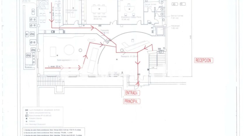
- Distribución: 3 plantas de oficinas de 315 m² cada una, con abundante luz natural.
- Conexión entre plantas: Ascensor y escalera.
- Planta sótano: 290 m² destinados a almacén o parking.
- Estructura y fachada: Construcción en hormigón con pilares y forjados; fachada de muro cortina de chapa y ventanas de cristal.
Servicios e instalaciones
- Suministros activos: Agua y electricidad dados de alta.
- Acometida disponible: Gas.
- Muelles de carga: Total de 4 muelles (2 en planta baja + 2 en semi-sótano).
- Accesos para camiones: En ambas plantas de la nave.
- Montacargas: 2 montacargas mixtos de 1.000 kg.
Uso ideal
Ideal para empresas que necesiten un conjunto industrial-corporativo de gran capacidad, con amplias áreas de producción o logística, oficinas modernas y representativas, y excelentes accesos tanto para vehículos pesados como para trabajadores y visitantes.
Ventajas de la propiedad
- Conjunto completo: nave industrial + edificio corporativo totalmente independiente.
- Accesibilidad excepcional con conexión directa a B-23, A-2 y N-340.
- 4.210 m² de nave con muelles, puente grúa, montacargas y accesos para camiones.
- Edificio corporativo de 945 m² con ascensor, plantas diáfanas y sótano para almacén o parking.
- Cercanía al aeropuerto y a estaciones clave como Sants Estación.
- Disponibilidad de transporte público en la zona.

