Descripció
Nau industrial tipus C amb edifici corporatiu ubicada al centre de Sant Just Desvern. Situada en una zona estratègica amb excel·lents comunicacions gràcies a la seva proximitat a les principals vies d’accés: la B-23, l’A-2 i la N-340, fet que permet una connexió ràpida amb Barcelona i els municipis de l’entorn. A només 20 minuts de l’Aeroport de Barcelona i de l’Estació de Sants. L’àrea també disposa de transport públic proper.
Característiques de la propietat
- Superfície total del conjunt: 5.155 m² (4.210 m² de nau industrial + 945 m² d’edifici corporatiu).
- Tipus de nau industrial: Tipus C.
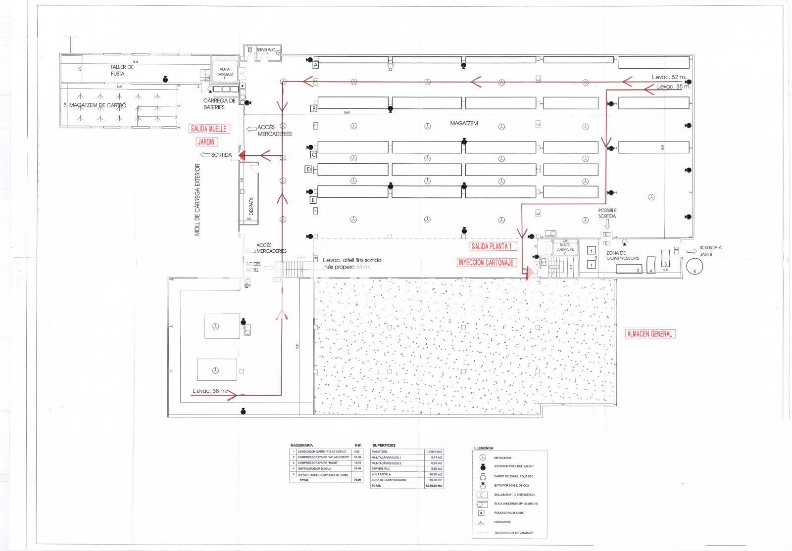
- Superfície total nau: 4.210 m².
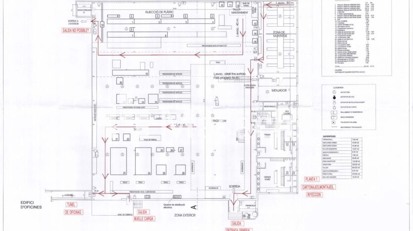
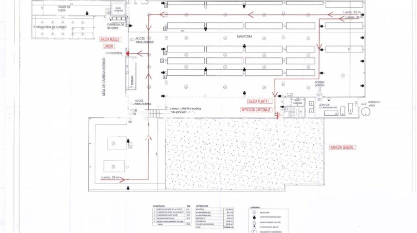
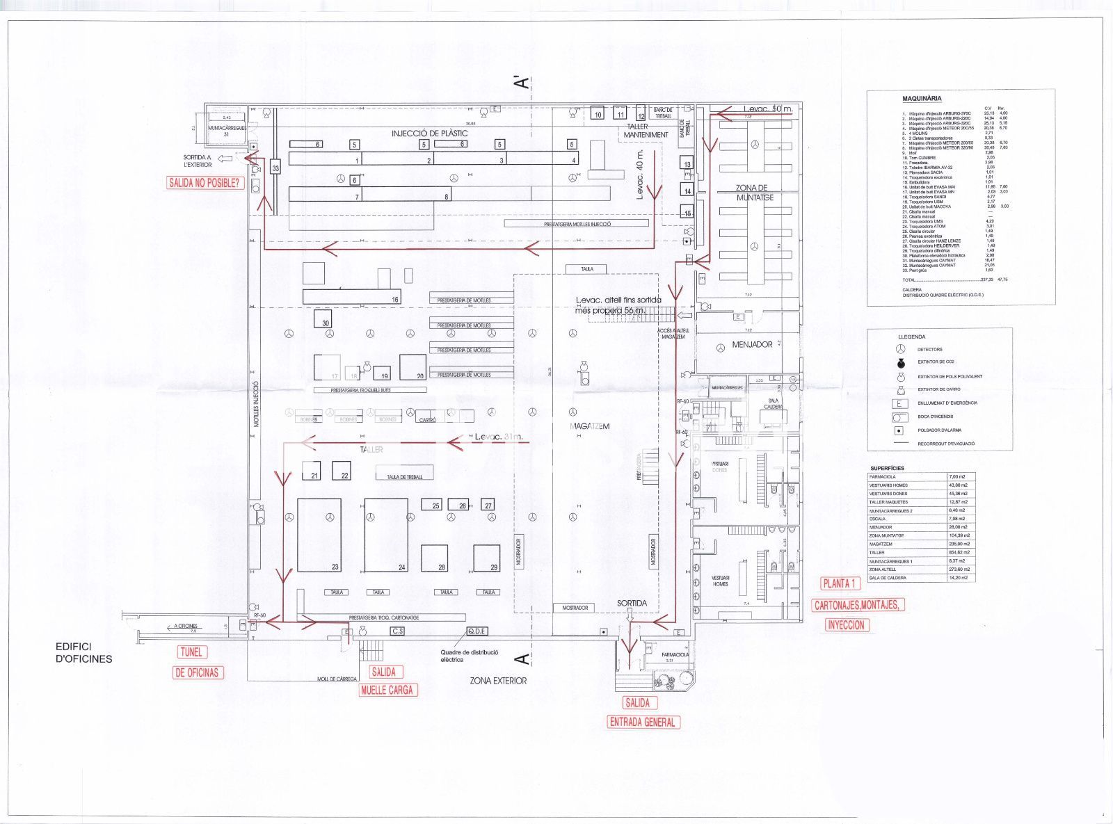
- Planta baixa: 1.364 m² útils, 6 m d’alçada, accés per a camions, 2 molls de càrrega, lavabos, vestidors, menjador, accés de vianants i pont grua de 500 kg.
- Planta semi-soterrani: 1.938 m² amb 5 m d’alçada i accés directe per a camions des del carrer.
- Altell: 618 m².
- Comunicacions internes: Ambdues plantes connectades per 2 muntacàrregues mixtos de 1.000 kg.
- Estructura:
– Pilars i forjat de la planta semi-soterrani i forjat de planta primera construïts en formigó.
– Pilars i bigues de planta primera en ferro ignifugat.
– Tancament i coberta en xapa simple.
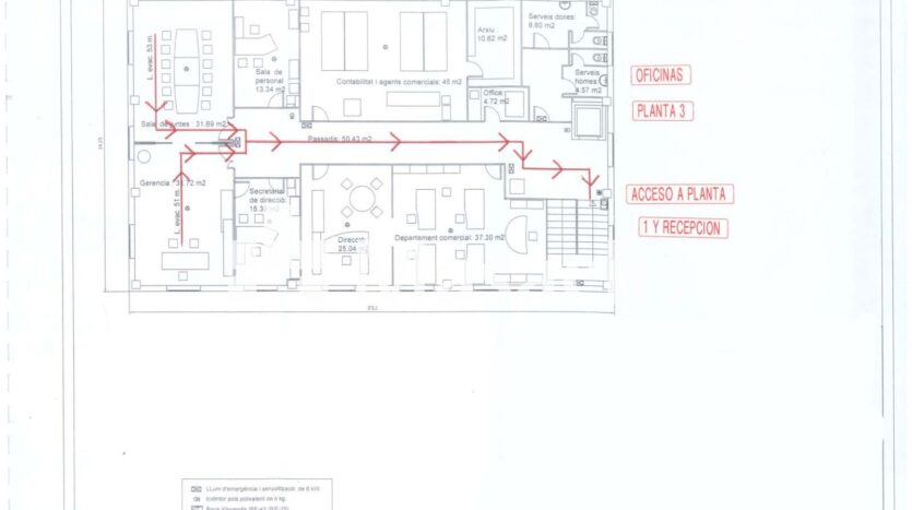
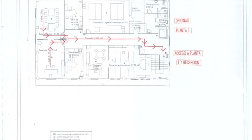
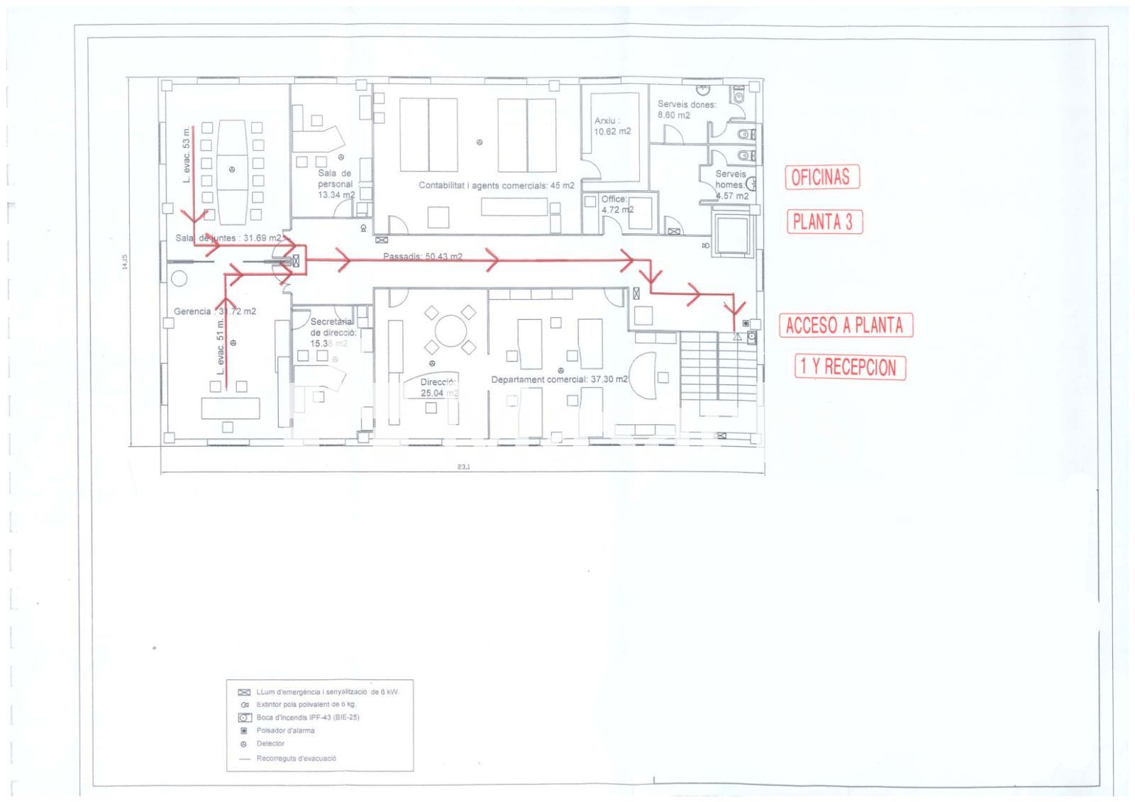
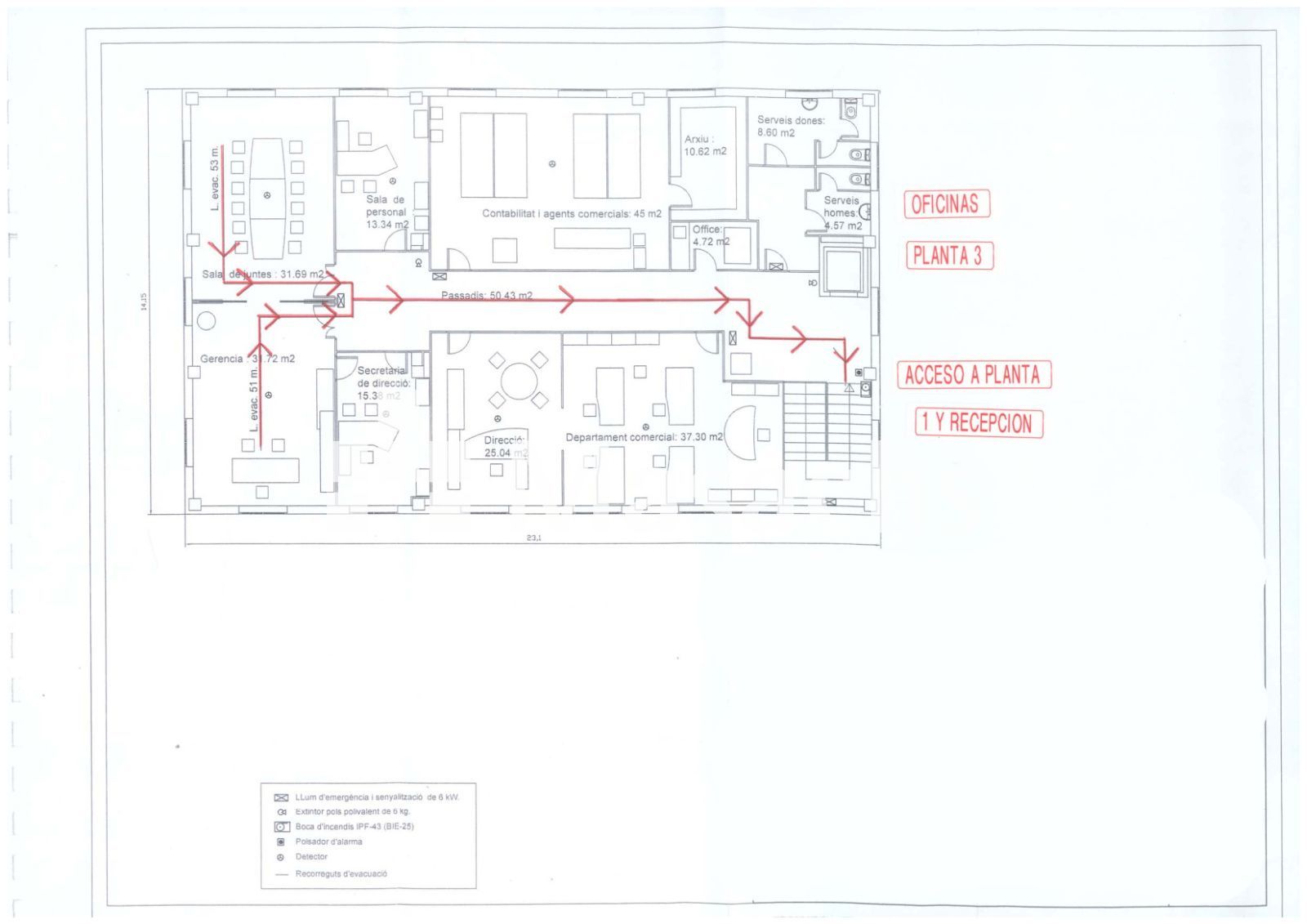
Edifici corporatiu d’oficines
- Superfície total: 945 m².
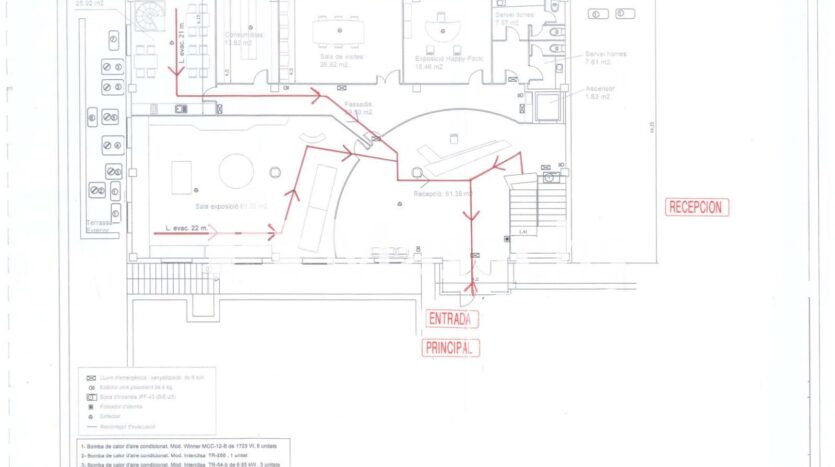
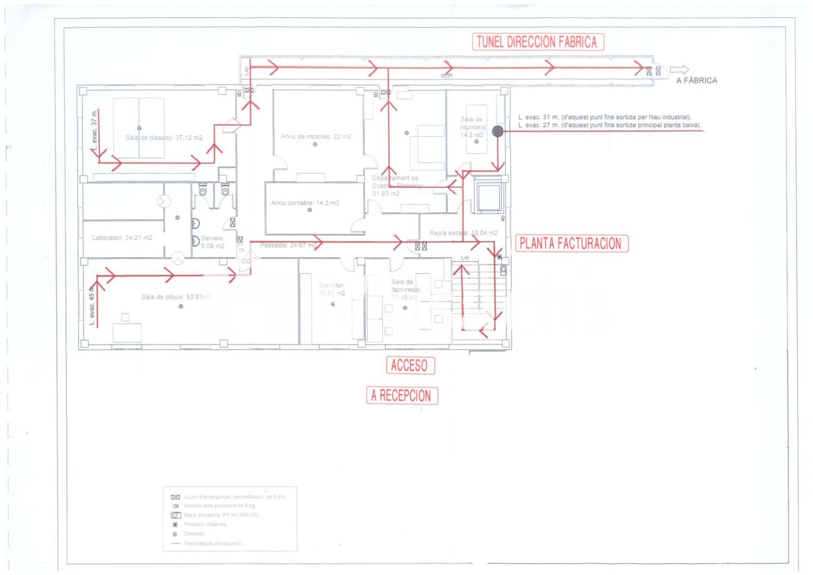
- Distribució: 3 plantes d’oficines de 315 m² cadascuna, amb abundant llum natural.
- Connexió entre plantes: Ascensor i escala.
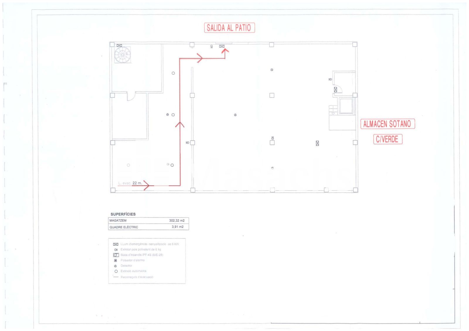
- Planta soterrani: 290 m² destinats a magatzem o aparcament.
- Estructura i façana: Construcció en formigó amb pilars i forjats; façana de mur cortina de xapa i finestres de vidre.
Serveis i instal·lacions
- Subministraments actius: Aigua i electricitat donades d’alta.
- Acometida disponible: Gas.
- Molls de càrrega: Total de 4 molls (2 a planta baixa + 2 al semi-soterrani).
- Accesos per a camions: A ambdues plantes de la nau.
- Muntacàrregues: 2 muntacàrregues mixtos de 1.000 kg.
Ús ideal
Ideal per a empreses que necessitin un conjunt industrial-corporatiu de gran capacitat, amb àmplies zones de producció o logística, oficines modernes i representatives, i excel·lents accessos tant per a vehicles pesants com per a treballadors i visitants.
Avantatges de la propietat
- Conjunt complet: nau industrial + edifici corporatiu totalment independent.
- Accessibilitat excepcional amb connexió directa a la B-23, l’A-2 i la N-340.
- 4.210 m² de nau amb molls, pont grua, muntacàrregues i accessos per a camions.
- Edifici corporatiu de 945 m² amb ascensor, plantes diàfanes i soterrani per a magatzem o aparcament.
- Proximitat a l’aeroport i a estacions clau com l’Estació de Sants.
- Disponibilitat de transport públic a la zona.




