Description
Type C industrial warehouse with corporate building located in Sant Just Desvern Center. Positioned in a strategic area with excellent transport links thanks to its proximity to the main access roads: B-23, A-2 and N-340, allowing fast connections to Barcelona and nearby municipalities. Only 20 minutes from Barcelona Airport and Sants Station. The area also offers nearby public transport.
Property Features
- Total complex area: 5,155 m² (4,210 m² industrial warehouse + 945 m² corporate building).
- Warehouse type: Type C.
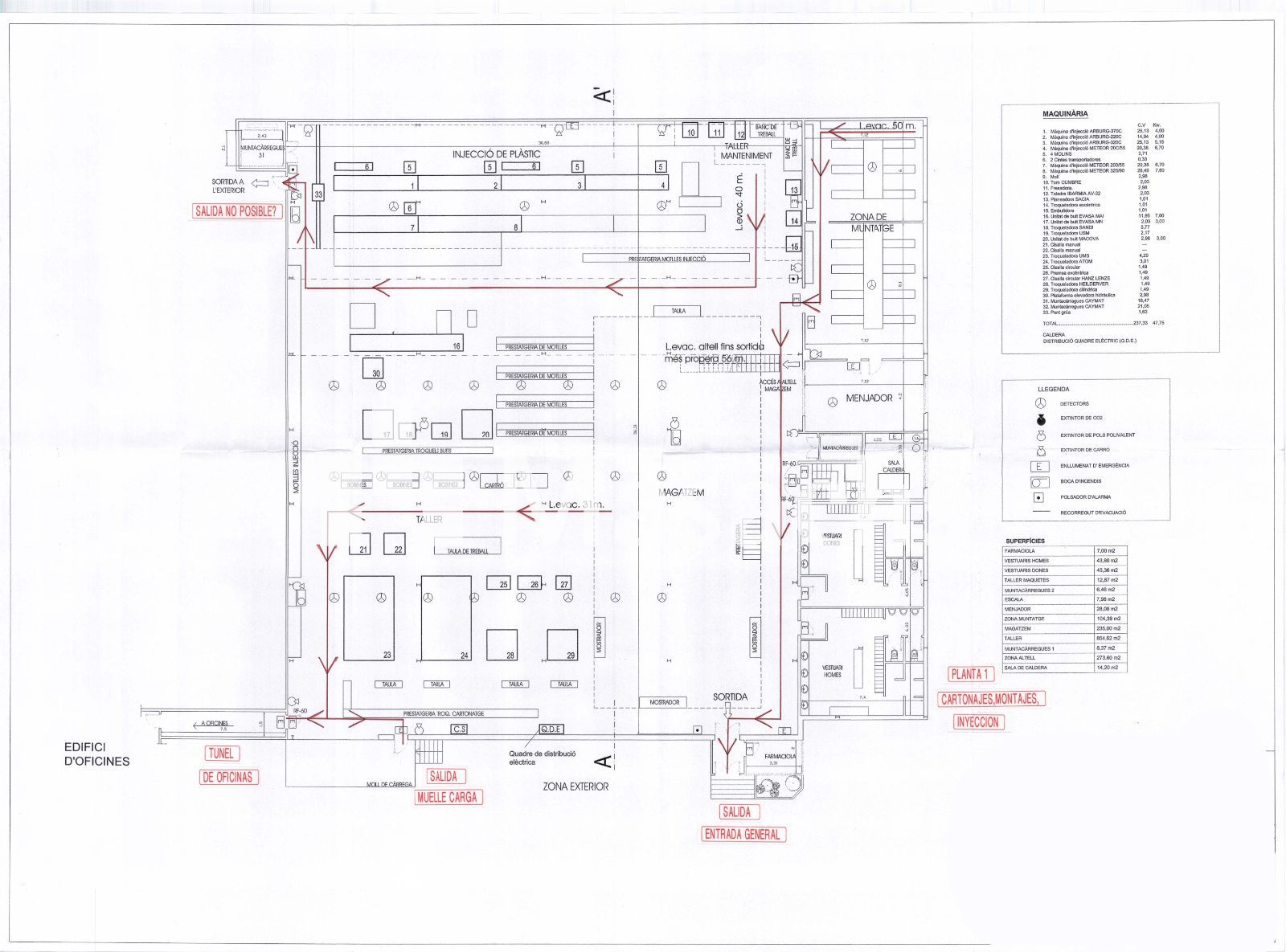
- Total warehouse area: 4,210 m².
- Ground floor: 1,364 m² usable, 6 m height, truck access, 2 loading docks, restrooms, locker rooms, dining area, pedestrian access and 500 kg overhead crane.
- Semi-basement floor: 1,938 m² with 5 m height and direct truck access from the street.
- Mezzanine: 618 m².
- Internal connections: Both floors connected by 2 mixed freight elevators of 1,000 kg.
- Structure:
– Columns and slab of the semi-basement and first floor built in concrete.
– Columns and beams of the first floor made of fireproofed iron.
– Enclosure and roof made of single sheet metal.
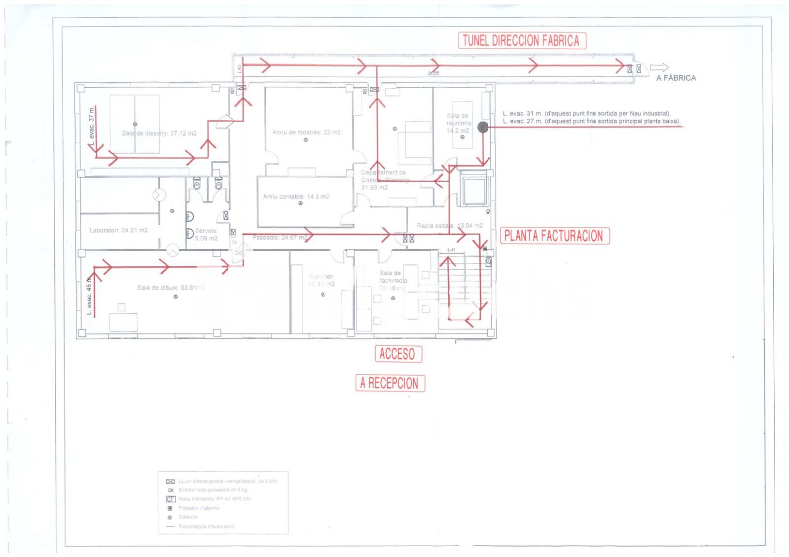
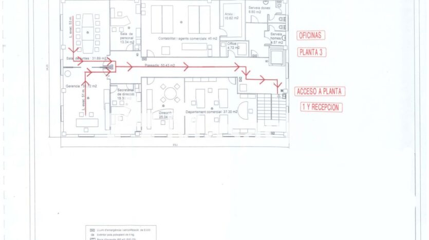
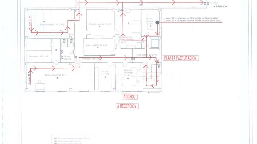
Corporate Office Building
- Total area: 945 m².
- Layout: 3 office floors of 315 m² each, with abundant natural light.
- Vertical connection: Elevator and staircase.
- Basement floor: 290 m² intended for storage or parking.
- Structure and façade: Concrete structure with columns and slabs; curtain wall façade with sheet metal and glass windows.
Services and Installations
- Active utilities: Water and electricity connected.
- Available connection: Gas.
- Loading docks: Total of 4 docks (2 on ground floor + 2 on semi-basement).
- Truck access: On both warehouse floors.
- Freight elevators: 2 mixed freight elevators of 1,000 kg.
Ideal Use
Ideal for companies requiring a large industrial-corporate complex with extensive production or logistics areas, modern and representative offices, and excellent access for heavy vehicles, employees and visitors.
Property Advantages
- Complete complex: industrial warehouse + fully independent corporate building.
- Exceptional accessibility with direct connection to B-23, A-2 and N-340.
- 4,210 m² warehouse with docks, overhead crane, freight elevators and truck access.
- 945 m² corporate building with elevator, open-plan floors and basement for storage or parking.
- Close to the airport and key transport hubs such as Sants Station.
- Public transport available in the area.

