Descripción
Ubicación y accesibilidad
Nave industrial en venta situada en Mercabarna, una de las áreas industriales y logísticas más estratégicas de Barcelona. Su ubicación ofrece una excelente conexión con las principales vías de comunicación, como la B-10, B-20, B-23, A-2 y C-32, facilitando el acceso al puerto de Barcelona (6 km) y al aeropuerto de El Prat (12 km).
Características de la nave
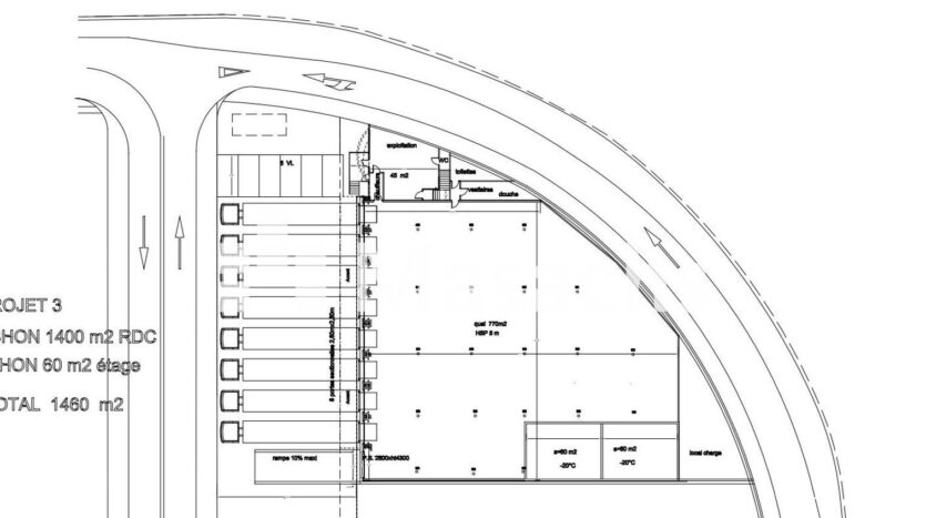
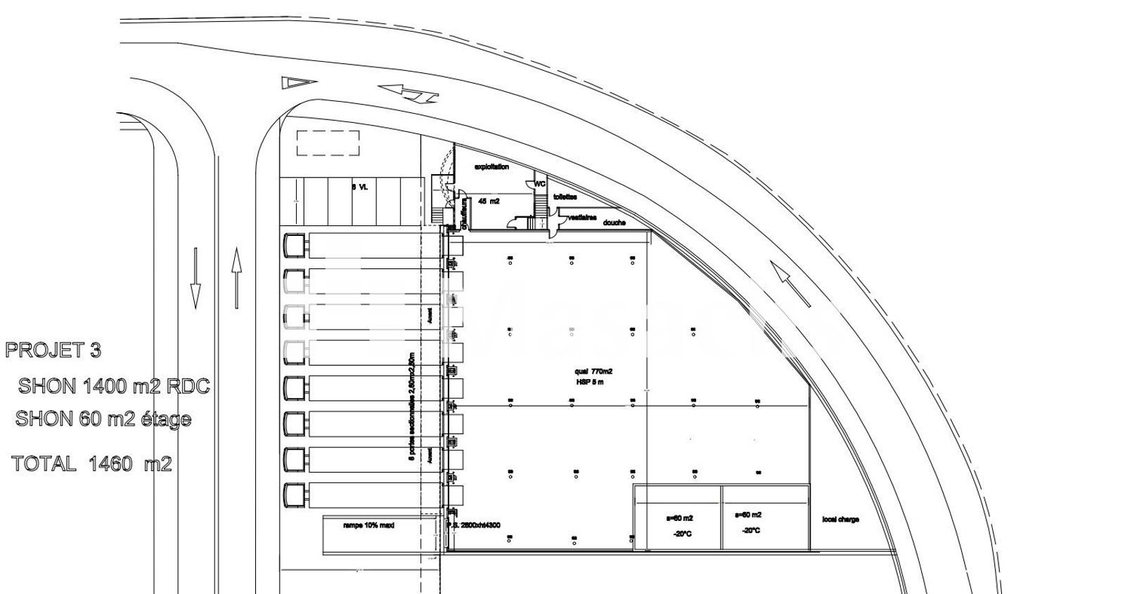
- Superficie total construida: 1.460 m².
- Planta baja: 1.400 m².
- Altillo: 60 m², de los cuales 55 m² corresponden a oficinas.
- 2 cámaras de congelación a -20ºC (60 m² cada una). Panel frigorífico de categoría M0 / M1 (160 mm).
- Suministro eléctrico dado de alta.
- 8 muelles de carga de 2,60 x 2,60 m.
- Acabado lacado interior/exterior en resina blanca.
- Bordes de protección interiores de 40 cm en todo el perímetro (tipo escalón).
- Suelo de hormigón liso encerado con acabado en cuarzo verde.
- Desagüe de suelo en acero inoxidable.
- Estructura de carpintería galvanizada.
- Zona de playa con temperatura regulable +6ºC.
Uso ideal
Perfecta para actividades logísticas y de distribución.
Información adicional
- Estado de conservación: Instalaciones en buen estado.
- Disponibilidad: Inmediata.
Ventajas de la propiedad
- Ubicación estratégica en Mercabarna, cerca del puerto de Barcelona.
- Acceso rápido a las principales autopistas y al aeropuerto de El Prat.
- Infraestructura equipada con cámaras frigoríficas, muelles de carga y acabados de calidad.
- Entorno con servicios de restauración y transporte público.




