Descripción
Ubicación y accesibilidad
Nave industrial en venta situada en Mercabarna, una de las áreas industriales y logísticas más estratégicas de Barcelona. Su ubicación ofrece excelente conexión con las principales vías de comunicación, como la B-10, B-20, B-23, A-2 y C-32, facilitando el acceso al puerto de Barcelona (6 km) y al aeropuerto de El Prat (12 km). Además, cuenta con transporte público en la zona y dispone de servicios de restauración y otros equipamientos dentro del recinto de Mercabarna.
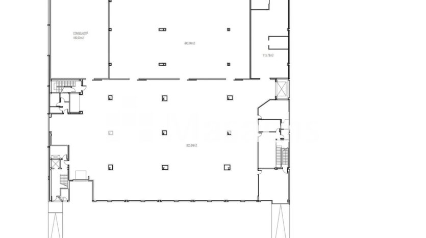
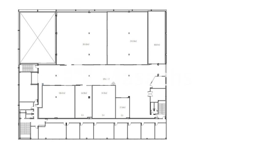
Características de la nave
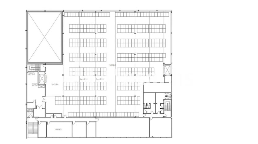
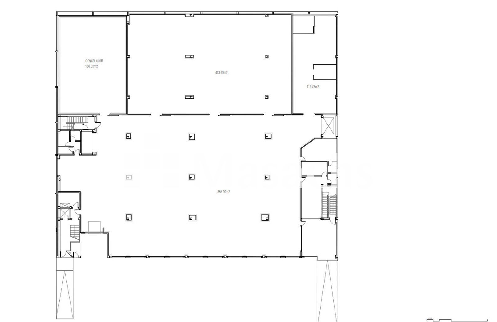
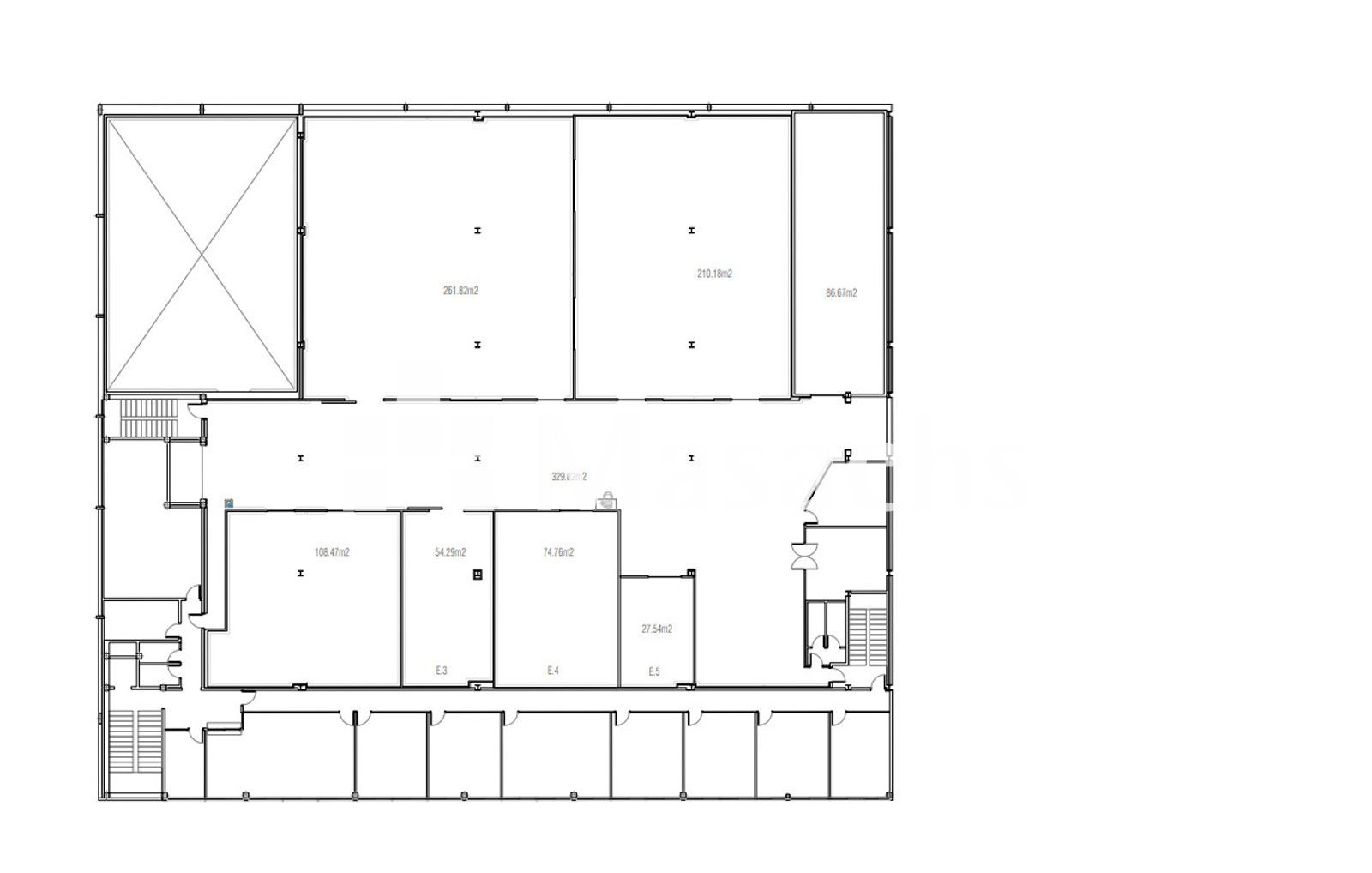
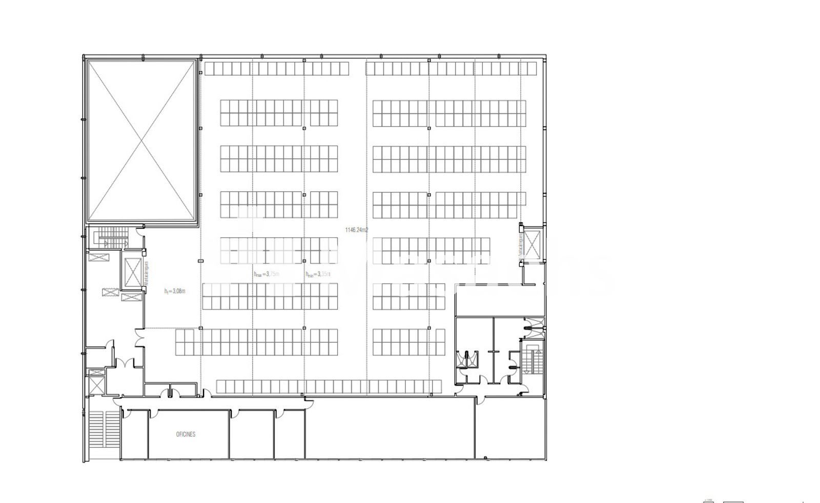
- Superficie total construida: 5.296 m² distribuidos en tres alturas.
- Planta baja: 1.594 m² con altura libre de 4 m. Superficie total de almacén: 3.800 m².
- Primera planta: 1.851 m² con altura libre de 3 m.
- Segunda planta: 1.851 m² con altura libre de 3 m.
- Oficinas acondicionadas: 1.200 m².
- Acceso mediante 10 muelles de carga/descarga.
- 2 rampas con puerta TIR.
- Cámaras de frío positivo y negativo.
- Altura de la cámara de frío negativo: 10 m, equipada con estanterías automáticas.
- Protección contra incendios: BIES, extintores, detectores de humo y estructura ignifugada.
- Vestuarios y zonas comunes.
- Posibilidad de incluir estanterías.
- Suministros dados de alta.
Uso ideal
Perfecta para actividades logísticas, almacenamiento y distribución de productos perecederos, gracias a sus cámaras de frío y su ubicación estratégica dentro de Mercabarna.
Información adicional
- Estado de conservación: Instalaciones en funcionamiento.
- Disponibilidad: Inmediata.
Ventajas de la propiedad
- Ubicación estratégica en Mercabarna, junto al puerto de Barcelona.
- Acceso rápido a las principales autopistas y al aeropuerto de El Prat.
- Infraestructura equipada con cámaras de frío, muelles de carga y rampas TIR.
- Entorno con servicios de restauración y transporte público.



