Descripció
Ubicació i accessibilitat
Nau industrial de venda situada a Mercabarna, una de les àrees industrials i logístiques més estratègiques de Barcelona. La seva ubicació ofereix una excel·lent connexió amb les principals vies de comunicació, com la B-10, B-20, B-23, A-2 i C-32, facilitant l’accés al port de Barcelona (6 km) i a l’aeroport del Prat (12 km).
Característiques de la nau
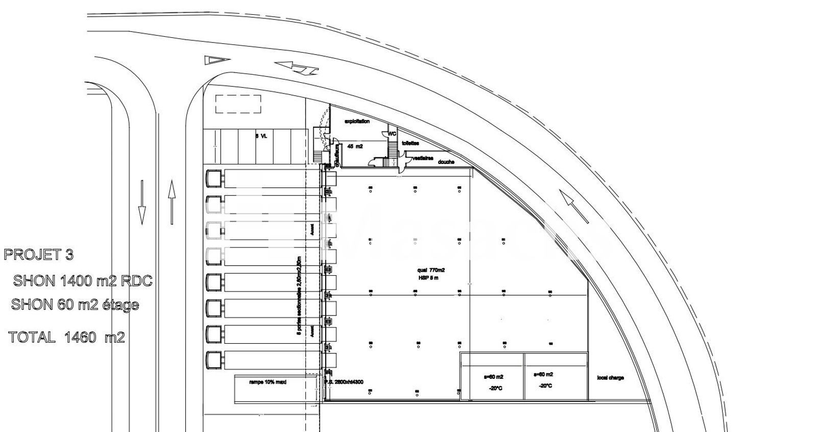
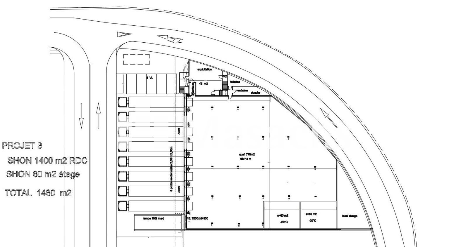
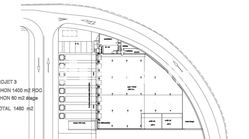
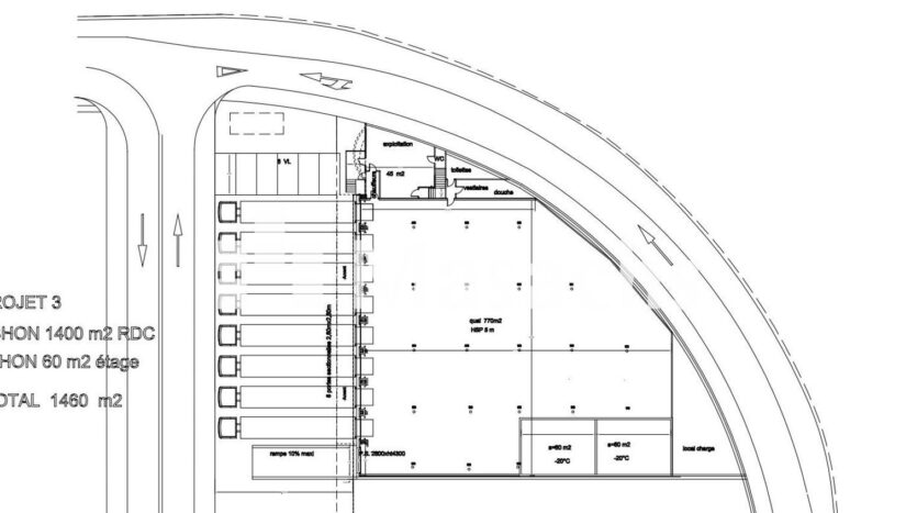
- Superfície total construïda: 1.460 m².
- Planta baixa: 1.400 m².
- Altell: 60 m², dels quals 55 m² corresponen a oficines.
- 2 cambres de congelació a -20ºC (60 m² cadascuna). Panell frigorífic de categoria M0 / M1 (160 mm).
- Subministrament elèctric donat d’alta.
- 8 molls de càrrega de 2,60 x 2,60 m.
- Acabat lacat interior/exterior en resina blanca.
- Bordes de protecció interiors de 40 cm en tota la perifèria (tipus esglaó).
- Sòl de formigó llis encerat amb acabat de quars verd.
- Desguàs de sòl d’acer inoxidable.
- Estructura de fusteria galvanitzada.
- Zona de platja amb temperatura regulable +6ºC.
Ús ideal
Perfecta per a activitats logístiques i de distribució.
Informació addicional
- Estat de conservació: Instal·lacions en bon estat.
- Disponibilitat: Immediata.
Avantatges de la propietat
- Ubicació estratègica a Mercabarna, a prop del port de Barcelona.
- Accés ràpid a les principals autopistes i a l’aeroport del Prat.
- Infraestructura equipada amb cambres de fred, molls de càrrega i acabats de qualitat.
- Entorn amb serveis de restauració i transport públic.


