Descripción
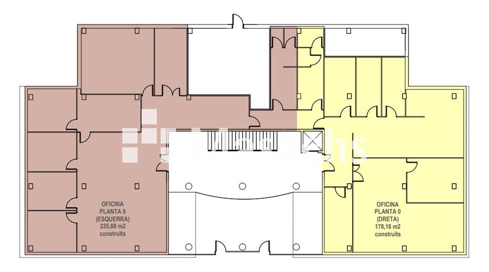
Edificio corporativo de alquiler en Rubí de 1.727 m² repartidos en 4 plantas. El edificio está formado por una planta baja de 410 m², un primer piso de 492 m² que va conjuntamente con una nave de 300 m², habilitada como almacén, un segundo piso de 282 m² y un tercer piso de 525 m². Todas las plantas son divisibles en dos oficinas. Muy bien situadas en el desvío de las carreteras de los Túneles de Vallvidrera C-16, la carretera de Terrassa BP-1503 y la carretera de Sabadell C-1413a. Muy bien comunicada cerca de la AP-7. Dispone de un recinto ajardinado con muy buena imagen, fibra óptica, hall recepción de vidrio, aire acondicionado y parking privado.







