Descripció
Ubicació i accessibilitat
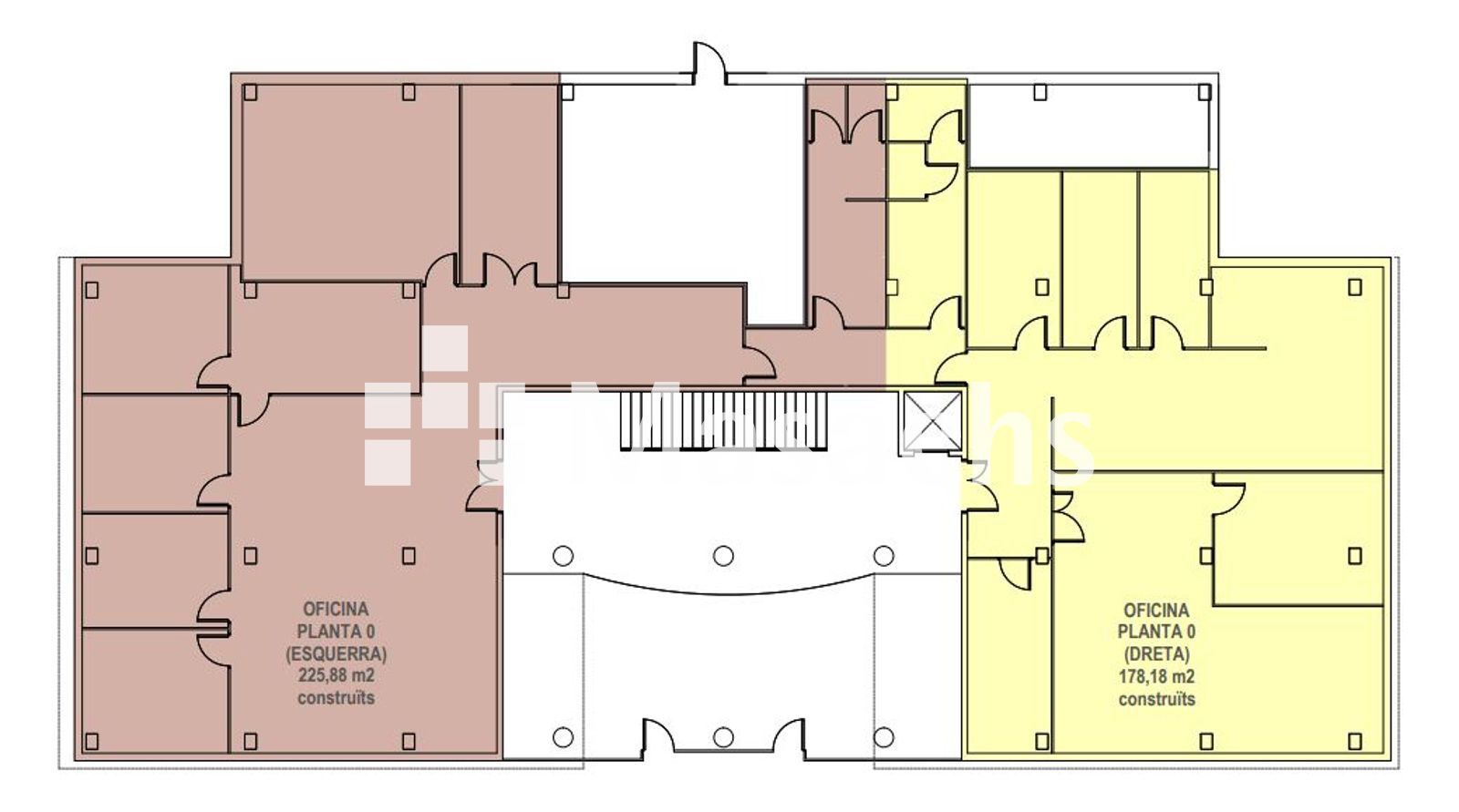
Oficina de lloguer ubicada en un edifici corporatiu de 3 plantes, situada a la segona planta.
Molt ben comunicada, al costat del desviament dels Túnels de Vallvidrera (C-16),
la carretera de Terrassa BP-1503 i la carretera de Sabadell C-1413a,
a més d’estar pròxima a l’AP-7.
El recinte disposa de zones enjardinades i ofereix una imatge corporativa d’alta qualitat.
Característiques de l’oficina
- Superfície: 291 m².
- Ubicada a la segona planta.
- Edifici corporatiu amb molt bona imatge.
- Fibra òptica disponible.
- Vestíbul de recepció envidrat.
- Aire condicionat.
- Pàrquing privat al mateix recinte.
- Recinte enjardinat i totalment diferenciat d’altres zones industrials.
- Serveis de seguretat.
- Instal·lacions contra incendis avançades amb sprinklers.
- Circulació interior de vehicles ben regulada i senyalitzada.
Ús ideal
Ideal per a empreses que busquin una seu corporativa en un entorn exclusiu,
amb una imatge diferenciada i una excel·lent comunicació.
Perfecta per a companyies que valorin un entorn representatiu, serveis avançats
i un espai llest per a la implantació immediata.
Informació addicional
- Estat de conservació: Excel·lent.
- Disponibilitat: Immediata.
Avantatges de la propietat
- Imatge corporativa d’alta qualitat.
- Recinte enjardinat únic a la zona.
- Excel·lent accessibilitat des de la C-16, la BP-1503, la C-1413a i l’AP-7.
- Pàrquing privat i serveis d’alt nivell per als usuaris.
- Disposa de gimnàs i club de pàdel a la finca (no inclòs en el preu).

