Descripción
Ubicación y accesibilidad
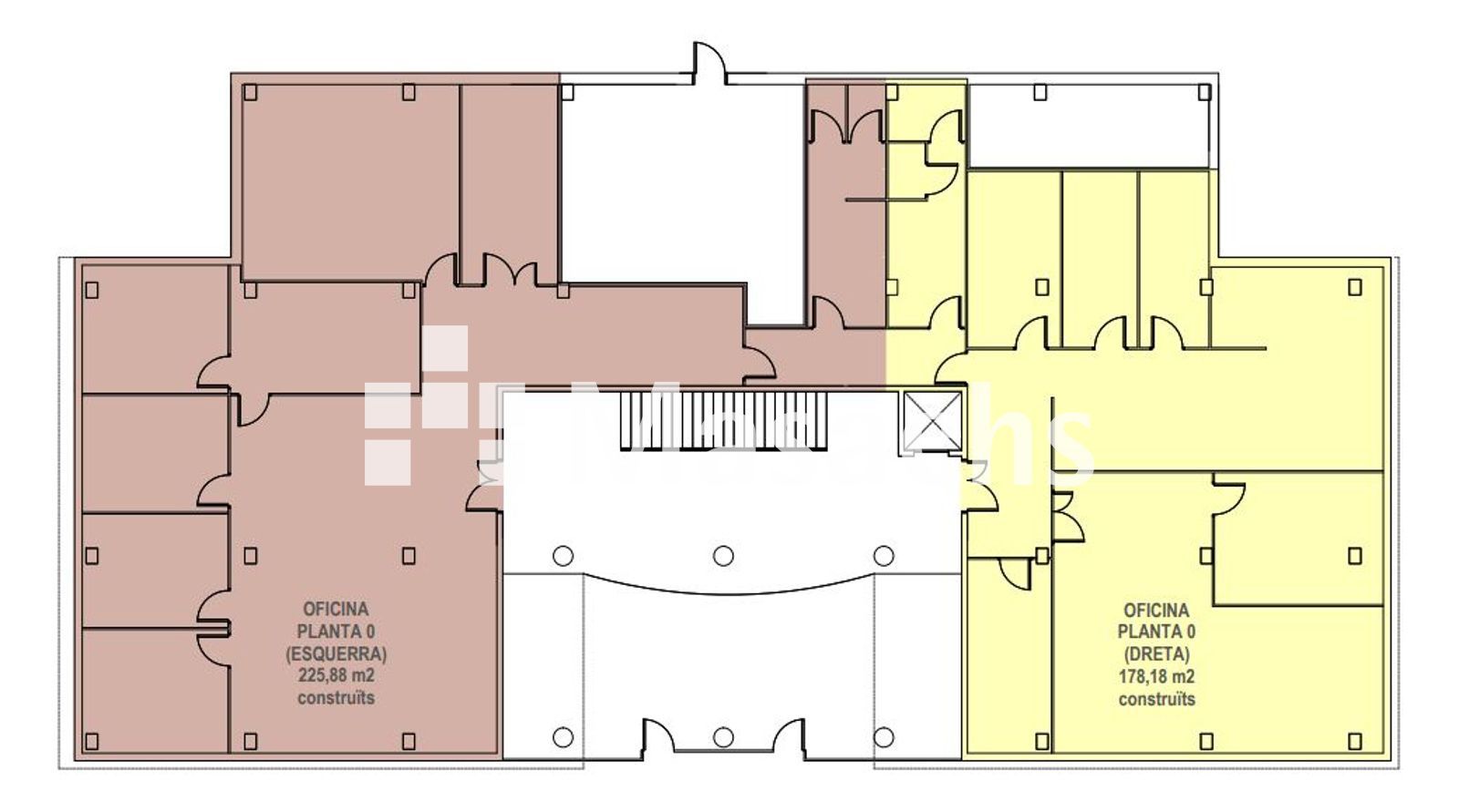
Oficina en alquiler ubicada en Rubí en un edificio corporativo de 3 plantas, situada en la planta baja. Muy bien comunicada, junto al desvío de los Túneles de Vallvidrera (C-16), la carretera de Terrassa BP-1503 y la carretera de Sabadell C-1413a, además de estar próxima a la AP-7. El recinto dispone de zonas ajardinadas y ofrece una imagen corporativa de alta calidad.
Características de la oficina
- Superficie: 405 m².
- Ubicada en planta baja.
- Edificio corporativo con muy buena imagen.
- Fibra óptica disponible.
- Hall de recepción acristalado.
- Aire acondicionado.
- Parking privado en el mismo recinto.
- Recinto ajardinado y totalmente diferenciado de otras zonas industriales.
- Servicios de seguridad.
- Instalaciones contra incendios avanzadas con sprinklers.
- Circulación interior de vehículos bien regulada y señalizada.
Uso ideal
Ideal para empresas que busquen sede corporativa en un entorno exclusivo, con una imagen diferenciada y excelente comunicación. Perfecta para compañías que valoren un entorno representativo, servicios avanzados y un espacio listo para implantación inmediata.
Información adicional
- Estado de conservación: Excelente.
- Disponibilidad: Inmediata.
Ventajas de la propiedad
- Imagen corporativa de alta calidad.
- Recinto ajardinado único en la zona.
- Excelente accesibilidad desde C-16, BP-1503, C-1413a y AP-7.
- Parking privado y servicios de alto nivel para los usuarios.
- Dispone de gimnasio y club de padel en la finca (no incluido en el precio).

