Descripció
Ubicació i accessibilitat
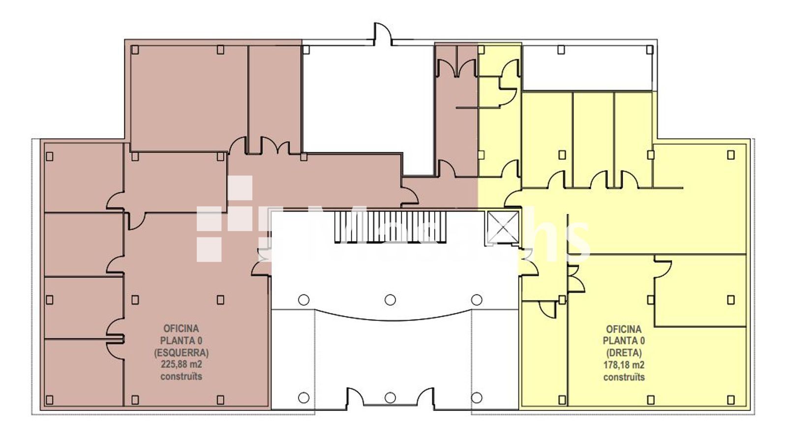
Oficina de lloguer ubicada a Rubí en un edifici corporatiu de 3 plantes, situada a la planta baixa. Molt ben comunicada, a prop de la desviació dels Túnels de Vallvidrera (C-16), la carretera de Terrassa BP-1503 i la carretera de Sabadell C-1413a, a més de ser propera a l’AP-7. El recinte disposa de zones enjardinades i ofereix una imatge corporativa d’alta qualitat.
Característiques de l’oficina
- Superfície: 404 m².
- Ubicada a planta baixa.
- Edifici corporatiu amb molt bona imatge.
- Fibra òptica disponible.
- Hall de recepció acristallat.
- Aire condicionat.
- Parking privat al mateix recinte.
- Recinte enjardinat i totalment diferenciat d’altres zones industrials.
- Serveis de seguretat.
- Instal·lacions contra incendis avançades amb sprinklers.
- Circulació interior de vehicles ben regulada i senyalitzada.
Ús ideal
Ideal per a empreses que busquin seu corporativa en un entorn exclusiu, amb una imatge diferenciada i excel·lent comunicació. Perfecta per a companyies que valorin un entorn representatiu, serveis avançats i un espai llest per a implantació immediata.
Informació addicional
- Estat de conservació: Excel·lent.
- Disponibilitat: Immediata.
Avantatges de la propietat
- Imatge corporativa d’alta qualitat.
- Recinte enjardinat únic a la zona.
- Excel·lent accessibilitat des de C-16, BP-1503, C-1413a i AP-7.
- Parking privat i serveis d’alt nivell per als usuaris.
- Disposa de gimnàs i club de pàdel a la finca (no inclòs en el preu).

