Ver todas las imágenes
Descripción
Ubicación y accesibilidad:
Edificio corporativo en alquiler situado en Gavà, una de las áreas empresariales más estratégicas del Baix Llobregat, Barcelona. La ubicación cuenta con excelente conectividad gracias al acceso directo a la C-32 y la B-210, además de estar a pocos minutos del Aeropuerto del Prat y del puerto de Barcelona.
Características del edificio:
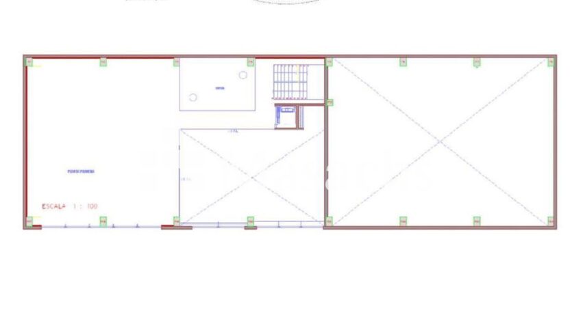
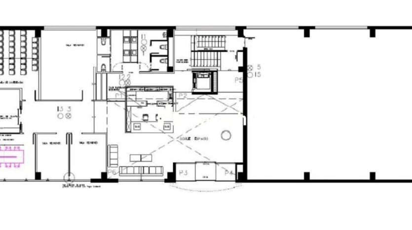
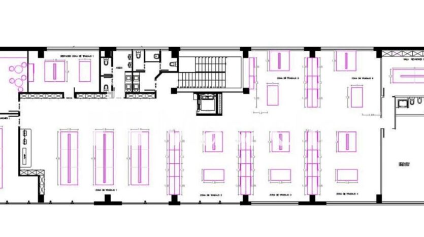
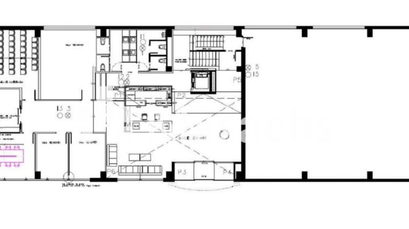
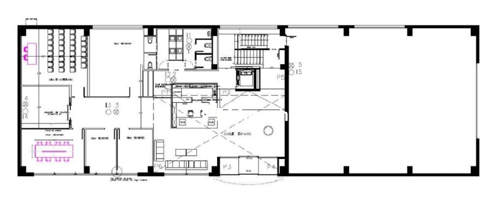
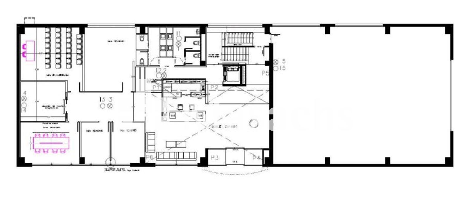
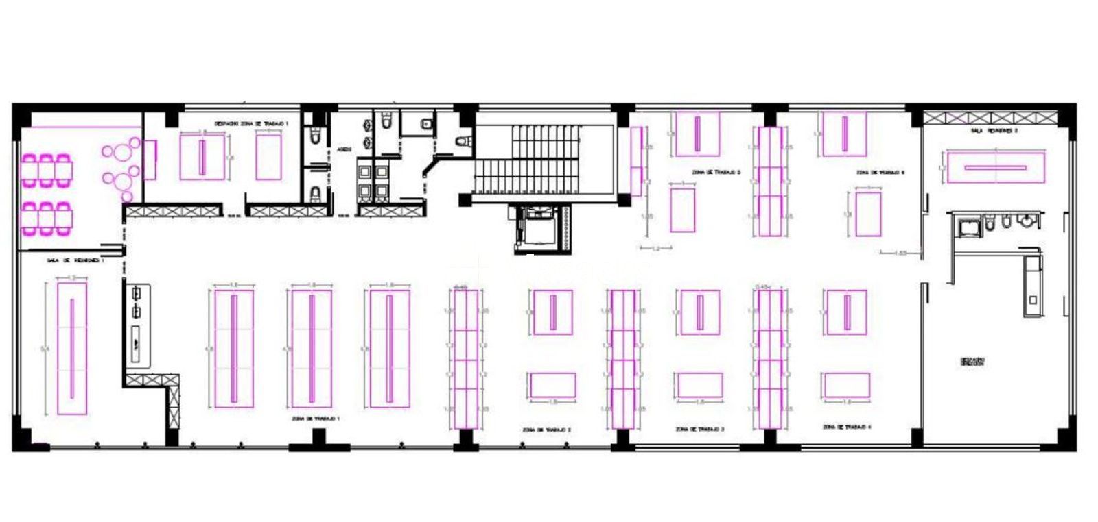
• Superficie total construida: 2.111 m² distribuidos en:
o Planta baja: 620 m² (260 m² de nave industrial + 360 m² de oficinas)-
o Entreplanta: 120 m².
o Primera planta: 620 m² de oficinas (sobrecarga de 1.200 kg/m²)
o Sótano diáfano: 620 m² .
• Altura: 8 metros, adecuada para actividades industriales y de almacenamiento.
• Acceso: Entrada directa para vehículos al sótano mediante puerta lateral.
Instalaciones:
• Cuadros eléctricos por planta (potencia total: 90 kW).
• Fibra óptica de alta velocidad (6.900 Mbps).
• Aire acondicionado y climatización en oficinas.
• Sistema de alarma conectado.
• Estanterías de paletización ligera en planta almacén.
• Climatización, cableado de red y acabados modernos.
Uso ideal:
Edificio ideal para empresas que requieren una sede corporativa representativa con zona industrial, perfecto para actividades de distribución, servicios técnicos, showroom y oficinas centrales.
Información adicional:
• Estado de conservación: Buen estado.
• Disponibilidad: Inmediata.
Ventajas de la propiedad:
• Imagen corporativa moderna y funcional.
• Excelente conectividad con Barcelona, aeropuerto y puerto.





