Ver todas las imágenes
Descripció
Ubicació i accessibilitat:
Edifici corporatiu de lloguer situat a Gavà, una de les àrees empresarials més estratègiques del Baix Llobregat, Barcelona. La ubicació disposa d’una excel·lent connectivitat gràcies a l’accés directe a la C-32 i la B-210, a més d’estar a pocs minuts de l’Aeroport del Prat i del port de Barcelona.
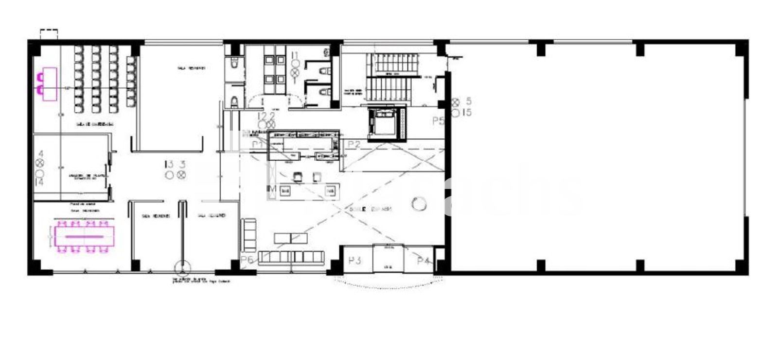
Característiques de l’edifici:
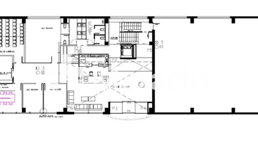
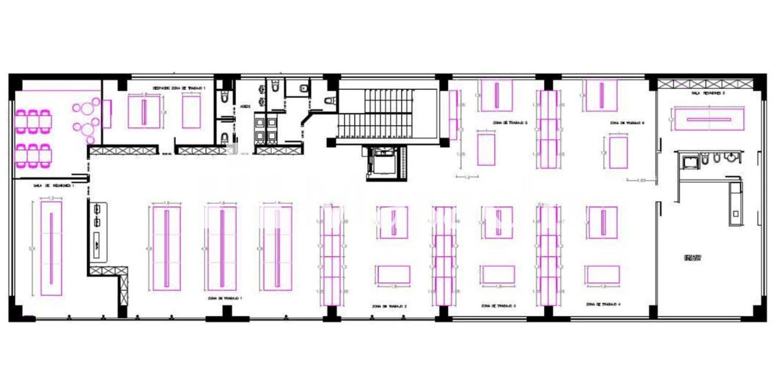
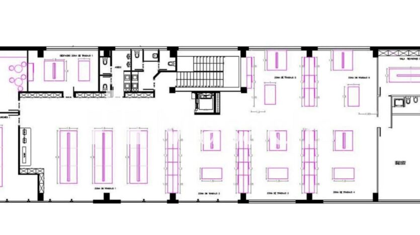
• Superfície total construïda: 2.111 m² distribuïts en:
o Planta baixa: 620 m² ( 260 m² de nau industrial + 360 m² d’oficines.)
o Altell: 120 m².
o Primera planta: 620 m² d’oficines (sobrecàrrega de 1.200 kg/m²).
o Soterrani diàfan: 620 m².
• Alçada: 8 metres, adequada per a activitats industrials i d’emmagatzematge.
• Accés: Entrada directa per a vehicles al soterrani mitjançant porta lateral.
Instal·lacions:
• Quadres elèctrics per planta (potència total: 90 kW).
• Fibra òptica d’alta velocitat (6.900 Mbps).
• Aire condicionat i climatització a les oficines.
• Sistema d’alarma connectat.
• Estanteries per a paletització lleugera a la planta d’emmagatzematge.
• Climatització, cablejat de xarxa i acabats moderns.
Ús ideal:
Edifici ideal per a empreses que requereixen una seu corporativa representativa amb zona industrial, perfecte per a activitats de distribució, serveis tècnics, showroom i oficines centrals.
Informació addicional:
• Estat de conservació: Bon estat.
• Disponibilitat: Immediata.
Avantatges de la propietat:
• Imatge corporativa moderna i funcional.
• Excel·lent connectivitat amb Barcelona, l’aeroport i el port.




