Descripción
Ubicación y accesibilidad:
Oficina en alquiler situada en el barrio de El Pedró de Cornellà de Llobregat, una de las zonas más dinámicas y céntricas del Baix Llobregat, Barcelona. Este espacio cuenta con excelente acceso a través de la carretera de Esplugues, así como conexión directa con la B-23, C-245 y el nudo de acceso a la A-2 y Ronda de Dalt (B-20), lo que permite una movilidad ágil hacia Barcelona y el resto del área metropolitana. Además, está muy bien conectada con transporte público: Tranvía (T1 y T2) a pocos minutos caminando, metro L5 (Cornellà Centre), RENFE líneas R4 y R7y autobuses urbanos e interurbanos (líneas 67, 68 y 95).
Características de la oficina:
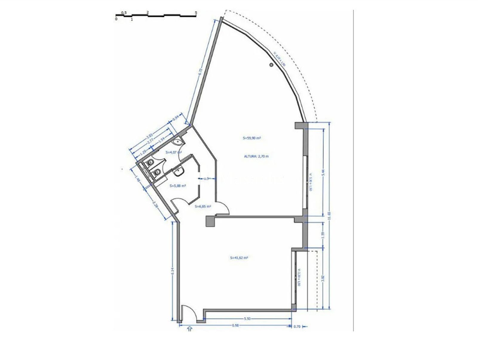
– Superficie total: 78,7 m² en segona planta.
– Distribución: Sala grandre y sala de reuniones.
– Espacio para office.
– Gran entrada de luz natural.
– Suministros dados de baja.
– 2 aseos privados.
Uso ideal:
Esta oficina es perfecta para actividades de despacho profesional, servicios administrativos, atención al cliente o consultoría, proporcionando un entorno cómodo y bien comunicado.
Información adicional:
– Estado de conservación: Buen estado
– Disponibilidad: Inmediata
Ventajas de la propiedad:
– Excelente visibilidad en una ubicación consolidada y con imagen corporativa.
– Conexión directa con Barcelona y el área metropolitana mediante coche y transporte público.
– Entorno dotado de servicios educativos, restauración y comercio, ideal para el día a día empresarial.





