Descripción
Ubicación y accesibilidad
Oficina en alquiler situada en el barrio de El Pedró en Cornellà de Llobregat, en la comarca del Baix Llobregat (Barcelona), una de las zonas más dinámicas y céntricas. Excelente conexión con las principales vías de comunicación como la B-23, la C-245, la A-2 y la Ronda de Dalt (B-20), además de acceso directo por la carretera de Esplugues. Muy bien comunicada mediante transporte público: tranvía (T1 y T2), metro L5 (Cornellà Centre), RENFE (R4 y R7) y diversas líneas de autobús (67, 68 y 95).
Características de la oficina
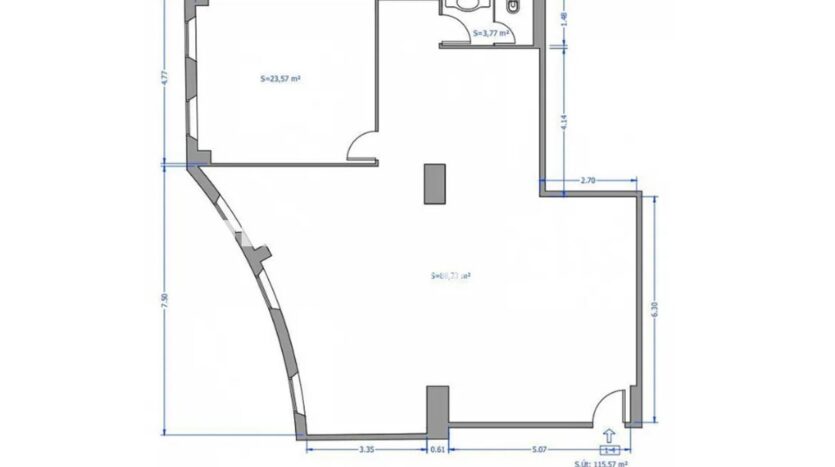
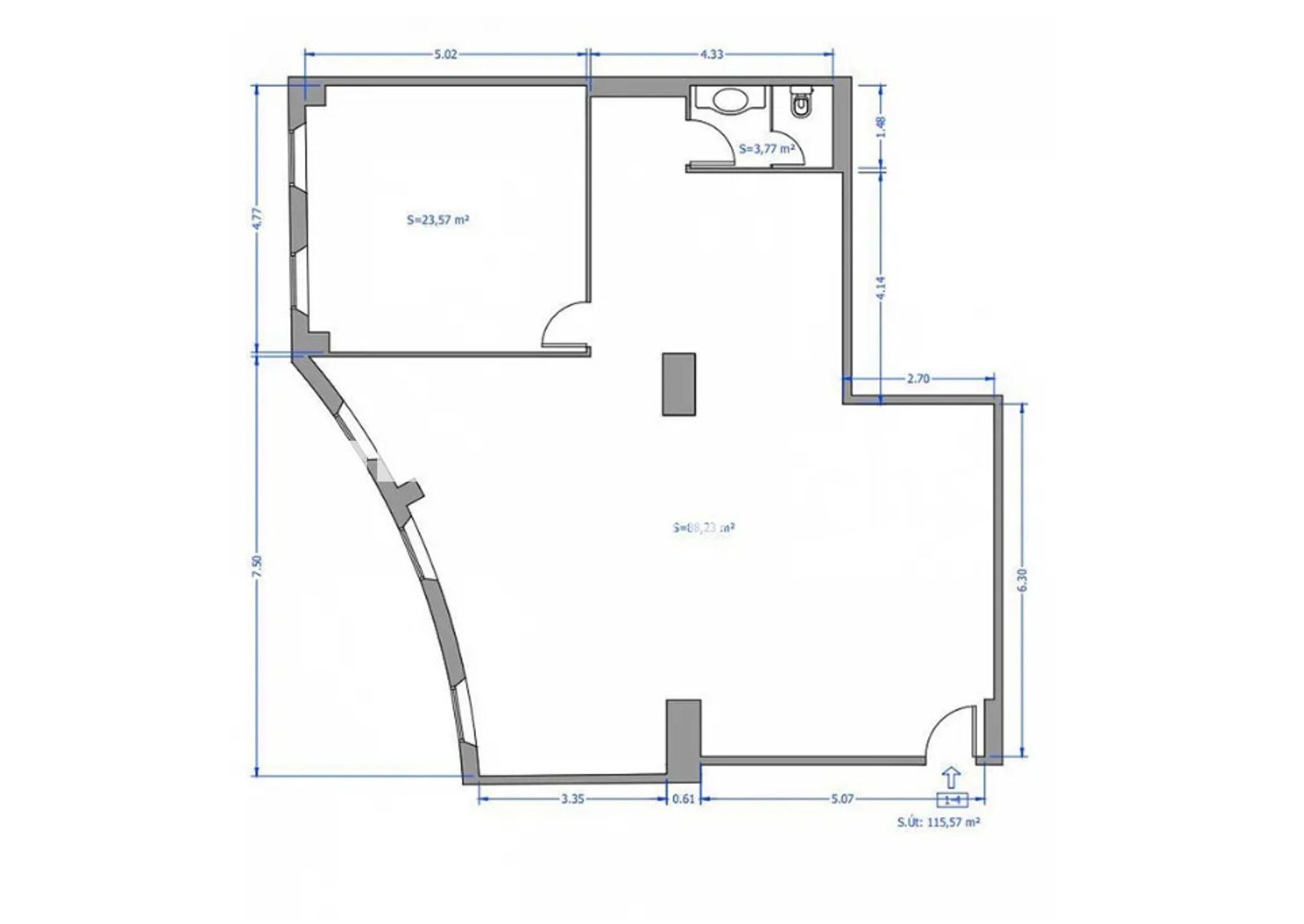
– Superficie total: 115,57 m².
– Ubicada en primera planta.
– Distribución: una sala grande y una sala pequeña.
– Gran entrada de luz natural.
– Dispone de moqueta.
– Armario empotrado.
– Ventanas de aluminio.
– Instalación eléctrica disponible.
– Suministros actualmente dados de baja.
– Dispone de 1 aseo privado.
Uso ideal
Ideal para despacho profesional, servicios administrativos, consultoría o atención al cliente que requieran un espacio funcional y bien ubicado.
Información adicional
– Estado de conservación: buen estado.
– Disponibilidad: inmediata.
Ventajas de la propiedad
– Ubicación céntrica y consolidada.
– Distribución práctica en dos espacios.
– Espacio luminoso.
– Equipamiento básico ya instalado.
– Excelente conexión con B-23, C-245, A-2 y B-20.

