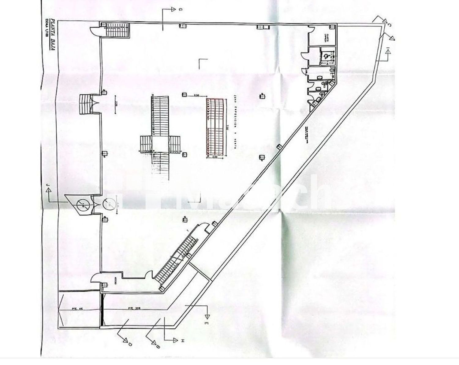
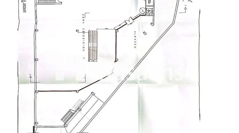
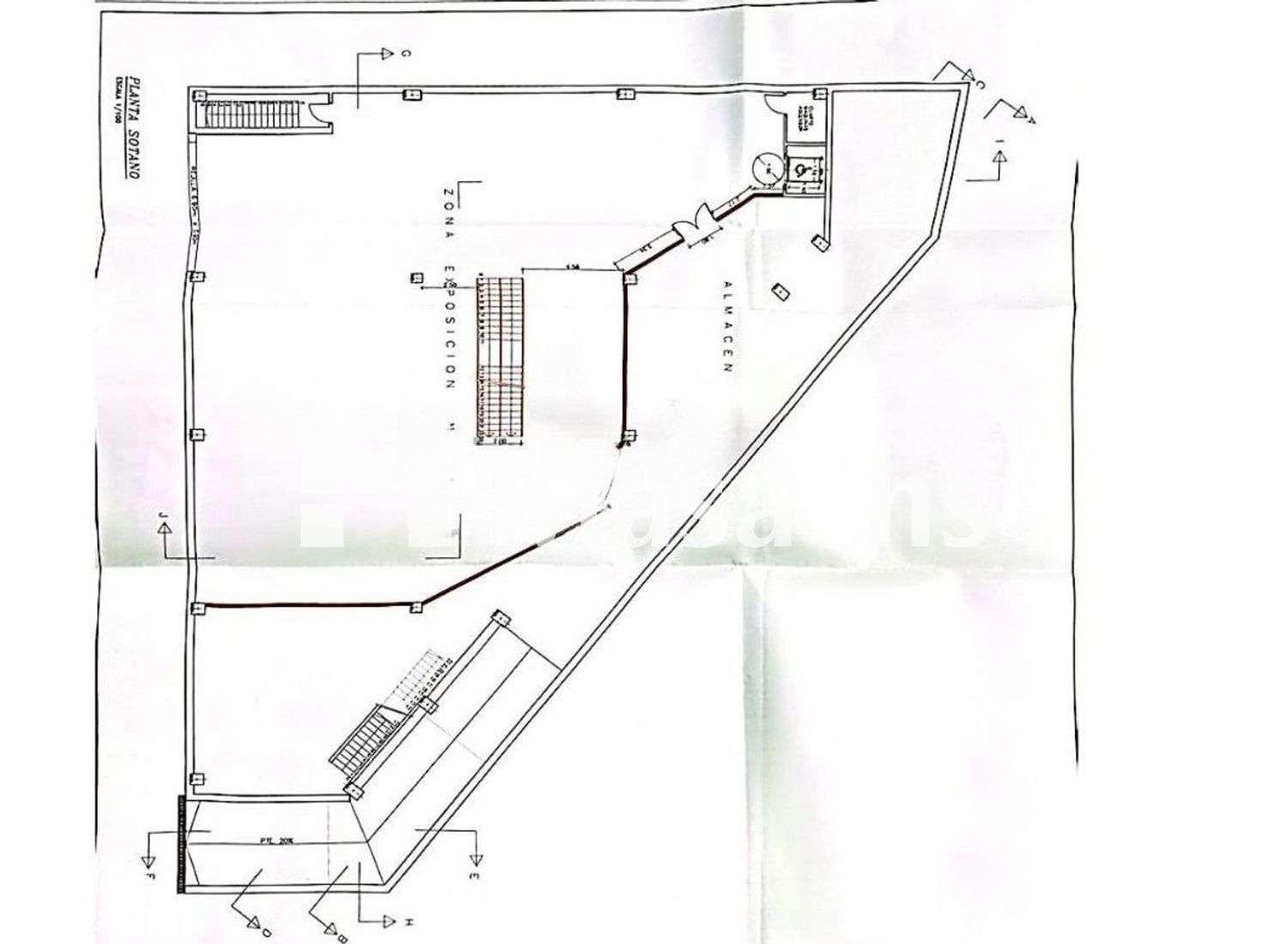
Descripción
Nave industrial de 2500 m² en el polígono de Can Parellada. Es una nave con tres plantas. Ideal para oficinas, tienda y almacén. Es una nave tipo B, que cumple con la normativa vigente contraincendios. Tejado de sandwich y estructura de hormigón. Instalación eléctrica hecha, telecomunicaciones, oficinas, baños y plazas de aparcamiento ante la fachada.
Sus principales vías de comunicación son la N-150 la C-58 y los túneles de Vallvidrera.



