Descripció
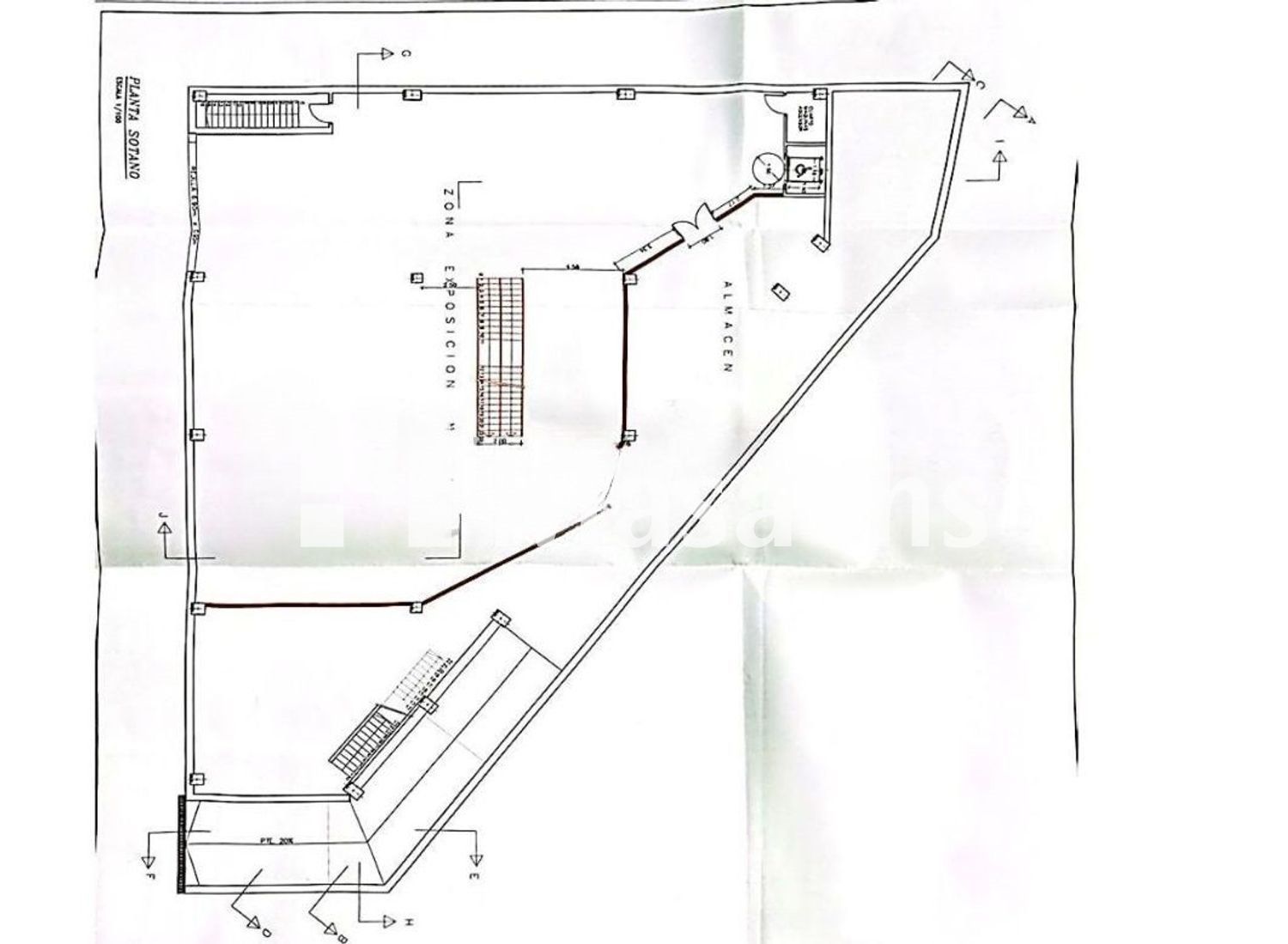
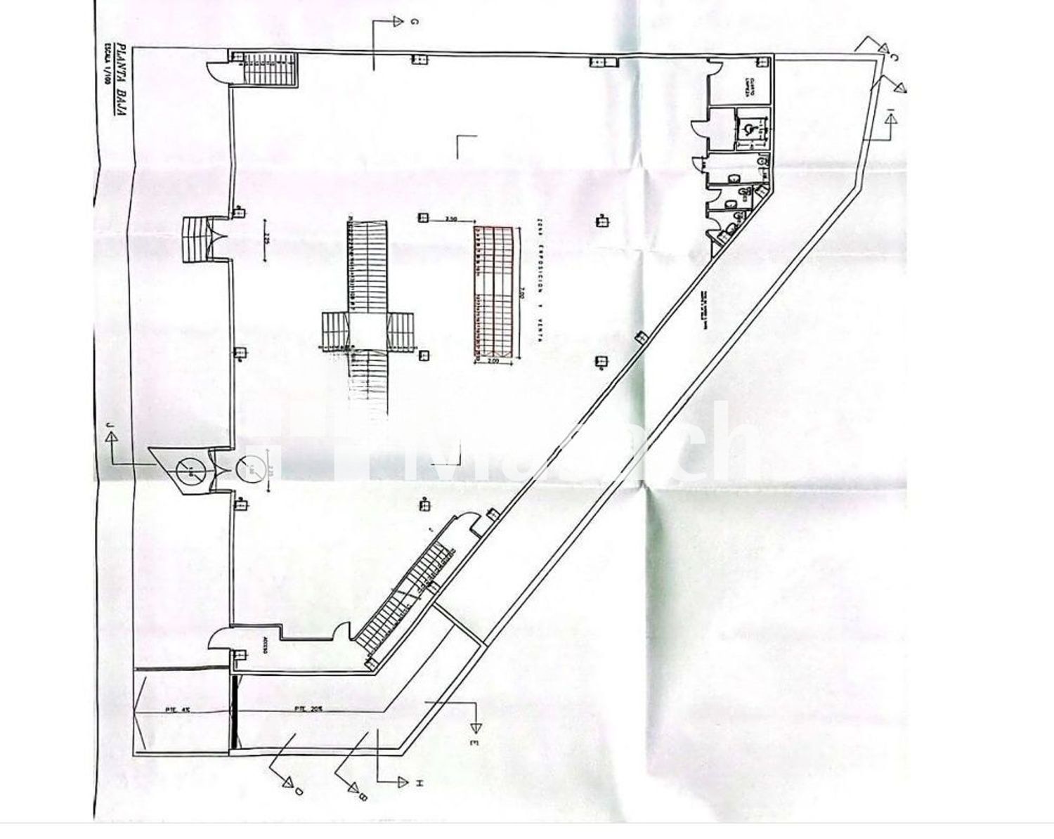
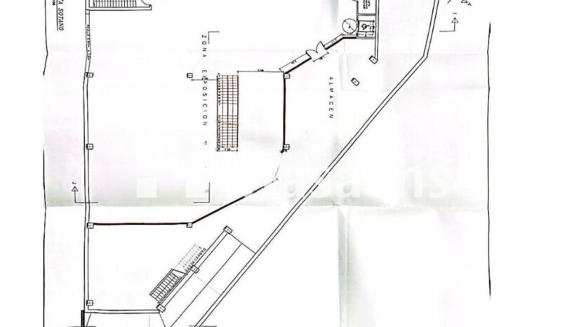
Nau industrial de 2500 m² al polígon de Can Parellada de Terrassa. És una nau amb tres plantes. Ideal per a oficines, botiga i magatzem. És una nau tipus B, que compleix la normativa vigent contraincendis. Teulada de sandvitx i estructura de formigó. Instal·lació elèctrica feta, telecomunicacions, oficines, banys i places d’aparcament davant la façana.
Les seves principals vies de comunicació son la N-150 la C-58 i els túnels de Vallvidrera.

