Descripción
• 6 muelles de carga.
• 10,50 metros de altura.
• 2 portones.
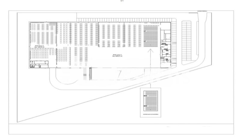
Nave logística de 10.113 m² en Getafe. La nave se encuentra distribuida en 8.740 m² de nave y 1.373 m² de oficina. Sobre una parcela de 23.272 m².
Nave aislada con 10,50 metros de altura, 2 portones y 6 muelles de carga. Cuenta con cubierta tipo sándwich, estructura de hormigón, los servicios de luz y agua dados de alta, climatización, fibra óptica, calefacción por gas, BIES, muros cortafuegos y 130 plazas de parking. Dispone de mucha luz natural y de un transformador 630 KVas.
Sus principales vías de comunicación son la A-42, M-45, M-50y E-5.








