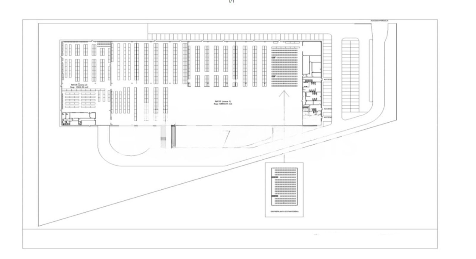
Descripció
• 6 molls de càrrega.
• 10,50 metres d’altura.
• 2 portes grans.
Nau logística de 10.113 m² a Getafe. La nau es troba distribuïda en 8.740 m² de nau i 1.373 m² d’oficina. Sobre una parcel·la de 23.272 m².
Nau aïllada amb 10,50 metres d’altura, 2 portes grans i 6 molls de càrrega. Compta amb coberta tipus sandvitx, estructura de formigó, els serveis de llum i aigua donats d’alta, climatització, fibra òptica, calefacció per gas, BIES, murs tallafocs i 130 places de pàrquing. Disposa de molta llum natural i d’un transformador 630 KVas.
Les seves principals vies de comunicació són l’A-42, M-45, M-50y E-5.








