Descripción
Ubicación y accesibilidad
Nave industrial ubicada en El Prat de Llobregat, en el Polígono Industrial Pratense, una excelente ubicación estratégica. Dispone de conexión inmediata con la C-31, C-32, B-10 (Ronda Litoral) y B-22, así como proximidad al Aeropuerto de Barcelona y al Puerto de Barcelona, lo que la convierte en una localización logística de primer nivel.
Características de la nave
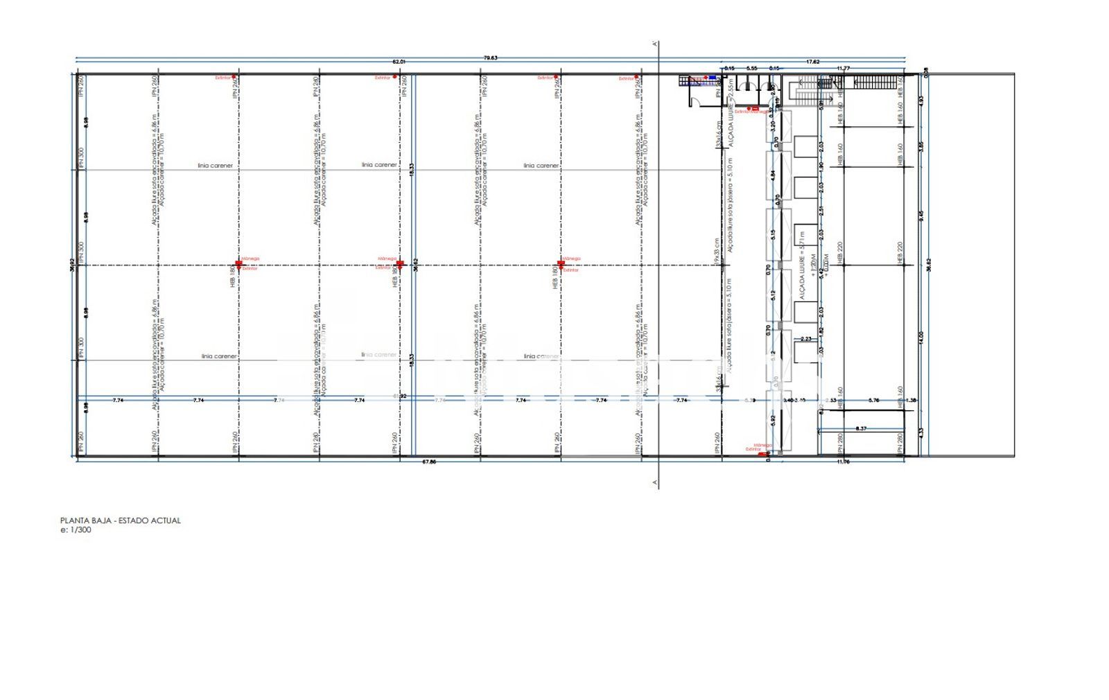
– Superficie planta baja: 2.537 m².
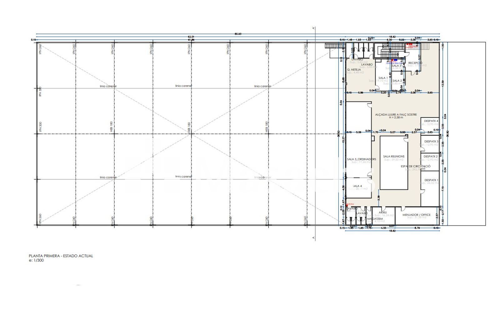
– Superficie planta primera: 714 m².
– Superficie total construida: 3.251 m².
– Altura libre: 10 metros.
– Altura a cumbrera: 11 metros.
– 5 muelles de carga + 1 rampa de acceso.
– Habilitación actual: Riesgo Medio 5 (inmueble diáfano).
– Posibilidad de ampliación a Riesgo Alto mediante partición en 4 sectores.
Uso ideal
Ideal para operadores logísticos, empresas de distribución o actividades industriales que requieran una ubicación estratégica en zona con excelente conectividad portuaria y aeroportuaria.
Información adicional
– Estado de conservación: muy buen estado.
– Disponibilidad:inmediata.
Ventajas de la propiedad
– Ubicación estratégica en una excelente zona del Prat.
– Excelente conexión con Puerto y Aeropuerto de Barcelona.
– 5 muelles más rampa de acceso.
– Posibilidad de adaptación a Riesgo Alto.
– Gran altura interior y nave diáfana.

