Descripció
Ubicació i accessibilitat
Nau industrial situada a El Prat de Llobregat, al Polígon Industrial Pratense, en una ubicació estratègica excel·lent. Disposa de connexió immediata amb la C-31, C-32, B-10 (Ronda Litoral) i B-22, així com proximitat a l’Aeroport de Barcelona i al Port de Barcelona, convertint-la en una localització logística de primer nivell.
Característiques de la nau
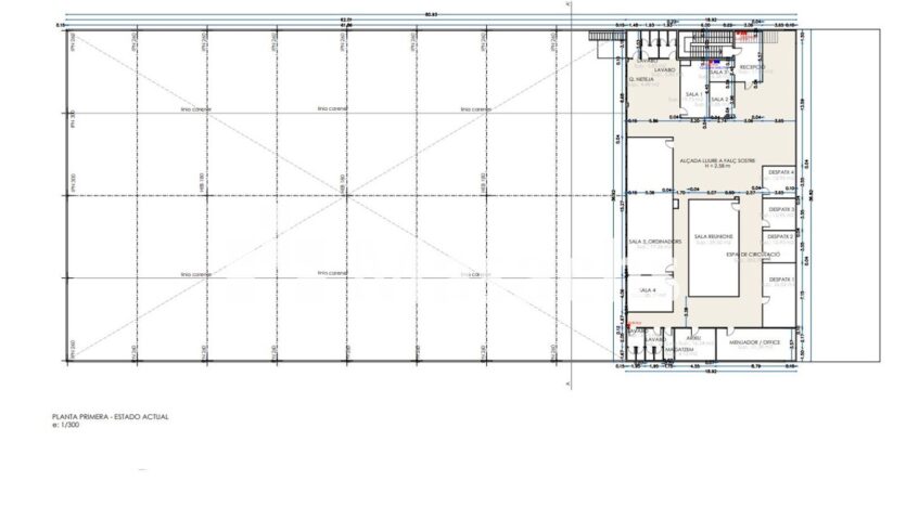
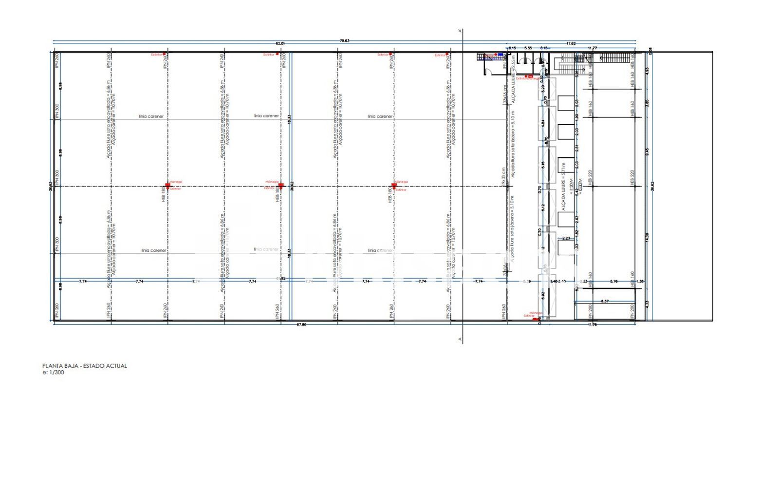
– Superfície planta baixa: 2.537 m².
– Superfície planta primera: 714 m².
– Superfície total construïda: 3.251 m².
– Alçada lliure: 10 metres.
– Alçada a carener: 11 metres.
– 5 molls de càrrega + 1 rampa d’accés.
– Habilitació actual: Risc Mitjà 5 (immoble diàfan).
– Possibilitat d’ampliació a Risc Alt mitjançant partició en 4 sectors.
Ús ideal
Ideal per a operadors logístics, empreses de distribució o activitats industrials que requereixin una ubicació estratègica en zona amb excel·lent connectivitat portuària i aeroportuària.
Informació addicional
– Estat de conservació: molt bon estat.
– Disponibilitat: immediata.
Avantatges de la propietat
– Ubicació estratègica en una excel·lent zona del Prat.
– Excel·lent connexió amb el Port i l’Aeroport de Barcelona.
– 5 molls més rampa d’accés.
– Possibilitat d’adaptació a Risc Alt.
– Gran alçada interior i nau diàfana.

