Descripción
Ubicación y accesibilidad
Nave logística ubicada en Azuqueca de Henares, en el polígono industrial Miralcampo, dentro de un entorno industrial consolidado. Excelente accesibilidad mediante las principales vías de comunicación como la A-2 y la R-2, lo que facilita la conexión con Madrid, el Corredor del Henares y el resto de la península. La nave se encuentra en un recinto cerrado y vallado.
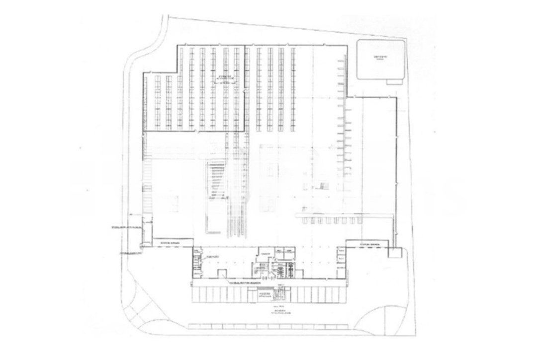
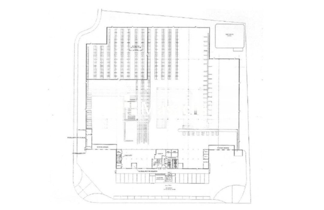
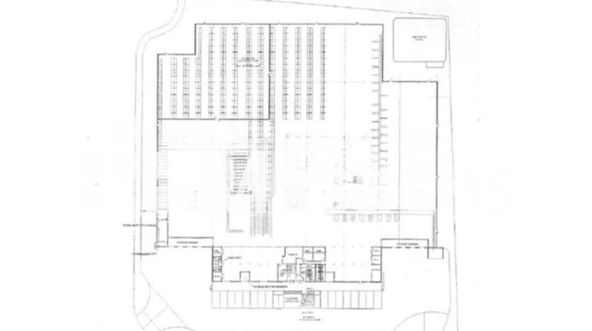
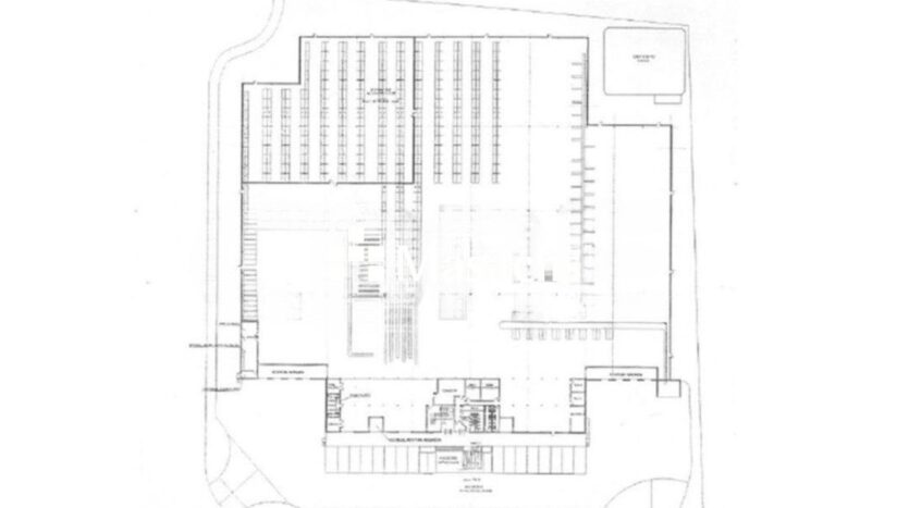
Características de la nave
– Superficie total construida: 13.999 m².
– Superficie de nave logística: 13.411 m².
– Superficie de oficinas: 588 m².
– Nave aislada.
– Altura libre: 10 metros.
– 8 muelles de carga.
– 2 portones de acceso.
– Cubierta tipo sándwich.
– Cerramientos de chapa.
– Suministros de agua y luz dados de alta.
– Climatización instalada.
– Sistema PCI con BIES y muros cortafuegos.
– Nivel de riesgo contra incendios: Medio 3.
Información adicional
– Estado de conservación: bueno.
– Disponibilidad: Inmediata.
Ventajas de la propiedad
– Nave logística aislada en recinto cerrado y vallado.
– 8 muelles de carga y doble acceso mediante portones.
– Sistemas PCI completos con nivel de riesgo Medio 3.
– Excelente conexión con A-2 y R-2.


