Descripció
Ubicació i accessibilitat
Nau logística situada a Azuqueca de Henares, al polígon industrial Miralcampo, dins d’un entorn industrial consolidat. Excel·lent accessibilitat mitjançant les principals vies de comunicació com l’A-2 i la R-2, que faciliten la connexió amb Madrid, el Corredor del Henares i la resta de la península. La nau es troba en un recinte tancat i perimetrat.
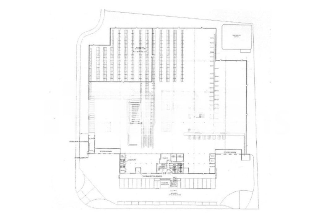
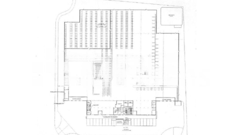
Característiques de la nau
– Superfície total construïda: 13.999 m².
– Superfície de nau logística: 13.411 m².
– Superfície d’oficines: 588 m².
– Nau aïllada.
– Alçada lliure: 10 metres.
– 8 molls de càrrega.
– 2 portons d’accés.
– Coberta tipus sàndvitx.
– Tancaments de xapa.
– Subministraments d’aigua i llum donats d’alta.
– Climatització instal·lada.
– Sistema PCI amb BIES i murs tallafocs.
– Nivell de risc contra incendis: Mitjà 3.
Informació addicional
– Estat de conservació: bo.
– Disponibilitat: immediata.
Avantatges de la propietat
– Nau logística aïllada en recinte tancat i perimetrat.
– 8 molls de càrrega i doble accés mitjançant portons.
– Sistemes PCI complets amb nivell de risc Mitjà 3.
– Excel·lent connexió amb l’A-2 i la R-2.






