Descripción
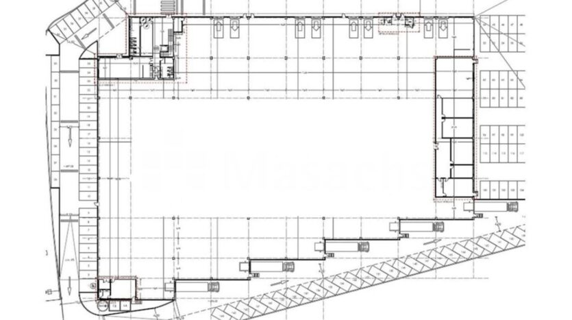
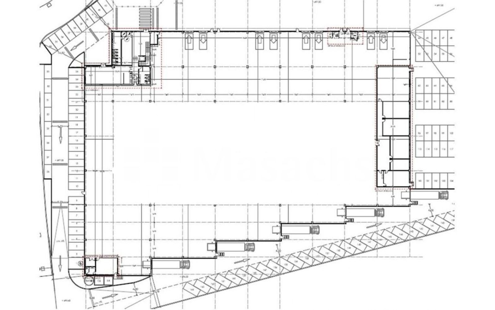
•12 muelles de carga.
•11,60 metros de altura.
•8 portones.
Nave Logística de 8.000 m² en Alcobendas, en el polígono de Valdelacasa. La nave se encuentra sobre una parcela de 15.600 m² y está distribuida en 6.700 m² de nave y 1.470 m² de oficina.
Nave aislada con 11,60 metros de altura, 12 muelles de carga y 8 portones a cota cero. La estructura y el suelo es de hormigón y la cubierta tipo sándwich. Cuenta con los servicios de luz y agua dados de alta, iluminación LED, ascensor, falso techo, BIES, cerramiento de hormigón y climatización.
Dispone de buenos accesos desde la A-1 y M-12.
No hay honorarios de agencia para el inquilino.








