Descripció
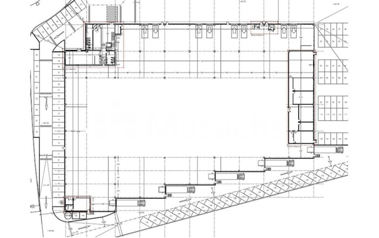
• 12 molls de càrrega.
• 11,60 metres d’altura.
• 8 portes grans.
Nau Logística de 8.000 m² a Alcobendas, al polígon de Valdelacasa. La nau es troba sobre una parcel·la de 15.600 m² i està distribuïda en 6.700 m² de nau i 1.470 m² d’oficina.
Nau aïllada amb 11,60 metres d’altura, 12 molls de càrrega i 8 portes grans a cota zero. L’estructura i el sòl és de formigó i la coberta tipus sandvitx. Compta amb els serveis de llum i aigua donats d’alta, il·luminació LED, ascensor, fals sostre, BIES, tancament de formigó i climatització.
Disposa de bons accessos des de la A-1 i M-12.
No hi ha honoraris d’agència per a l’inquilí.







