Descripción
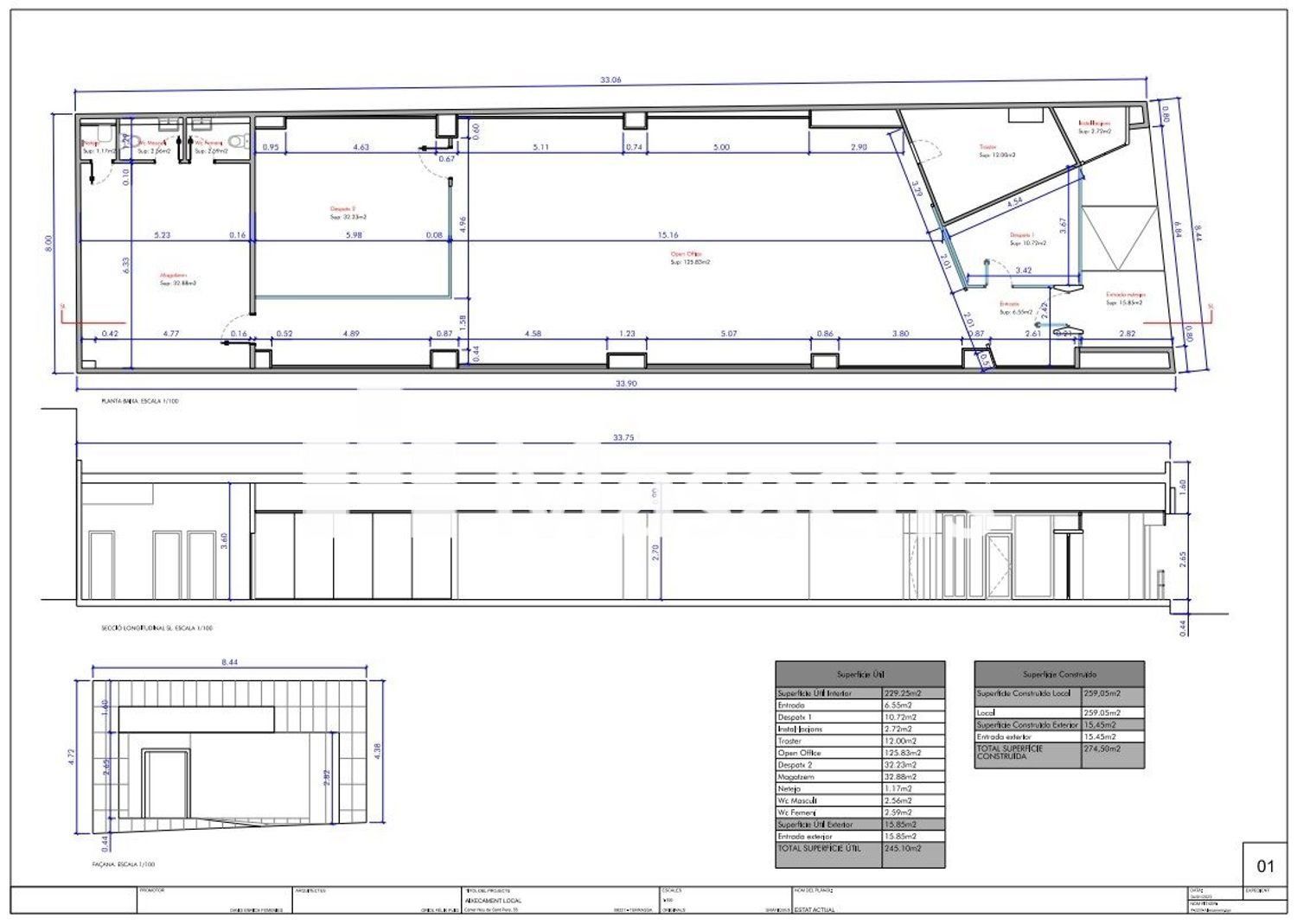
Local apto para convertirla en vivienda con tres alturas o para instalar una oficina o comercio en el centro de Terrassa. Local en venta de 254,10 m² con dos despachos con divisiones de vidrio, un almacén y dos aseos. Sin vecinos en piso superior y el local debe acondicionarse y reformarse y dispone de persiana exterior. Cuenta con los suministros de luz y agua dados de alta y aire acondicionado (la instalación debe revisarse y actualizarse).
Situado en el barrio del centro de Terrassa, Vallès Occidental. Cerca de la Seu d´Ègara, del Parque de Vallparadís, del Teatro Principal ya 5 min. a pie del Ayuntamiento de Terrassa. Bien comunicado en transporte público, ya que se encuentra a 7 min. de la estación de Cercanías Terrassa Estación del Norte y en una zona con servicios y comercios.

