Descripción
Ubicación y accesibilidad:
Local comercial en venta situado en Can Palet, Terrassa, una de las áreas estratégicas del Vallès Occidental, Barcelona. Su ubicación permite un acceso fluido a las principales vías de la ciudad, como la N-150, la carretera de Rubí, la carretera de Montcada, la avenida de las Glorias Catalanas y la avenida del Vallès, favoreciendo la movilidad interna y externa. Además, se encuentra cerca de puntos de interés como Parc Vallès, la Escuela Oficial de Idiomas y la zona sur del Parque de Vallparadís, lo que genera un gran tránsito de personas y vehículos.
Características del local:
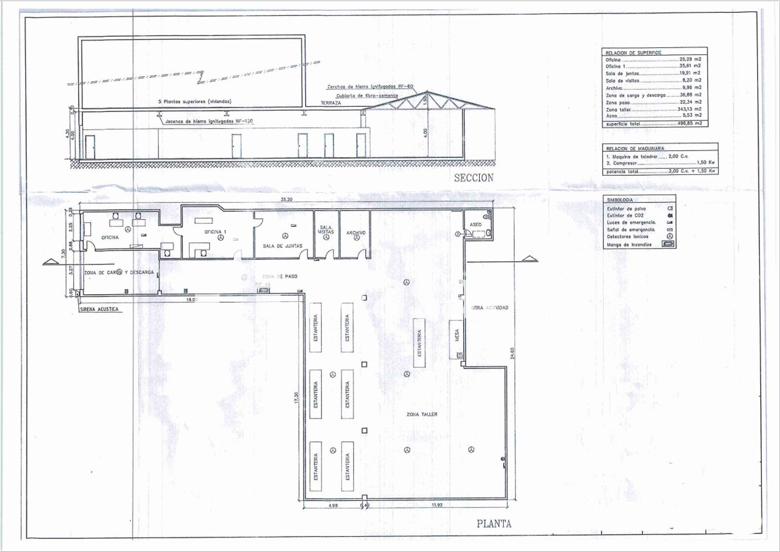
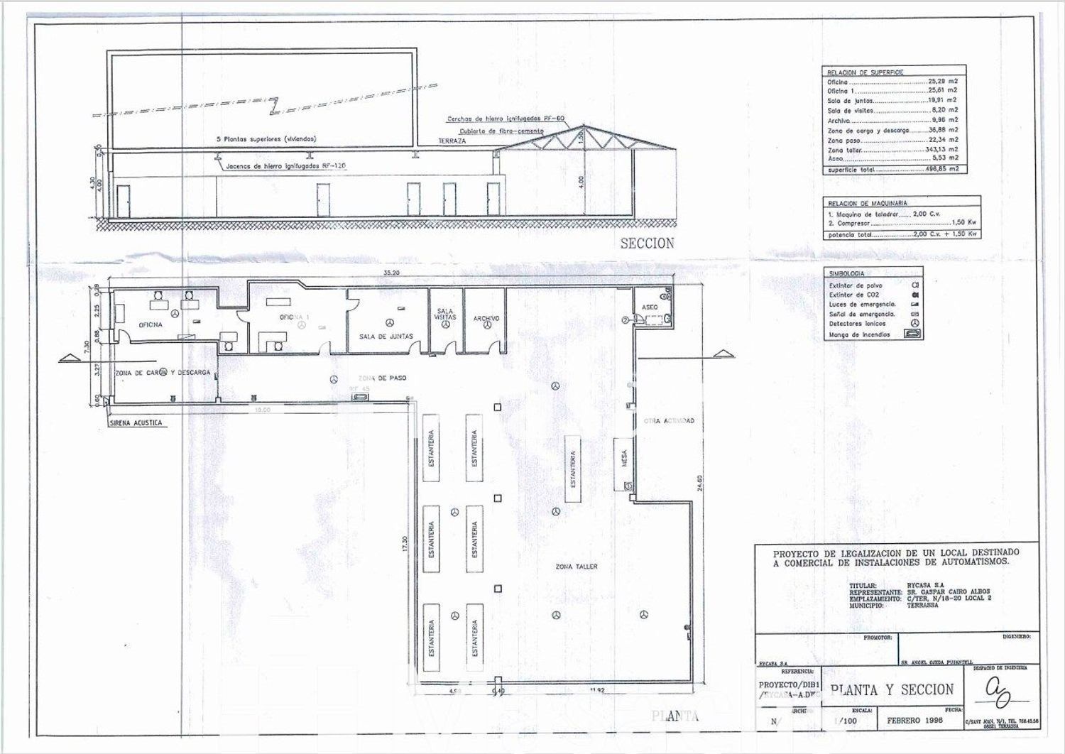
– Superficie total: 514 m². Dispone de una zona de taller.
– Superficie de oficinas: 2 oficinas de 25 m² cada una. Sala de juntas: 19 m², una salda de visitas y archivo.
– Zona de carga y descarga: 36 m².
– Accesos: Zona de carga y descarga. Entrada peatonal independiente.
– Aseo.
Uso ideal:
Este local es ideal para talleres, oficinas, negocios comerciales o almacenes, ofreciendo un espacio versátil en una zona con gran actividad económica.
Información adicional:
– Estado de conservación: Medio.
– Disponibilidad: Inmediata.
Ventajas de la propiedad:
– Ubicación en una zona comercial consolidada con alto tránsito de personas y vehículos.
– Acceso inmediato a la N-150 y principales arterias de Terrassa.
– Cercanía a parques, colegios y zonas comerciales que potencian su visibilidad y atractivo comercial.



