Descripción
Ubicación y accesibilidad:
Oficinas en alquiler situadas en Sant Cugat del Vallès, en la tercera planta de un edificio corporativo con una excelente imagen empresarial. Ubicadas en una de las zonas más estratégicas del Vallès Occidental, Barcelona, cuentan con fácil acceso a la AP-7 y C-16, garantizando una óptima conexión con Barcelona y el resto del área metropolitana. Además, disponen de transporte público cercano, con acceso a líneas de autobús y estaciones de FGC (Ferrocarrils de la Generalitat de Catalunya), como la de Volpelleres, facilitando la movilidad de empleados y clientes.
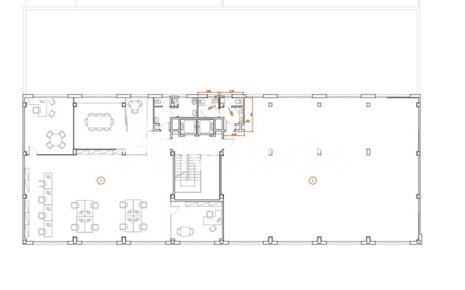
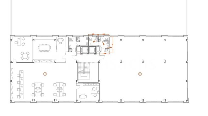
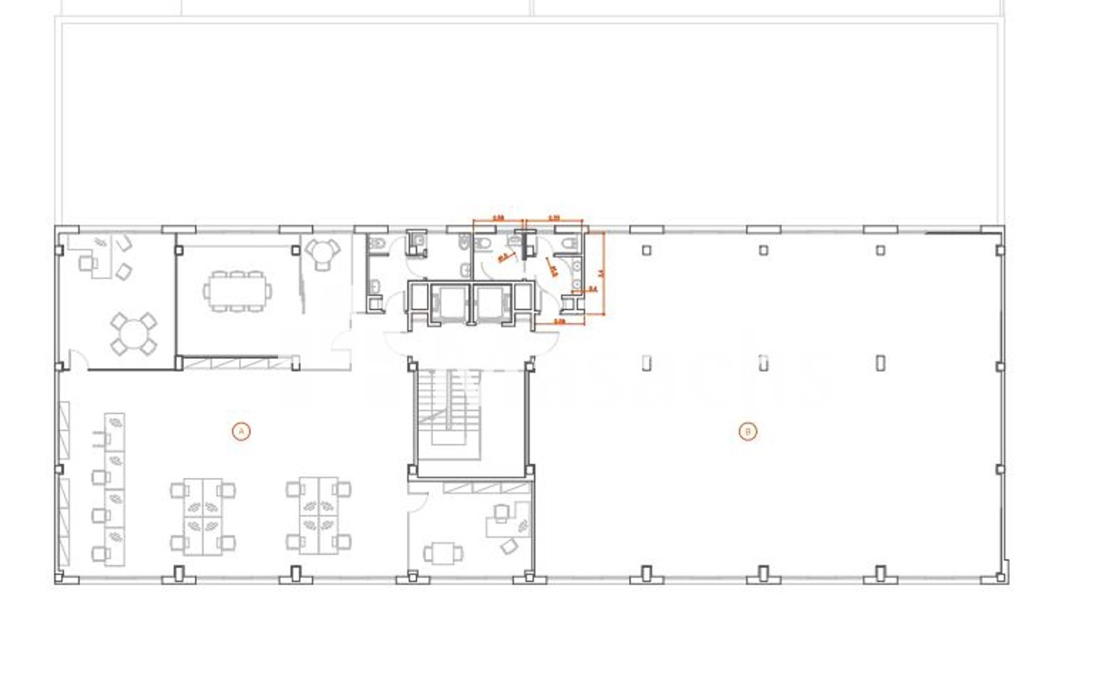
Características de las oficinas:
– Superficie total: 283,77 m².
– Ubicación: 3ª planta de un edificio corporativo.
– Acceso: Ascensor y entrada representativa.
– Instalaciones: Espacio con abundante luz natural.
– Edificio de alta calidad con acabados modernos.
Uso ideal:
Estas oficinas son perfectas para empresas que buscan un espacio representativo con excelente imagen corporativa, ideal para actividades administrativas, coworking o despachos profesionales.
Información adicional:
– Estado de conservación: Muy buen estado.
– Disponibilidad: Inmediata.
Ventajas de la propiedad:
– Excelente ubicación con acceso rápido a la AP-7, C-16 y B-30.
– Buenas conexiones en transporte público con estaciones de FGC y autobuses cercanos.
– Edificio corporativo con ascensor y acabados modernos.



