Descripción
Ubicación y accesibilidad:
Oficina de alquiler situada en un elegante edificio de oficinas en Rubí, una de las áreas más estratégicas del Vallès Occidental, Barcelona. Disfruta de un acceso rápido a las principales carreteras y autopistas, como la C-16 y la AP-7, así como a paradas de autobús cercanas. Además, cuenta con una excelente oferta de servicios en la zona, incluyendo restaurantes, estaciones de servicio y otros puntos de interés que aportan comodidad tanto para los trabajadores como para los clientes.
Características de la oficina:
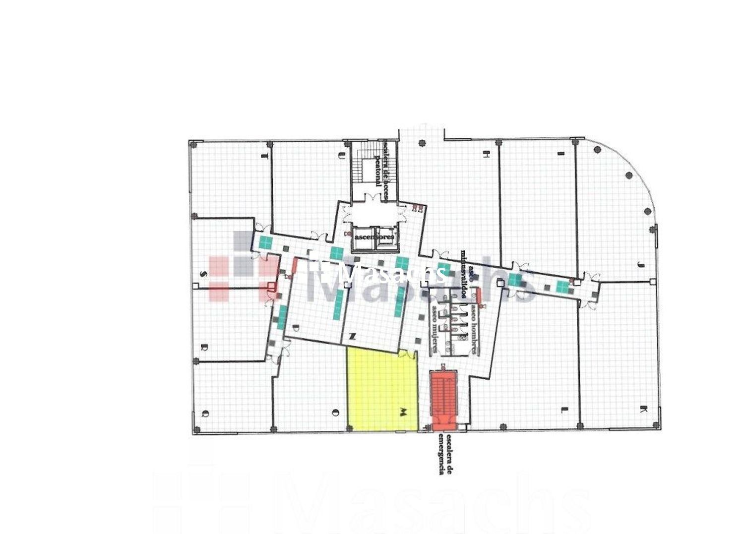
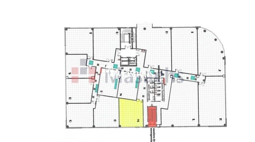
– Superficie total de la oficina: 58 m²
– Acceso: El edificio cuenta con ascensores y escaleras que conectan todas las plantas.
– Instalaciones: todos los suministros están dados de alta, climatización mediante aire acondicionado, sistemas de prevención contra incendios e iluminación de bajo consumo.
– Espacios adicionales: Zonas comunes con cantina equipada (fregadero, microondas y zona de vending).
– Aseos: Baño comunitario en la planta.
Uso ideal:
Esta oficina es perfecta para empresas que buscan una base estratégica en un entorno moderno, funcional y bien conectado, ideal para actividades administrativas y comerciales.
Información adicional:
– Estado de conservación: Buen estado.
– Disponibilidad: Inmediata.
Ventajas de la propiedad:
– Excelente visibilidad y ubicación en un edificio corporativo.
– Acceso rápido a las principales vías de transporte y servicios de la zona.
– Entorno moderno y funcional, diseñado para la productividad empresarial.
– Espacio diáfano y con grandes ventanales que garantizan abundante luz natural.



