Descripción
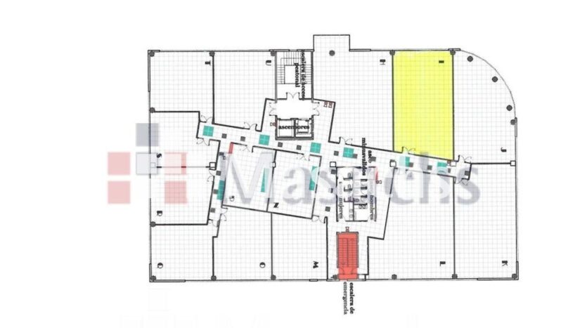
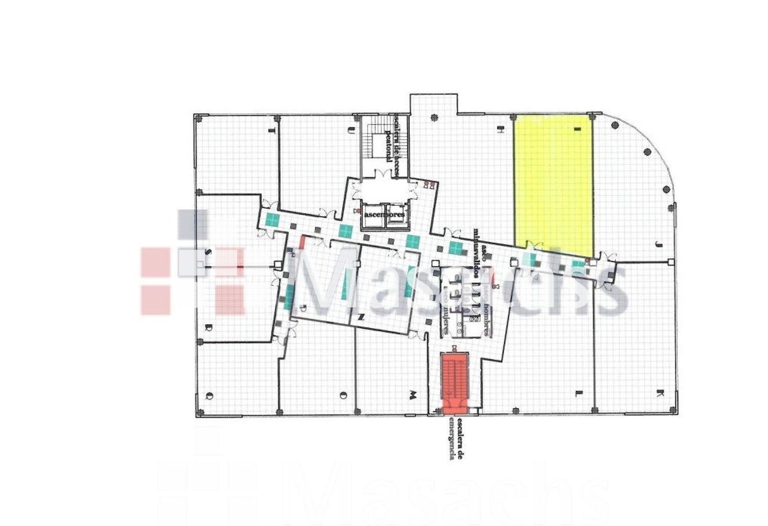
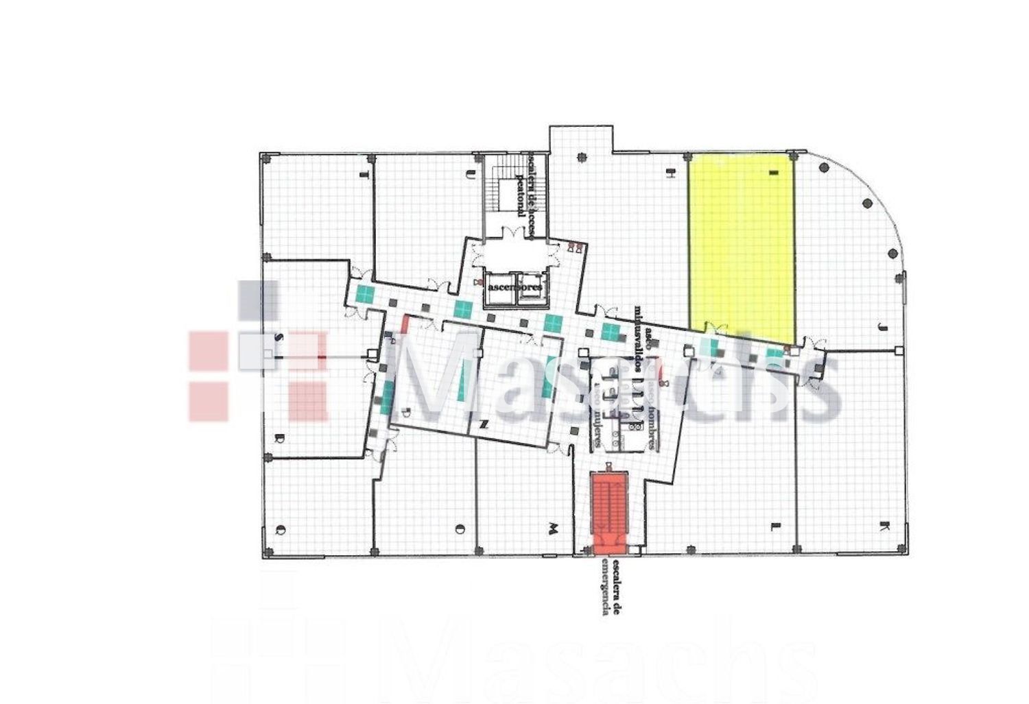
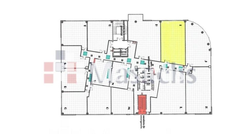
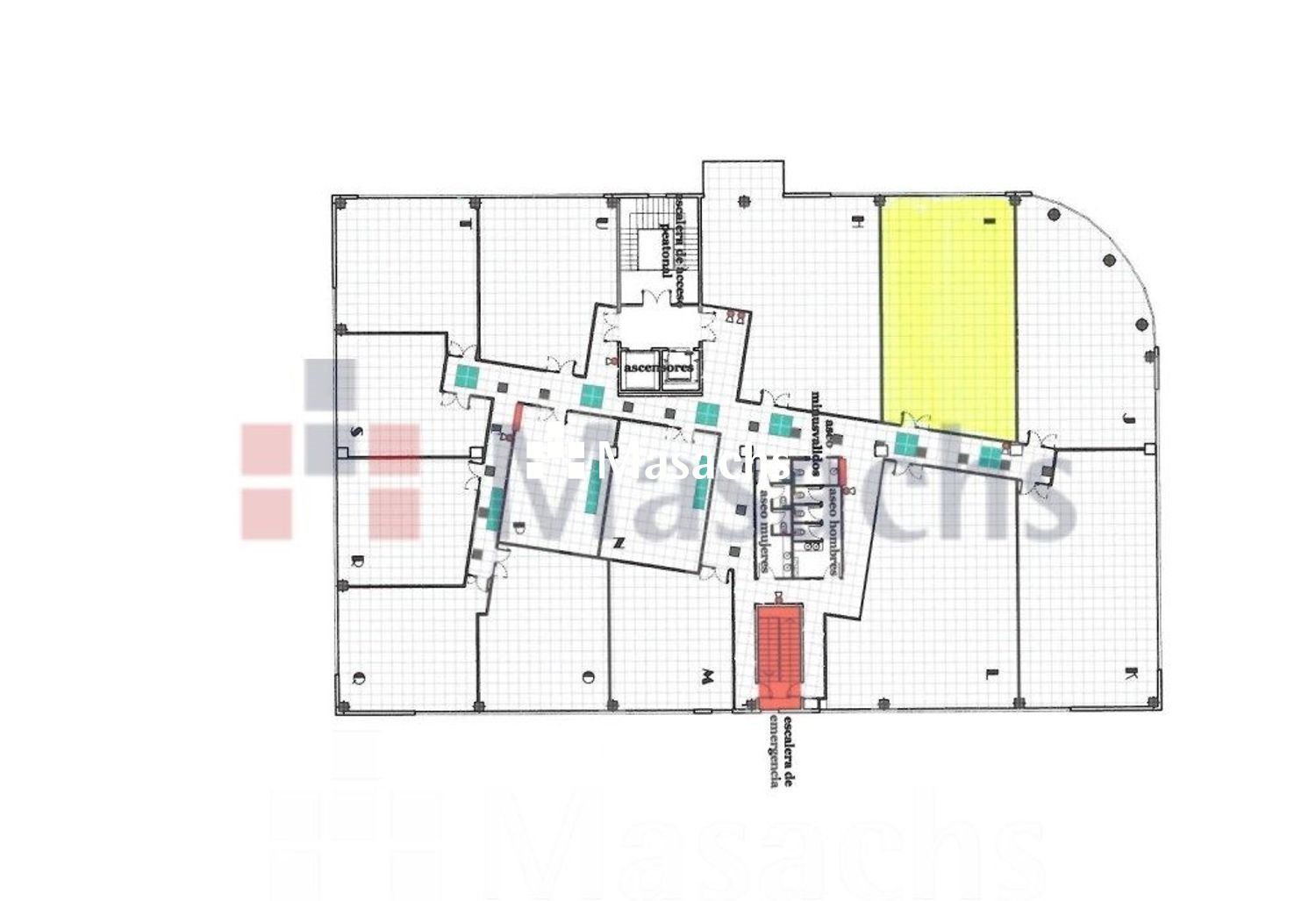
Oficina de 104 m² situada en la segunda planta de un elegante edificio de oficinas en Rubí. Este espacio destaca por su luz natural, gracias a los grandes ventanales que garantizan un ambiente de trabajo agradable y productivo. Es diáfana, ofreciendo la máxima flexibilidad para adaptar el espacio a las necesidades de su negocio.
La oficina cuenta con todos los suministros dados de alta, aire acondicionado para una climatización óptima y baño comunitario, asegurando una funcionalidad inmediata y práctica.
El edificio dispone de distintos accesos a las plantas superiores e inferiores mediante ascensor y escaleras. En las zonas comunes, se encuentra una cantina completamente equipada con fregadero, microondas y una zona de vending, proporcionando comodidad adicional para los empleados. Todos los despachos están equipados con climatización, ventanas al exterior, sistemas de prevención contra incendios e iluminación de bajo consumo.
Ubicada en una de las zonas mejor comunicadas de Rubí, disfruta de un acceso rápido a las principales carreteras y autopistas como la C-16 y AP-7, así como a la parada de autobús. Además, cuenta con una excelente oferta de servicios cercanos, incluyendo restaurantes, estaciones de servicio y otros puntos de interés, que aportan comodidad tanto para los trabajadores como para los clientes.
Estas características hacen que la oficina sea una opción perfecta para empresas que buscan una base estratégica en un entorno moderno, funcional y bien conectado.






