Descripción
Ubicación y accesibilidad
Nave industrial en alquiler y venta situada en el Polígono Industrial Gràcia Sud, en el municipio de Sabadell,
una de las áreas más estratégicas del Vallès Occidental (Barcelona).
La nave se encuentra a solo 25 km de Barcelona y cuenta con excelentes comunicaciones a través de las vías N-150, C-58 y AP-7,
lo que facilita el acceso tanto al área metropolitana como al resto de Cataluña.
Está situada a 52,9 km del Aeropuerto de Barcelona-El Prat y a 42 km del Puerto de Barcelona,
convirtiéndola en una opción ideal para actividades logísticas e industriales.
Características de la nave
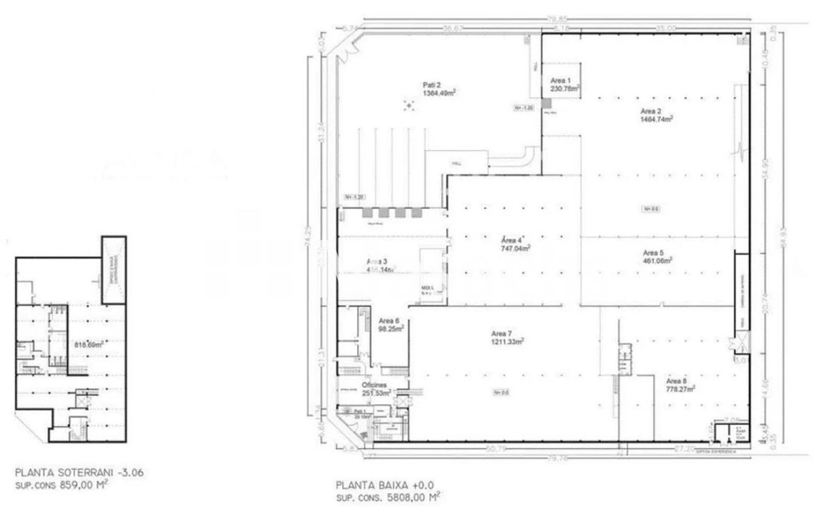
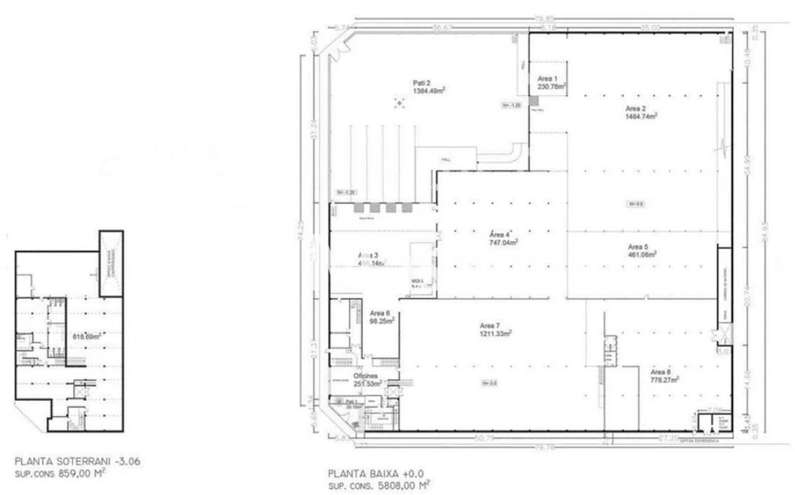
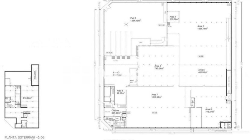
- Superficie total construida: 9.130 m², distribuidos en:
- Planta baja (industrial / producción): 5.827 m².
- Primera planta (industrial): 2.018 m².
- Primera planta (oficinas): 445 m² con acceso independiente.
- Planta sótano: 859 m².
- Patio interior: 1.411,33 m².
- Altura libre: 9,90 metros (punto más alto bajo viga).
- Accesos:
- 1 puerta T.I.R. para vehículos pesados.
- 1 puerta de vidrio para acceso independiente a oficinas.
- 5 muelles de carga en el patio interior.
- Instalaciones:
- Montacargas entre el sótano y la planta baja.
- Suministros de agua y luz dados de alta con potencia contratada de 250 kW.
- Protección contra incendios: BIES y extintores.
- Estructura metálica ignifugada.
- Cubierta de chapa.
- Zona de comedor.
- 8 baños distribuidos entre la zona industrial y las oficinas, con vestuarios.
Uso ideal
Esta nave es perfecta para actividades de producción, almacenamiento, distribución y logística,
especialmente para empresas que valoren una imagen corporativa destacada y necesiten
infraestructura de carga avanzada.
Información adicional
- Estado de conservación: Buen estado.
- Disponibilidad: Inmediata.
Ventajas de la propiedad
- Gran imagen corporativa en un entorno industrial consolidado.
- Acceso rápido a las principales vías: N-150, C-58 y AP-7.
- Conexión directa con transporte público (tren y autobús).
- Infraestructura completa con muelles de carga y montacargas.
- Nave de grandes dimensiones con altura libre de 9,9 metros.


