Descripción
Ubicación y accesibilidad
Nave industrial adosada tipo A en alquiler, situada en el P.I. Congost – Sector J de Montornès del Vallès. Ubicación estratégica con excelentes comunicaciones mediante la AP-7, así como conexión con la C-17 y la C-33, facilitando el acceso a Barcelona, Girona y el resto del Vallès. Entorno industrial totalmente consolidado.
Características de la nave
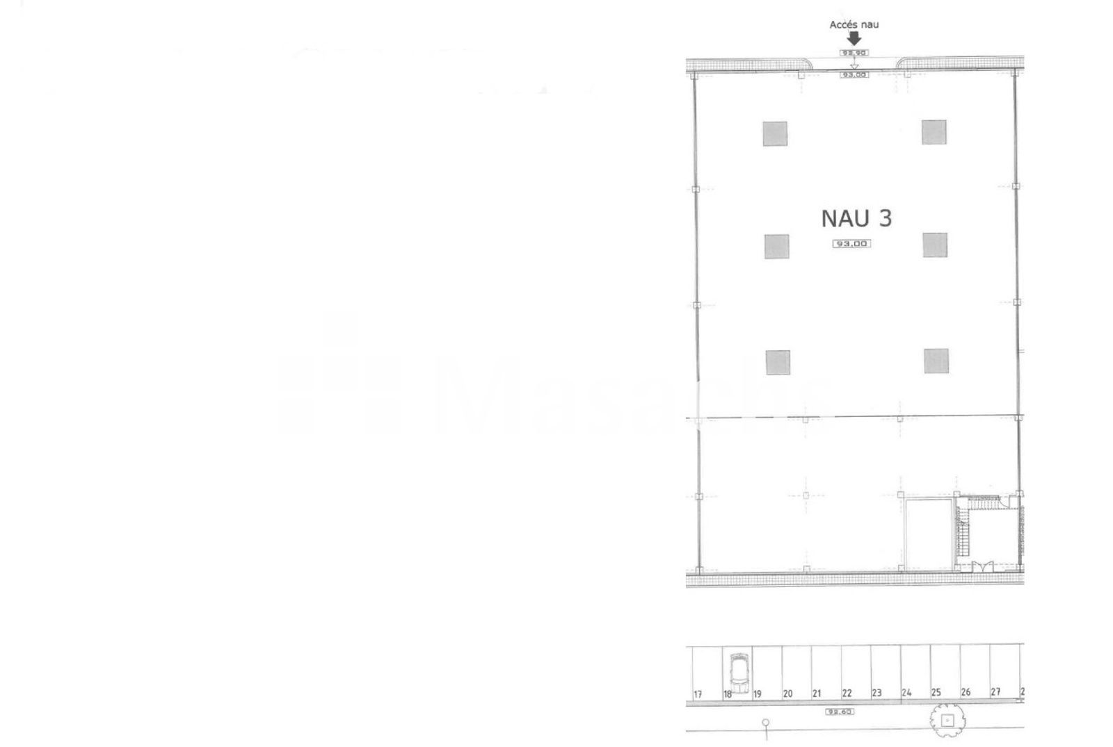
– Superficie construida total: 1.472 m².
– Planta baja: 1.144,21 m².
– Planta altillo: 327,68 m².
– Altura libre: 6,70 m bajo cercha.
– Dimensiones: 27 m de ancho x 29,20 m de fondo + 13 m bajo altillo.
– Patio comunitario: 9.518 m².
– Accesos peatonales y puerta TIR.
– Estructura de hormigón.
– Cubierta tipo Deck.
– Puente grúa de 8 toneladas.
– Oficinas climatizadas y en muy buen estado.
– Sistema antiincendios con BIEs y detectores.
– Alarma antirrobo.
– Suministros de luz y agua dados de alta.
– Zona de aparcamiento privativa anexa a dos fachadas.
Uso ideal
Ideal para empresas industriales que requieran puente grúa, buena imagen corporativa, oficinas equipadas y excelente operativa logística en una ubicación estratégica.
Información adicional
– Estado de conservación: muy buen estado.
– Disponibilidad: inmediata.
Ventajas de la propiedad
– Excelente conexión con AP-7, C-17 y C-33.
– Nave con puente grúa de 8T.
– Muy buena imagen corporativa.
– Amplio patio comunitario con buena maniobrabilidad.
– Oficinas climatizadas listas para entrar.

