Descripción
Ubicación y accesibilidad:
Nave industrial aislada Tipo C de alquiler situada en el Polígono Industrial Gran Via Sur, en L’Hospitalet de Llobregat, una de las áreas más estratégicas del Baix Llobregat, Barcelona. La nave disfruta de una ubicación privilegiada, junto a la Gran Via de les Corts Catalanes, con acceso inmediato a la C-31, B-10 (Ronda Litoral) y la C-32, facilitando la conexión rápida tanto con el centro de Barcelona como con el Aeropuerto de Barcelona-El Prat. La zona también cuenta con acceso a transporte público, incluyendo paradas de autobús y estaciones de metro cercanas (línea L9 y L10), que conectan directamente con el aeropuerto y la ciudad.
Características de la nave:
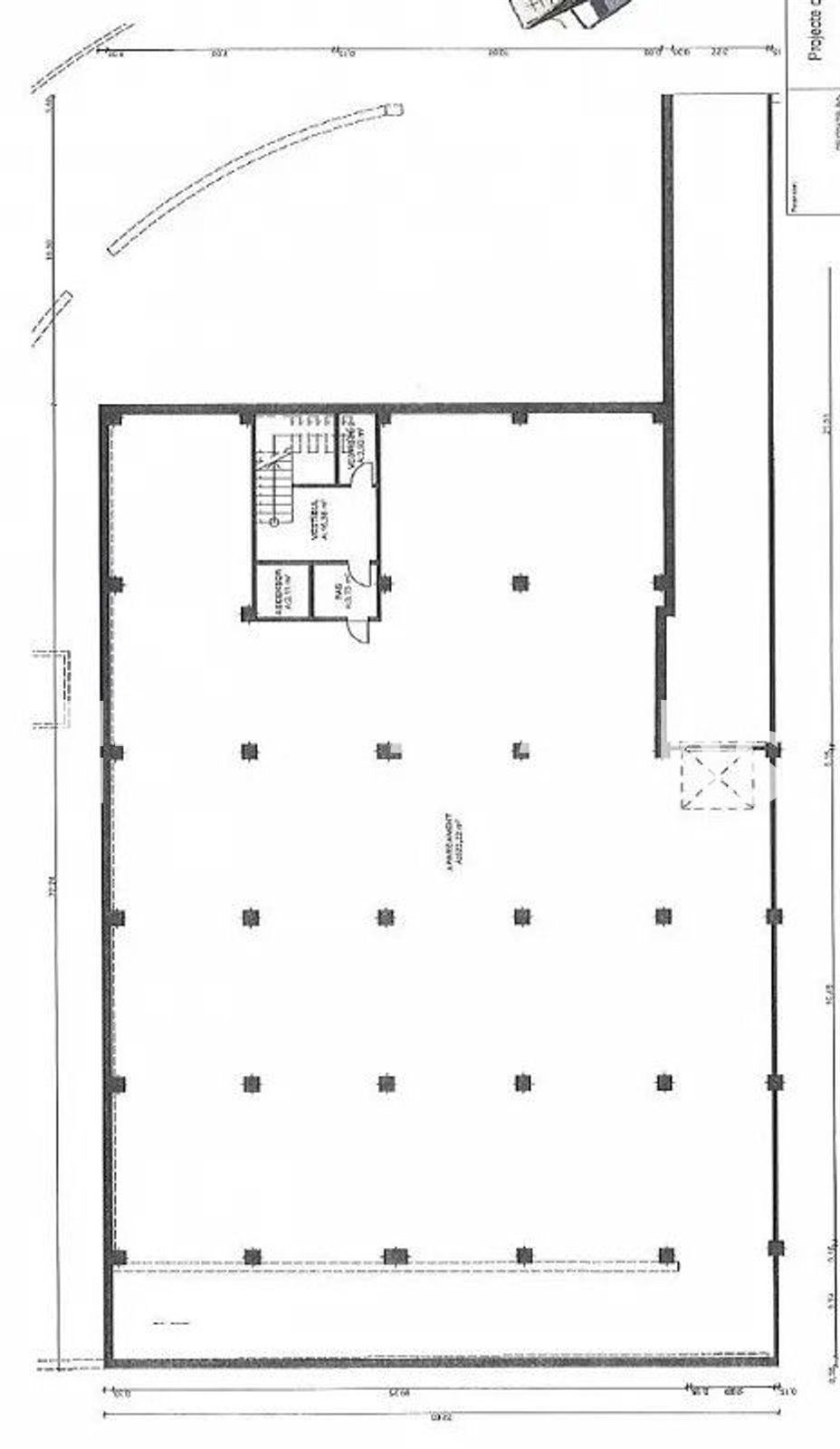
- Superficie total de la nave: 1.973, 34 m² distribuidos en:
o Planta Sótano: 657,88 m²
o Planta Baja: 558,73 m²
o Planta Altillo: 198,00 m²
o Planta Primera: 558,73 m² - Altura: 7 metros, ideal para almacenaje, actividades industriales y logísticas.
- Acceso: Dispone de 1 puertas TIR y una seccional.
- Ofcinas en el altillo.
- Estructura: Hormigón armado, alta resistencia y seguridad.
- Patio perimetral con plazas de aparcamiento, además de 30 plazas en planta sótano.
- Dispone de ascensor.
Uso ideal:
Esta nave es perfecta para actividades de almacenamiento, logística, distribución o producción industrial ligera, adaptándose a diferentes sectores.
Información adicional:
- Estado de conservación: Buen estado.
- Disponibilidad: Inmediata.
Ventajas de la propiedad:
- Excelente visibilidad en una zona empresarial consolidada.
- Conexión rápida a Barcelona, al aeropuerto y principales ejes logísticos (Gran Via, C-31, B-10, C-32).
- Entorno seguro y dinámico, ideal para empresas que buscan potenciar su operativa logística e industrial.








