Descripción
Ubicación y accesibilidad
Nave industrial aislada tipo C en alquiler situada en Granollers, dentro del Vallès Oriental.
Ubicación estratégica con excelentes conexiones con las principales vías de comunicación: AP-7, C-17 y N-150.
Entorno industrial consolidado y bien comunicado, ideal para actividades logísticas, industriales o comerciales.
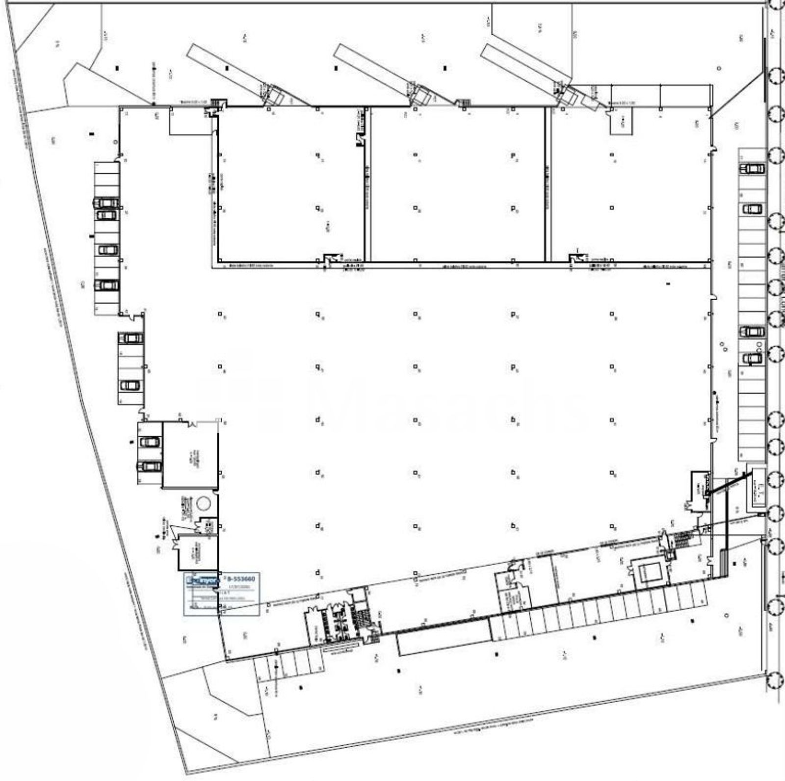
Características de la nave
- Superficie total construida: 11.671,11 m².
- Distribución:
- Planta baja: 9.960,39 m².
- Primera planta: 855,36 m².
- Segunda planta: 855,36 m².
- Patio: 6.842,20 m².
- Altura libre: de 12,72 a 14,57 metros.
- Estructura: estructura y cerramientos de hormigón.
- Cubierta: tipo “Deck”.
- Accesos: 3 puertas TIR a nivel de calle y 3 muelles con plataforma y abrigo (ampliables).
- Oficinas: entrada con muro cortina.
- Protección contra incendios: 1 sector de riesgo bajo y 3 sectores de riesgo alto, con BIEs, sala de bombas y depósito.
- Iluminación: LED.
- Equipamiento adicional: sala de carga para carretillas elevadoras, pararrayos, ascensor para 6 personas, vestuarios para hombres y mujeres, comedor y servicios completos.
- Instalaciones: datos y telefonía, climatización por bomba de calor, centro de transformación propio.
Uso ideal
Ideal para empresas industriales, logísticas o de servicios que necesiten una nave funcional, con buena altura,
zonas de carga y descarga, y espacios de oficina y servicios bien equipados.
Perfecta para producción ligera, almacenamiento o distribución.
Información adicional
- Estado de conservación: Excelente.
- Certificado de Eficiencia Energética: A.
- Disponibilidad: Mayo 2026.
Ventajas de la propiedad
- 3 muelles con plataforma y abrigo (ampliables) y 3 puertas TIR.
- Altura libre de hasta 14,57 metros, ideal para producción y almacenamiento.
- Ubicación estratégica con acceso directo a AP-7, C-17 y N-150.
- Certificación energética A y excelente imagen corporativa.



