Descripción
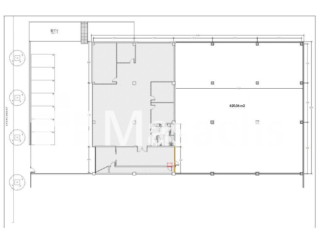
¿Buscas una oficina de alquiler bien ubicada en Terrassa? Oficina de alquiler situada en el polígono industrial Santa Margarida, cerca del Parc Vallès. Estas oficinas versátiles y espaciosas, con 620,56 m², son ideales para cualquier empresa que necesite un espacio de trabajo amplio y cómodo.
Con una ubicación privilegiada en una zona industrial bien comunicada, nuestras oficinas son accesibles por carretera mediante la N-150 y en transporte público con las líneas 4, 7, 8, 9, 10, 16, E2.1, E2.2, B8, N61 y N64.
Además, el edificio en el que se encuentran las oficinas tiene una imagen corporativa muy atractiva.
No dude en contactar con nosotros para obtener más información sobre esta oferta de alquiler de oficinas en Terrassa.





