Descripción
Ubicación y accesibilidad:
Local en alquiler situada en el barrio de El Pedró de Cornellà de Llobregat, una de las zonas más dinámicas y céntricas del Baix Llobregat, Barcelona. Este espacio cuenta con excelente acceso a través de la carretera de Esplugues, así como conexión directa con la B-23, C-245 y el nudo de acceso a la A-2 y Ronda de Dalt (B-20), lo que permite una movilidad ágil hacia Barcelona y el resto del área metropolitana. Además, está muy bien conectada con transporte público: Tranvía (T1 y T2) a pocos minutos caminando, metro L5 (Cornellà Centre), RENFE líneas R4 y R7y autobuses urbanos e interurbanos (líneas 67, 68 y 95).
Características de la oficina:
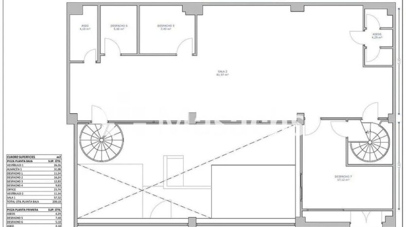
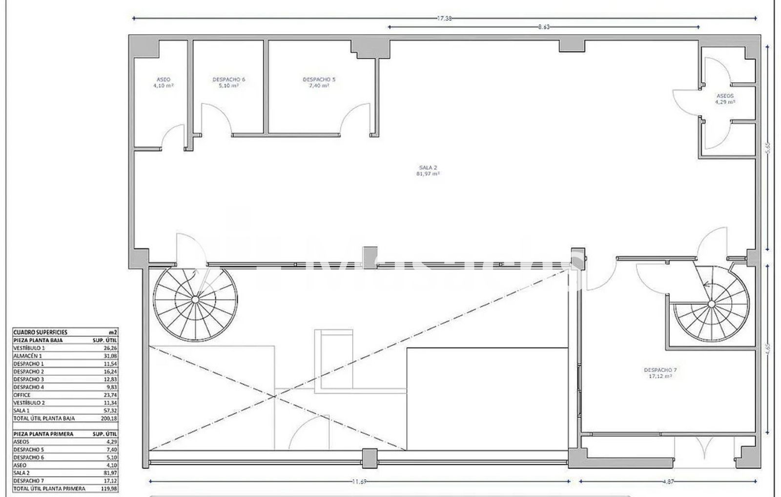
- Superficie total: 320 m² a pide de calle.
- Planta baja: 200,18 m²
- Altillo: 119,98 m²
- Distribución: dispone de despachos, cocina office y recepción.
- Acceso: directo desde la calle y a través de la portería.
- Suministros dados de alta.
- Gran entrada de luz natural.
- Instalaciones: Escaparate, ventanas de alumino, suelo de parquet y armario empotrado.
- 1 aseo privado.
Uso ideal:
Este local es perfecto para actividades de despacho profesional, servicios administrativos, atención al cliente o consultoría, proporcionando un entorno cómodo y bien comunicado.
Información adicional:
- Estado de conservación: Buen estado
- Disponibilidad: Inmediata
Ventajas de la propiedad:
- Excelente visibilidad en una ubicación consolidada y con imagen corporativa.
- Conexión directa con Barcelona y el área metropolitana mediante coche y transporte público.
- Entorno dotado de servicios educativos, restauración y comercio, ideal para el día a día empresarial.



