Descripció
Ubicació i accessibilitat
Nau industrial situada a Palafrugell, en una zona industrial consolidada amb bona operativa logística. Correcta connexió amb les principals vies de comunicació de la comarca, com la C-31, la C-66 i els accessos cap a l’AP-7, facilitant la connexió amb Girona, Barcelona i la Costa Brava.
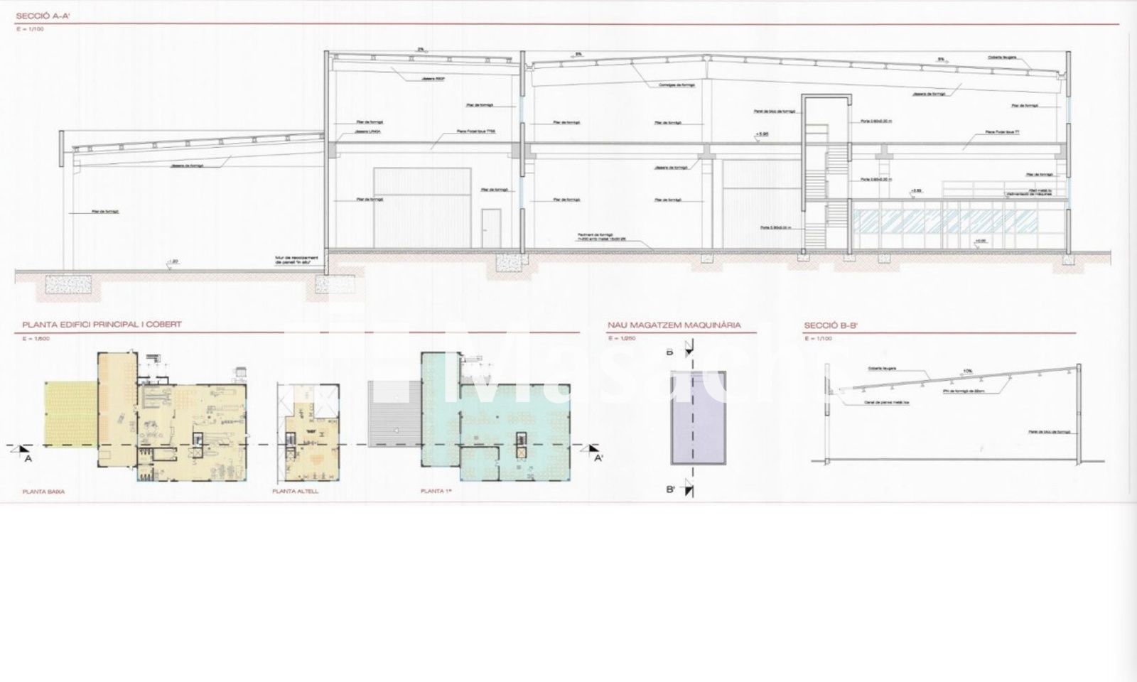
Característiques de la nau
– Superfície total construïda: 2.506 m².
– Planta baixa: 1.037 m².
– Planta primera: 1.027 m².
– Altell: 260 m².
– Cobert: 234 m².
– Magatzem addicional: 91 m² (panell sandvitx 35 m² i cobert 30 m²).
– Superfície pavimentada: 3.600 m².
– Superfície total de parcel·la: 5.389 m².
– Subministrament elèctric amb Endesa. Potència total instal·lada: 230 kW.
– Instal·lació fotovoltaica de 50 kW amb 122 plaques solars (instal·lació del 21 de gener de 2023).
– Dipòsit de gasoil de 10.000 litres.
– Parcel·la divisible en dues finques: finca 1 per a 3 activitats i finca 2 per a 2 activitats.
– Disposa de moll de càrrega.
– Possibilitat d’ampliar la superfície construïda en 1.034 m² addicionals.
Ús ideal
Ideal per a empreses industrials, logístiques o de producció que requereixin gran superfície construïda i pavimentada, alta potència elèctrica instal·lada, instal·lacions energètiques pròpies i possibilitat d’ampliació futura.
Informació addicional
– Estat de conservació: bo.
– Disponibilitat: immediata.
Avantatges de la propietat
– Gran parcel·la de 5.389 m² amb àmplia zona pavimentada.
– Potència elèctrica elevada (230 kW) i plaques solars de 50 kW.
– Possibilitat de divisió per activitats.
– Moll de càrrega i dipòsit de gasoil propi.
– Opció d’ampliació de 1.034 m² addicionals.




