Descripción
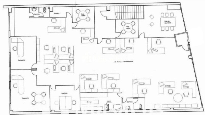
Nave industrial en primera línea de autopista en venta y alquiler en Can Parellada, Terrassa. Nave con imagen corporativa de 1198 m², ubicada en una vía con gran cantidad de afluencia de coches. Distribuida en una superficie de planta de 854 m² y unas oficinas en planta piso de 344 m² en buen estado y con climatización. Tiene 6 despachos, dos aseos, vestuario con ducha y una gran zona central diáfana. Dispone de sufrido patio delantero, ideal para clientes y el acceso a la nave se puede realizar a través de una puerta peatonal y también se puede acceder a las oficinas por una puerta independiente. También tiene puerta para vehículos de 4 m de ancho. Cuenta con todos los mecanismos que cuenta incendios (muros cortafuegos, BIES y detección de humos). Suministros dados de alta, luz y agua.
Sus principales vías de comunicación son la C-58, la carretera de Rubí, los túneles de Vallvidrera y la N-150. Bien comunicada en transporte público mediante las líneas de autobús urbano 15, 4 y 10. A 37 km del aeropuerto de Barcelona ya 38 km del puerto de Barcelona.


