Descripció
Ubicació i accessibilitat:
Oficina de lloguer situada en un elegant edifici d’oficines a Rubí, una de les àrees més estratègiques del Vallès Occidental, Barcelona. Gaudeix d’un accés ràpid a les principals carreteres i autopistes, com la C-16 i l’AP-7, així com a parades d’autobús properes. A més, compta amb una excel·lent oferta de serveis a la zona, incloent restaurants, estacions de servei i altres punts d’interès que aporten comoditat tant per als treballadors com per als clients.
Característiques de l’oficina:
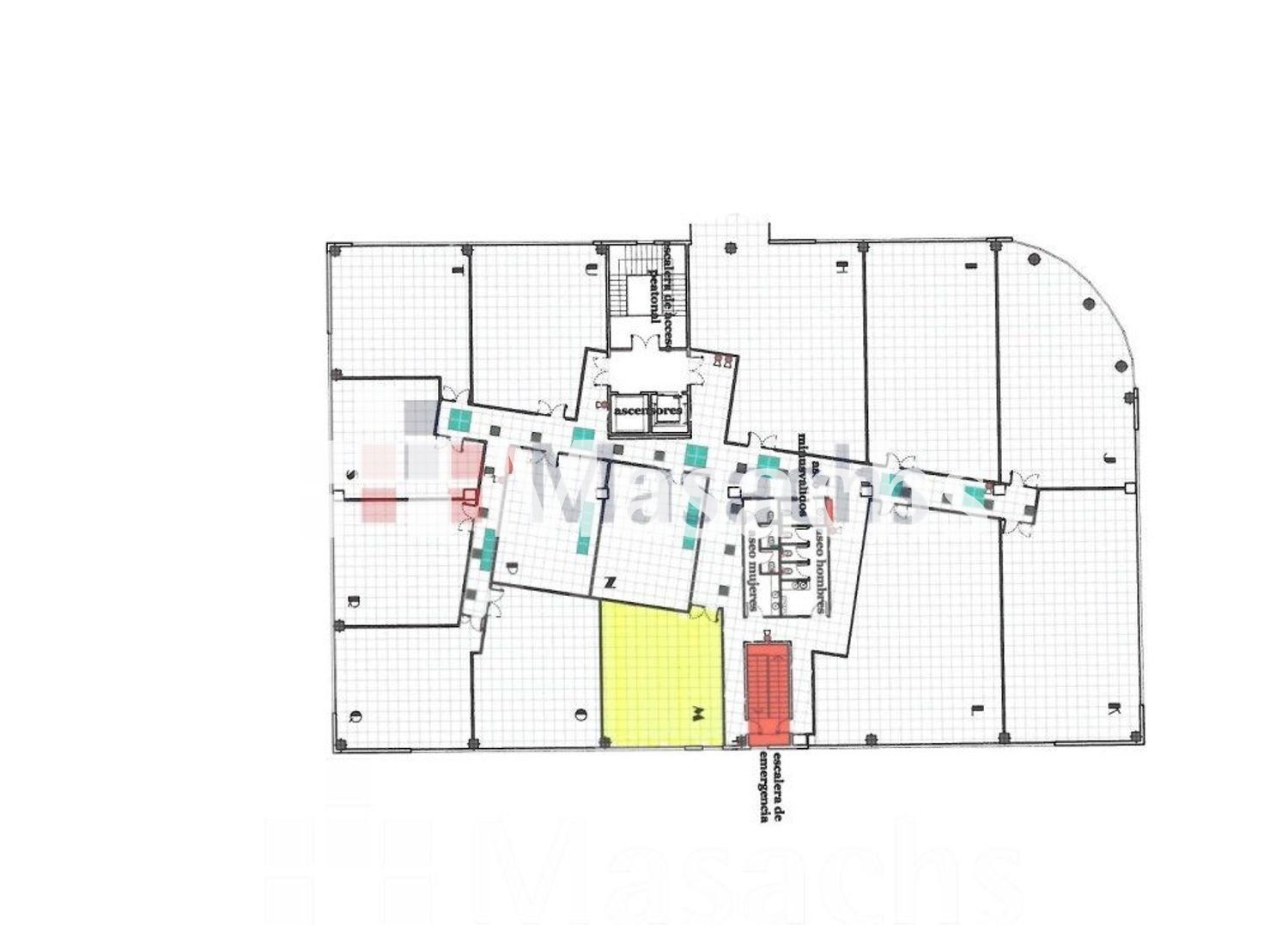
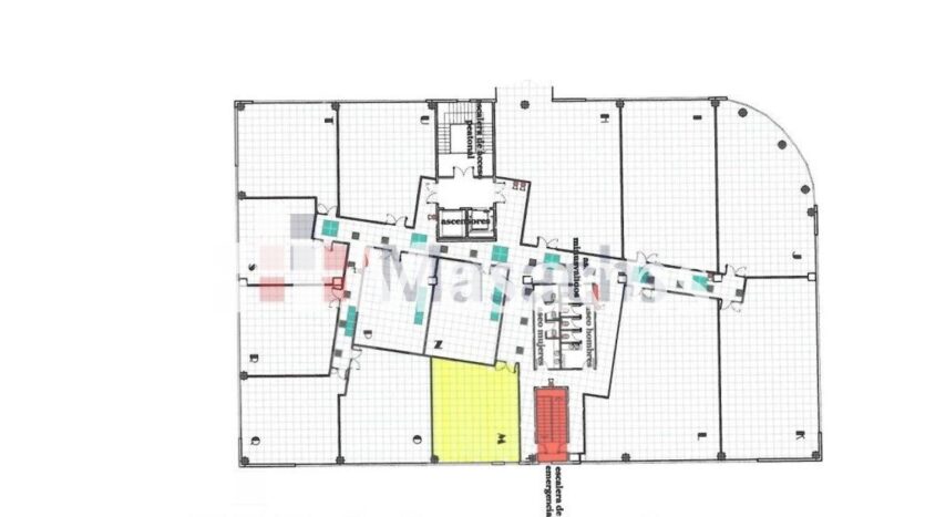
– Superfície total de l’oficina: 58 m²
– Accés: L’edifici compta amb ascensors i escales que connecten totes les plantes.
– Instal·lacions: Tots els subministraments estan donats d’alta, climatització mitjançant aire condicionat, sistemes de prevenció contra incendis i il·luminació de baix consum.
– Espais addicionals: Zones comunes amb cantina equipada (aigüera, microones i zona de vending).
– Lavabos: Bany comunitari a la planta.
Ús ideal:
Aquesta oficina és perfecta per a empreses que busquen una base estratègica en un entorn modern, funcional i ben connectat, ideal per a activitats administratives i comercials.
Informació addicional:
– Estat de conservació: Bon estat.
– Disponibilitat: Immediata.
Avantatges de la propietat:
– Excel·lent visibilitat i ubicació en un edifici corporatiu.
– Accés ràpid a les principals vies de transport i serveis de la zona.
– Entorn modern i funcional, dissenyat per a la productivitat empresarial.
– Espai diàfan i cantoner amb grans finestrals que garanteixen abundant llum natural.





