Descripció
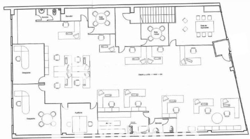
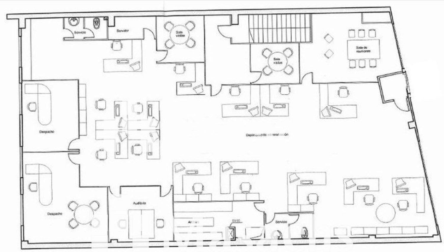
Nau industrial a primera línia d’autopista en venda i lloguer a Can Parellada, Terrassa. Nau amb imatge corporativa de 1198 m², situada en una via amb gran quantitat d’afluència de cotxes. Distribuïda en una superfície de planta de 854 m² i unes oficines en planta pis de 344 m² en bon estat i amb climatització. Té 6 despatxos, dos lavabos, vestuari amb dutxa i una gran zona central diàfana. Disposa de patit pati davanter, ideal per a clients i l’accés a la nau es pot realitzar a través d’una porta per a vianants i també es pot accedir a les oficines per una porta independent. També té porta per a vehicles de 4 m d’ample. Compta amb tots els mecanismes conta incendis (murs tallafocs, BIES i detecció de fums). Subministraments donats d’alta, llum i aigua.
Les seves principals vies de comunicació són la C-58, la carretera de Rubí, els túnels de Vallvidrera i la N-150. Ben comunicada en transport públic mitjançant les línies d’autobús urbà 15, 4 i 10. A 37 km de l’aeroport de Barcelona i a 38 km del port de Barcelona.







