Descripció
Ubicació i accessibilitat
Nau industrial aïllada tipus C. en lloguer situada a Calaf (Barcelona), en una ubicació estratègica dins de la comarca de l’Anoia. Excel·lent connexió amb les principals vies de comunicació com la C-25 (Eix Transversal) i la C-1412a, facilitant l’accés cap a Manresa, Lleida i l’interior de Catalunya.
Característiques de la nau
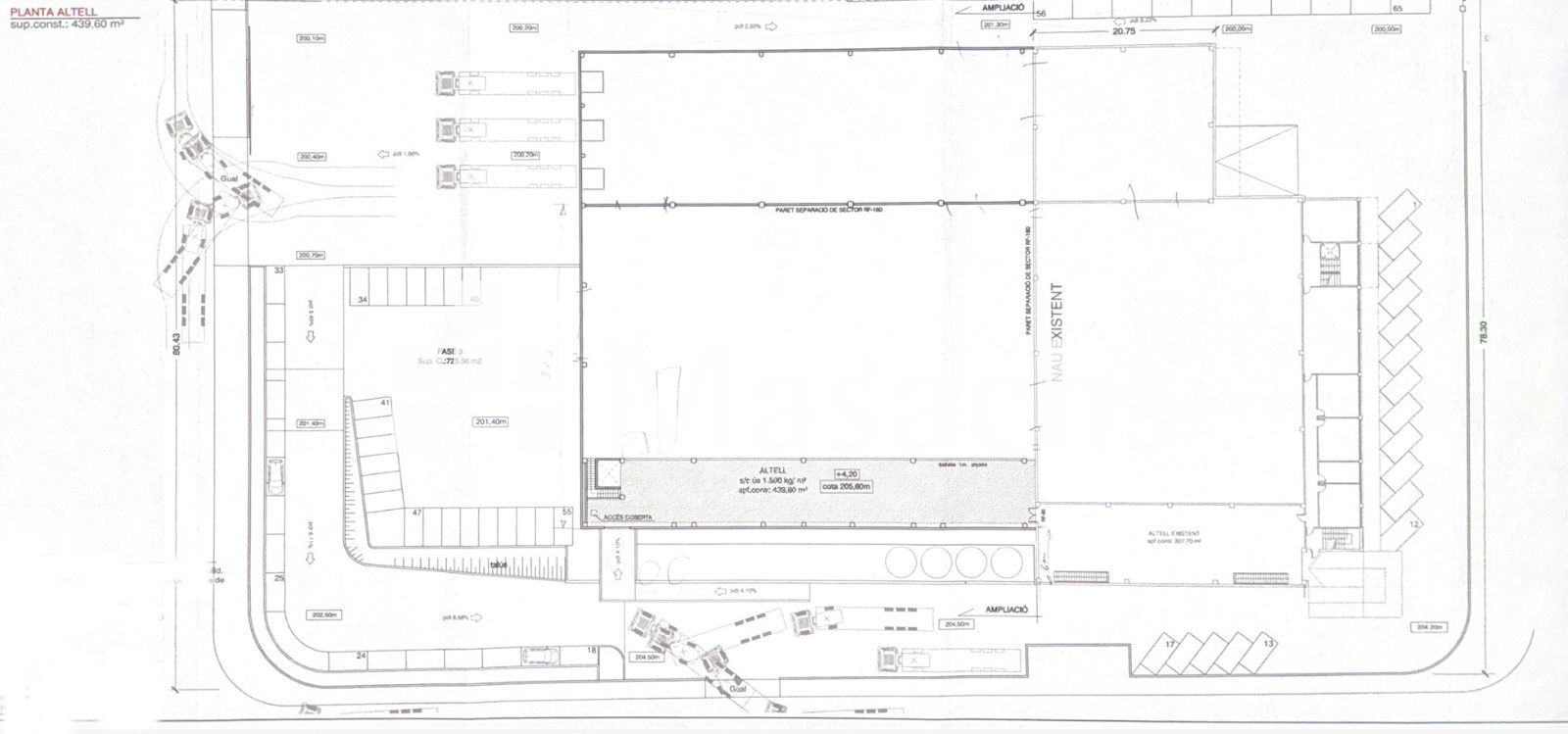
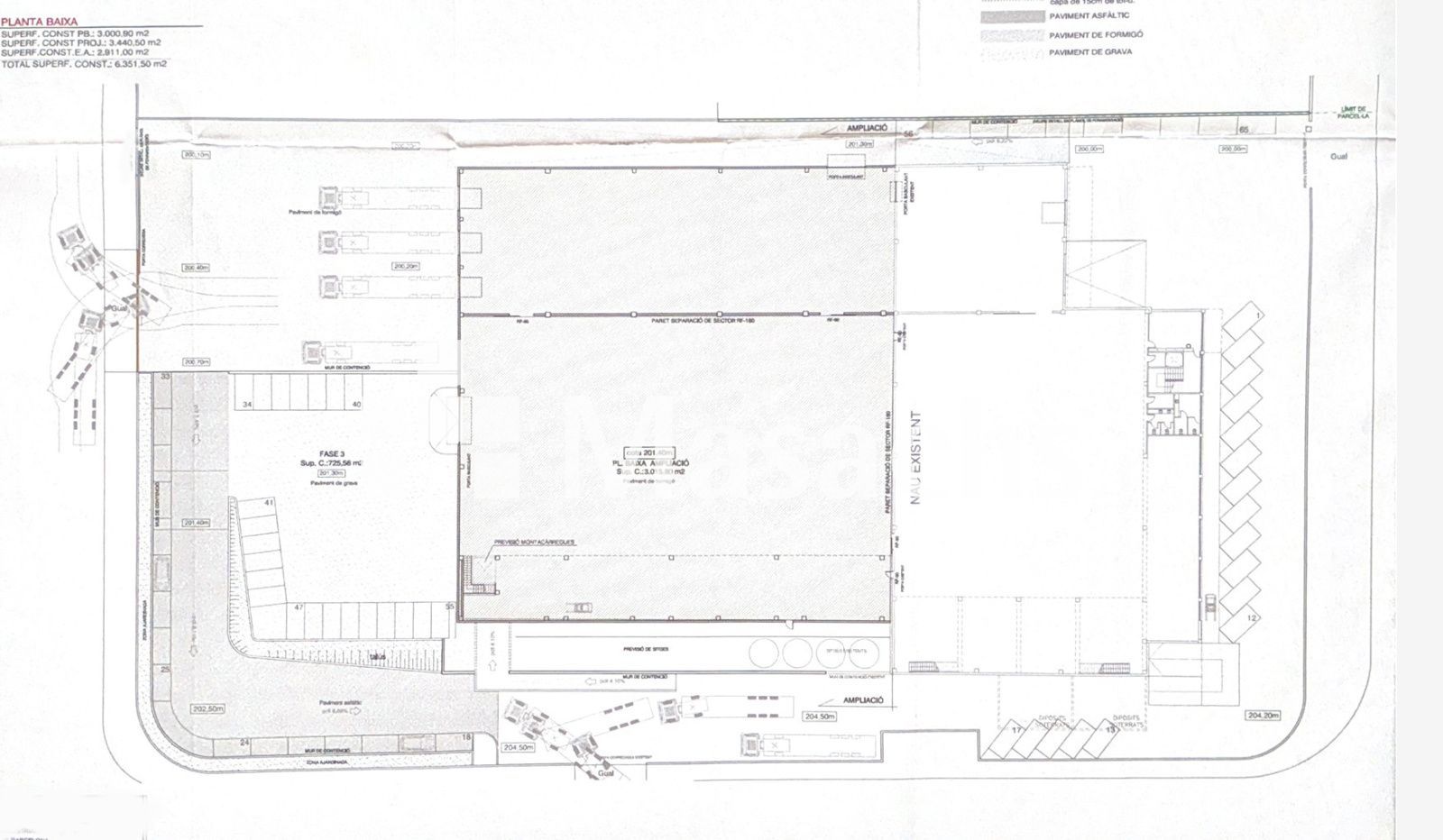
– Superfície total construïda: 6.352 m².
– Planta baixa: 5.804 m².
– Oficines: 548 m² distribuïts en dues plantes de 274 m² cadascuna.
– Oficines amb vestidors (homes i dones), office i lavabos independents a ambdues plantes.
– Alçada mínima sota biga: 8,5 metres.
– Pati exterior: 5.300 m².
– Nau aïllada tipus C.
– 3 portes TIR.
– 1 moll de càrrega a façana i 3 molls de càrrega al pati posterior.
– Dipòsit d’aigua propi per a sistema contra incendis.
– Grup de pressió per a BIES.
– Nau sectoritzada en 4 sectors amb portes automàtiques RF.
– Part de la nau amb exutoris.
– Estructura de formigó.
– Nau totalment adaptada a la normativa vigent contra incendis.
Ús ideal
Ideal per a empreses logístiques, industrials o de distribució que requereixin una gran superfície, múltiples molls de càrrega, amplis patis de maniobra i oficines completament equipades.
Informació addicional
– Estat de conservació: excel·lent.
– Disponibilitat: immediata.
Avantatges de la propietat
– Nau aïllada tipus C amb gran pati perimetral.
– Excel·lent operativa logística amb múltiples molls de càrrega.
– Oficines completes amb vestidors i serveis.
– Sistema contra incendis complet i sectorització avançada.
– Connexió directa amb C-25 i principals eixos logístics.
