Description
Location and accessibility
Detached type C industrial warehouse for rent located in Calaf (Barcelona), in a strategic location within the Anoia region. Excellent connection to major transport routes such as the C-25 (Transversal Axis) and the C-1412a, providing easy access to Manresa, Lleida, and inland Catalonia.
Warehouse features
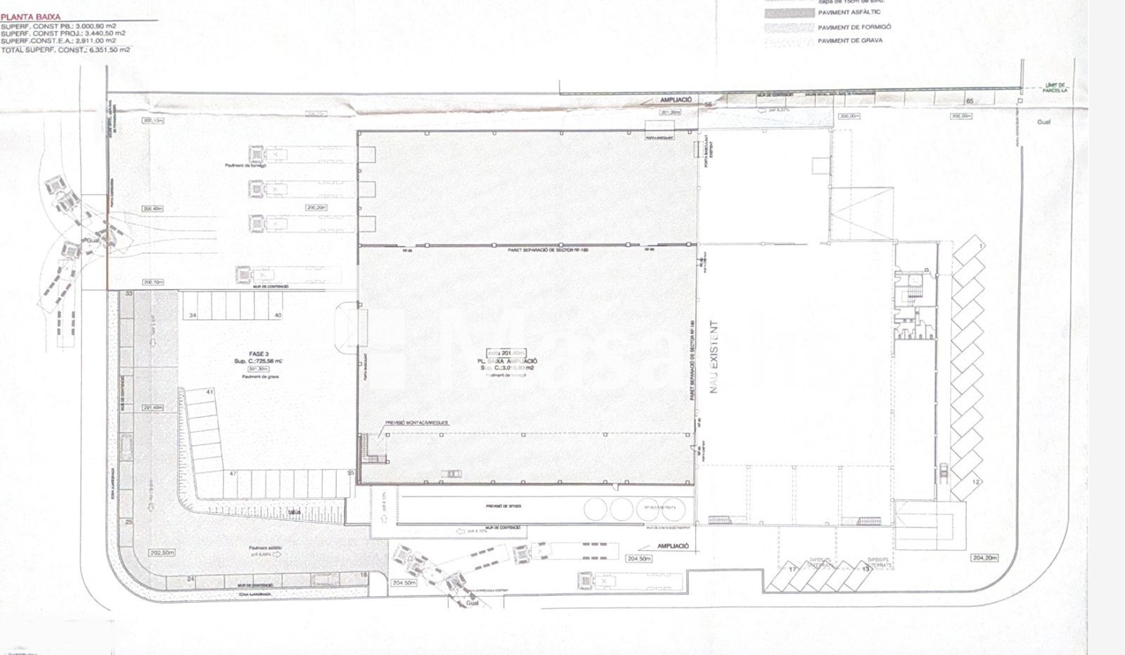
– Total built area: 6,352 m².
– Ground floor: 5,804 m².
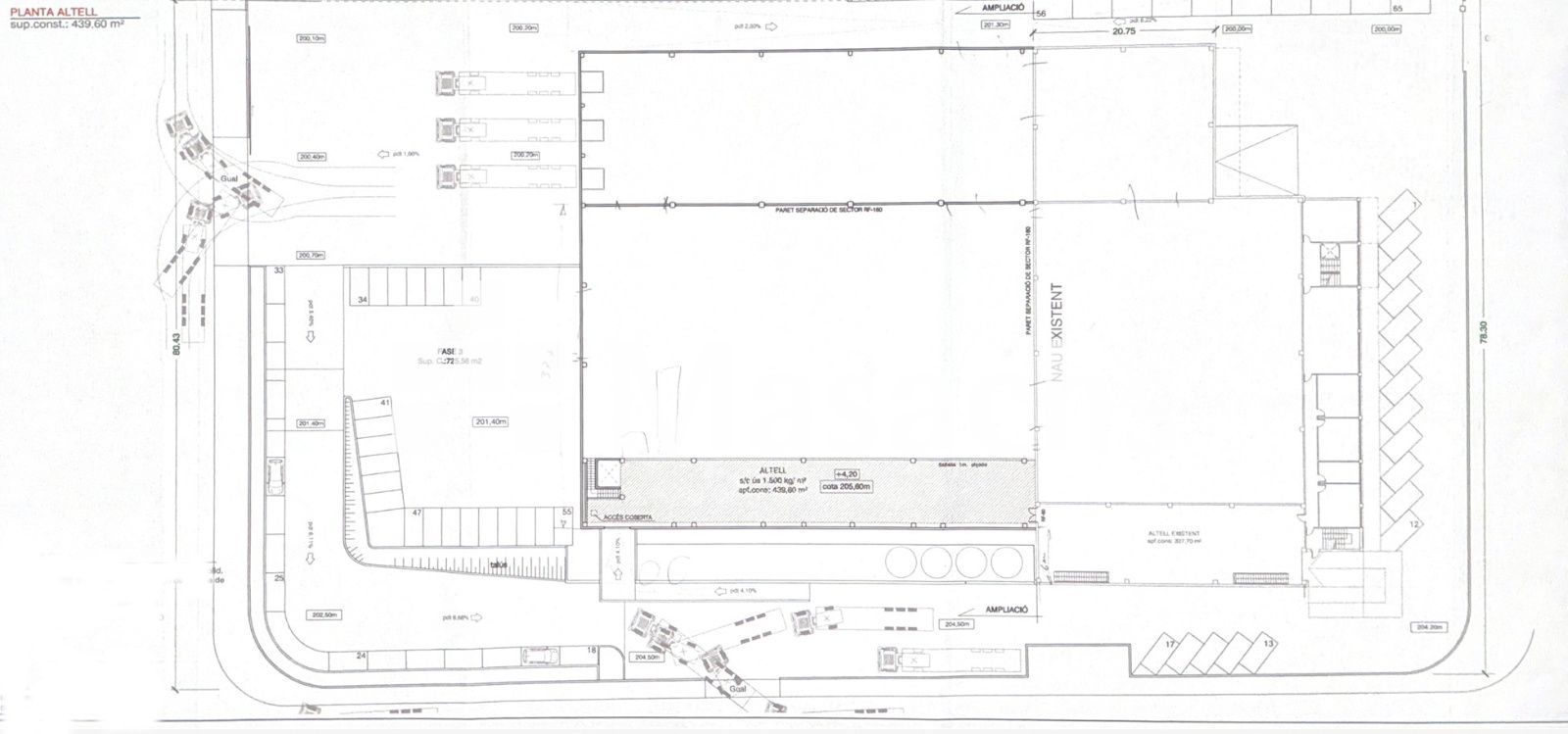
– Offices: 548 m² distributed over two floors of 274 m² each.
– Offices equipped with changing rooms (men and women), office area, and separate restrooms on both floors.
– Minimum clear height: 8.5 meters.
– Outdoor yard: 5,300 m².
– Detached type C warehouse.
– 3 TIR doors.
– 1 loading dock on the façade and 3 loading docks in the rear yard.
– Own water tank for fire protection system.
– Pressure group for fire hose reels (BIES).
– Warehouse divided into 4 fire sectors with automatic RF doors.
– Part of the warehouse equipped with smoke vents.
– Concrete structure.
– Fully compliant with current fire safety regulations.
Ideal use
Ideal for logistics, industrial, or distribution companies requiring large surface areas, multiple loading docks, spacious maneuvering yards, and fully equipped office space.
Additional information
– Condition: excellent.
– Availability: immediate.
Property advantages
– Detached type C warehouse with large perimeter yard.
– Excellent logistics operations with multiple loading docks.
– Fully equipped offices with changing rooms and services.
– Complete fire protection system with advanced sectorization.
– Direct connection to C-25 and main logistics corridors.
