Descripció
Ubicació i accessibilitat:
Oficina de lloguer situada al barri del Pedró de Cornellà de Llobregat, una de les zones més dinàmiques i cèntriques del Baix Llobregat, Barcelona. Aquest espai compta amb un accés excel·lent a través de la carretera d’Esplugues, així com connexió directa amb la B-23, la C-245 i el nus d’accés a l’A-2 i la Ronda de Dalt (B-20), cosa que permet una mobilitat àgil cap a Barcelona i la resta de l’àrea metropolitana. A més, està molt ben connectada amb transport públic: Tramvia (T1 i T2) a pocs minuts caminant, metro L5 (Cornellà Centre), RENFE línies R4 i R7 i autobusos urbans i interurbans (línies 67, 68 i 95).
Característiques de l’oficina:
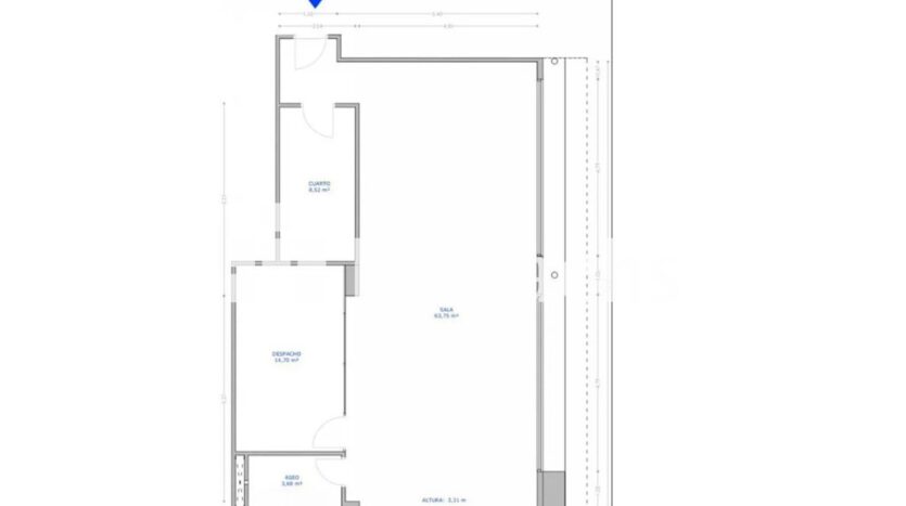
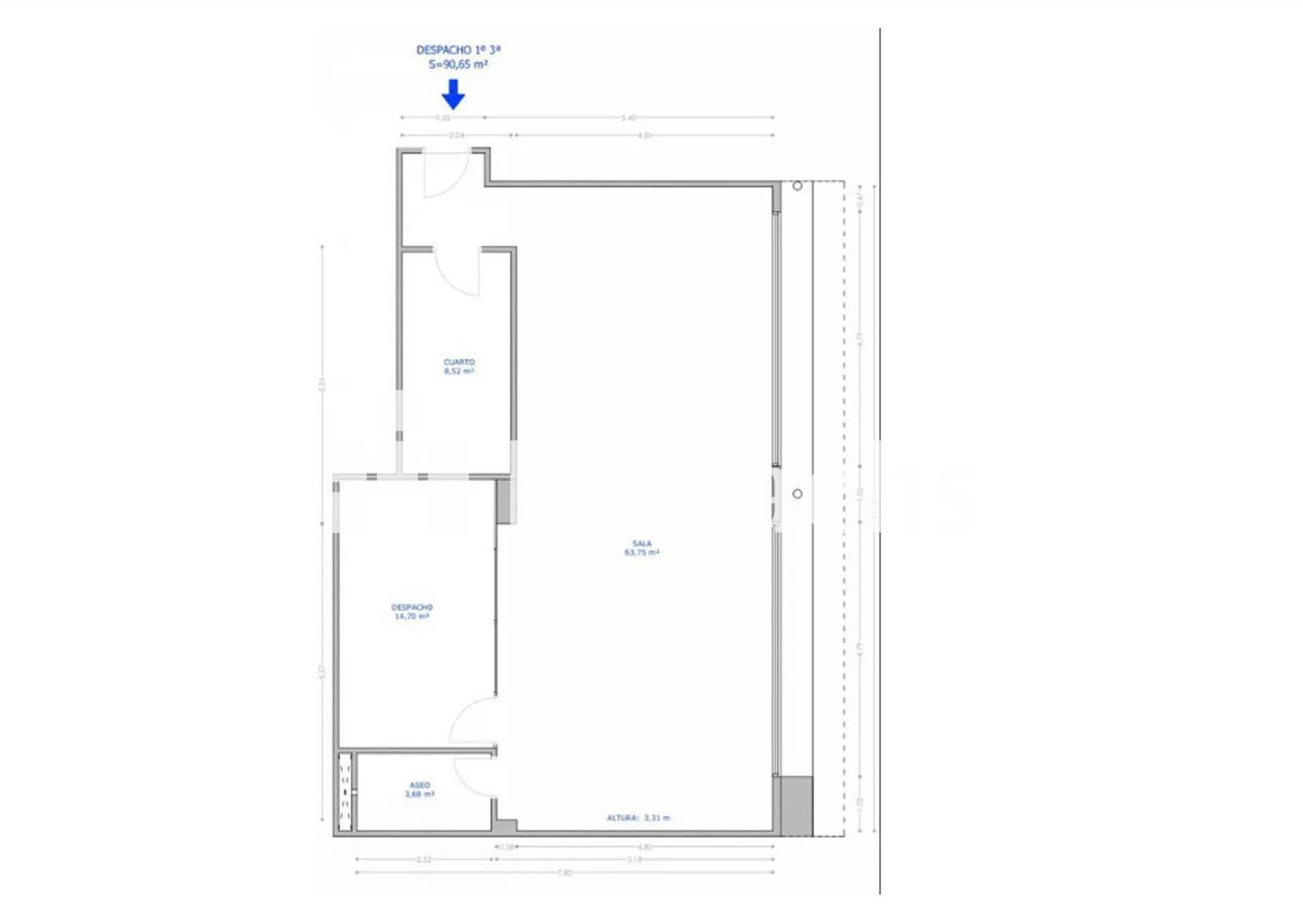
– Superfície total: 90,65 m² m² a la primera planta.
– Distribució: Una sala gran i una de petita.
– Gran entrada de llum natural.
– Instal·lació elèctrica (subministraments donats de baixa) i finestres d’al·lumini.
– 1 lavabo privat.
Ús ideal:
Aquesta oficina és perfecta per a activitats de despatx professional, serveis administratius, atenció al client o consultoria, proporcionant un entorn còmode i ben comunicat.
Informació addicional:
– Estat de conservació: Bon estat
– Disponibilitat: Immediata
Avantatges de la propietat:
– Excel·lent visibilitat en una ubicació consolidada i amb imatge corporativa.
– Connexió directa amb Barcelona i l’àrea metropolitana amb cotxe i transport públic.
– Entorn dotat de serveis educatius, restauració i comerç, ideal per al dia a dia empresarial.



