Descripció
Ubicació i accessibilitat:
Nau industrial en venda en rendibilitat situada al polígon industrial Can Verdalet, Tordera, una de les zones estratègiques del Maresme, Barcelona. La nau compta amb accés ràpid a la C-32 i l’AP-7, principals eixos de comunicació que faciliten la distribució i logística a la regió. A més, està ben connectada amb la N-II, permetent un desplaçament fàcil cap a Barcelona i Girona. La zona disposa de servei de transport públic amb parades d’autobús properes i l’estació de tren de Tordera a pocs minuts.
Característiques de la nau:
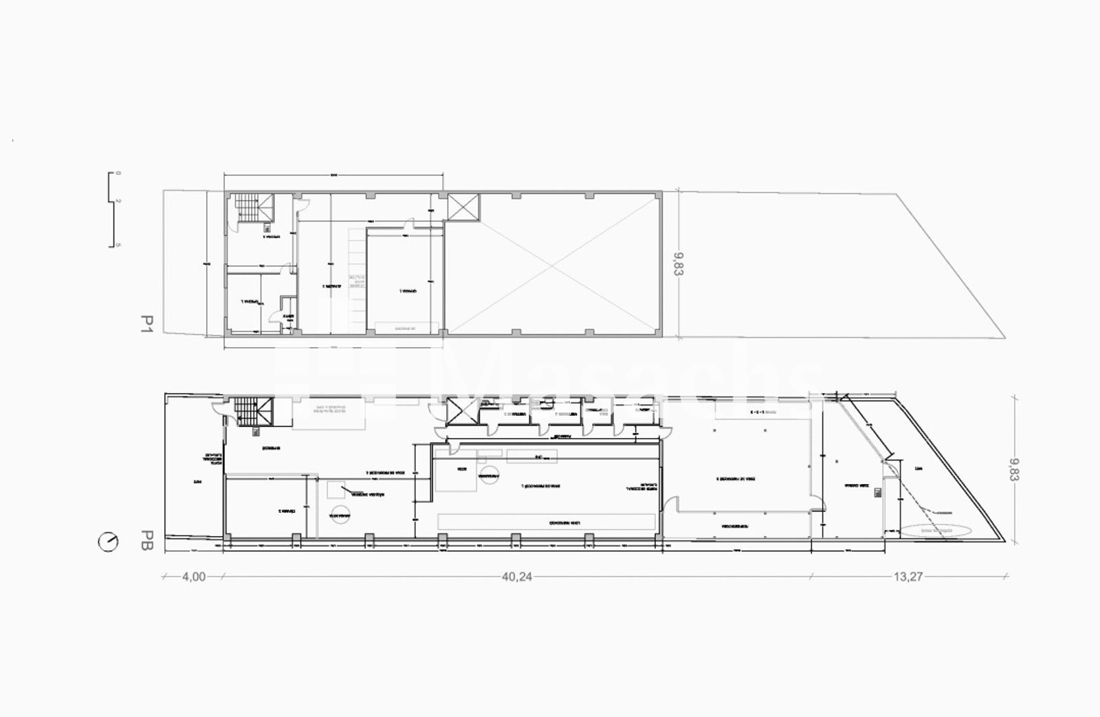
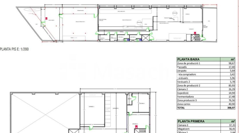
- Superfície total: 517,24 m².
- Planta baixa: 398,97 m².
- Primera planta: 118,27 m².
- Oficines: 27,88 m².
- Dimensions: 10 metres d’amplada per 45 metres de llargada.
- Alçada lliure: 4 metres, ideal per a emmagatzematge i producció.
- Estructura: Mixta d’acer i formigó, garantint solidesa i resistència.
- Coberta: Xapa galvanitzada.
- Accessos: Disposa d’accés per a vianants i portó per a vehicles industrials.
- Instal·lacions: Aire condicionat centralitzat amb torre de refrigeració. Properament disposarà de càmera de congelació i altell.
- Ascensor/montacàrregues per facilitar la mobilitat interna.
Ús ideal:
Aquesta nau és perfecta per a inversió.
Informació addicional:
- Estat de conservació: Bo.
- Disponibilitat: Actualment llogada.
Avantatges de la propietat:
- Excel·lent ubicació al polígon industrial Can Verdalet, Tordera.
- Connexió amb la C-32, AP-7 i N-II, facilitant el transport i la logística.
- Nau versàtil amb instal·lacions de refrigeració i climatització.

