Descripció
Ubicació i accessibilitat:
Nau industrial en lloguer o venda situada al polígon industrial Can Verdalet, Tordera, una de les zones estratègiques del Maresme, Barcelona. La nau compta amb accés ràpid a la C-32 i l’AP-7, principals eixos de comunicació que faciliten la distribució i logística a la regió. A més, està ben connectada amb la N-II, permetent un fàcil desplaçament cap a Barcelona i Girona. La zona disposa de servei de transport públic amb parades d’autobús properes i l’estació de tren de Tordera a pocs minuts.
Característiques de la nau:
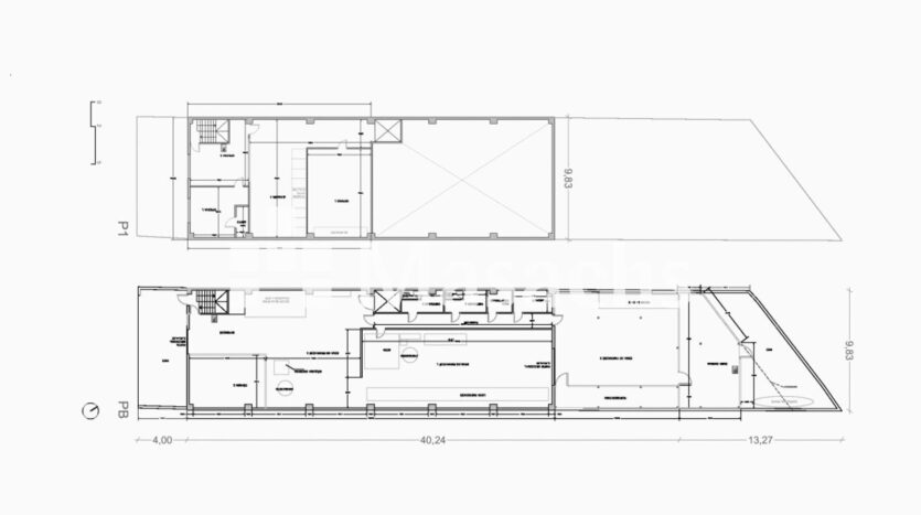
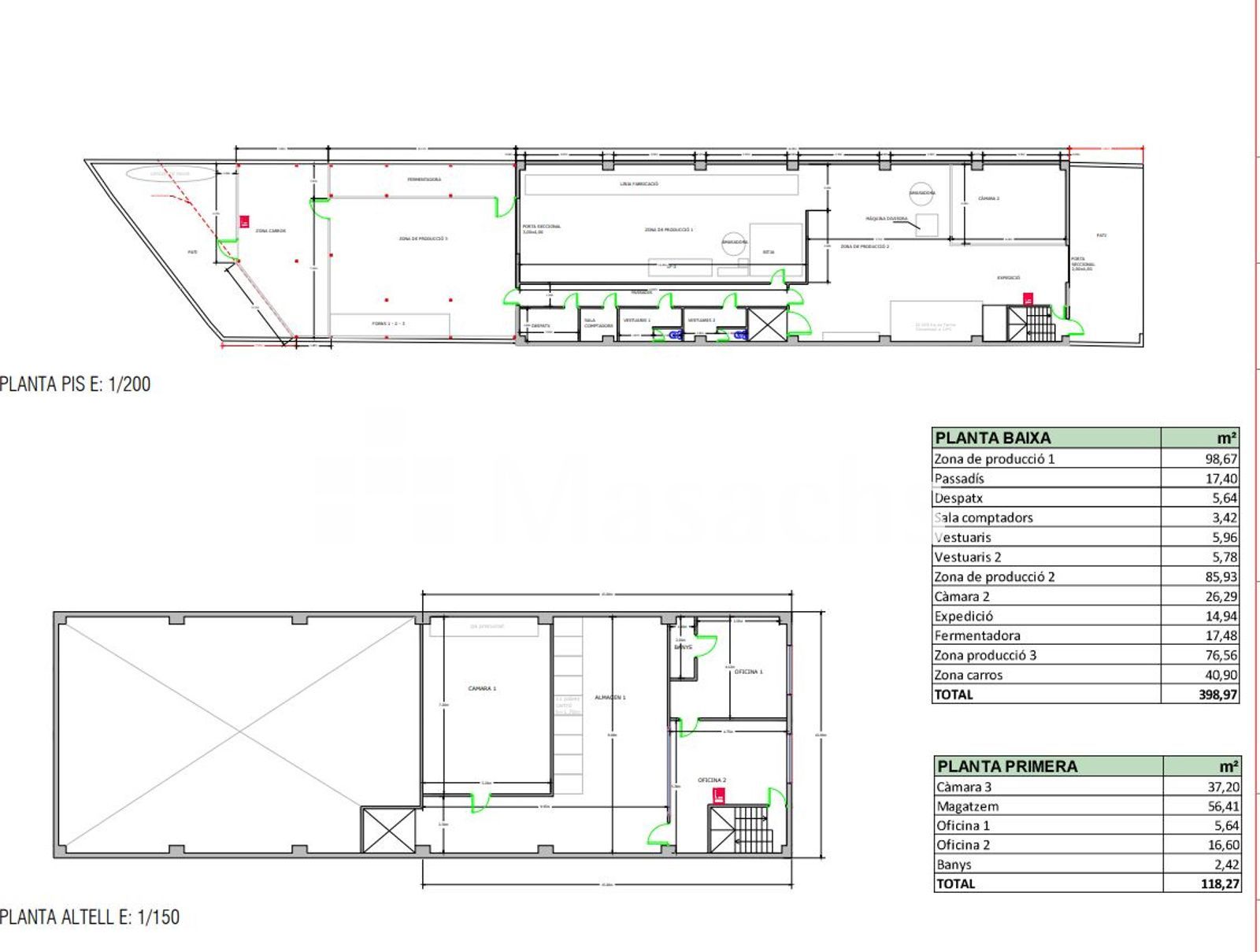
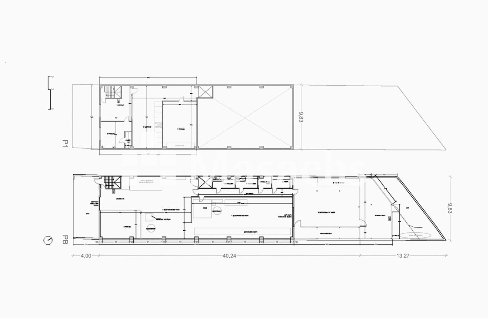
– Superfície total: 517,24 m².
– Planta baixa: 398,97 m².
– Primera planta: 118,27 m².
– Oficines: 27,88 m².
– Dimensions: 10 metres d’ample per 45 metres de llarg.
– Alçada lliure: 4 metres, ideal per a emmagatzematge i producció.
– Estructura: Mixta d’acer i formigó, garantint solidesa i resistència.
– Coberta: Xapa galvanitzada.
– Accessos: Compta amb accés per a vianants i portó per a vehicles industrials.
– Instal·lacions: Aire condicionat centralitzat amb torre de refrigeració. Pròximament disposarà de cambra de congelació i altell.
– Ascensor/muntacàrregues per facilitar la mobilitat interna.
Ús ideal:
Aquesta nau és perfecta per a emmagatzematge, amb espai i característiques ideals per a múltiples activitats empresarials.
Informació addicional:
– Estat de conservació: Bo.
– Disponibilitat: Immediata.
Avantatges de la propietat:
– Excel·lent ubicació al polígon industrial Can Verdalet, Tordera.
– Connexió amb C-32, AP-7 i N-II, facilitant el transport i la logística.
– Nau versàtil amb instal·lacions de refrigeració i climatització.








