Descripció
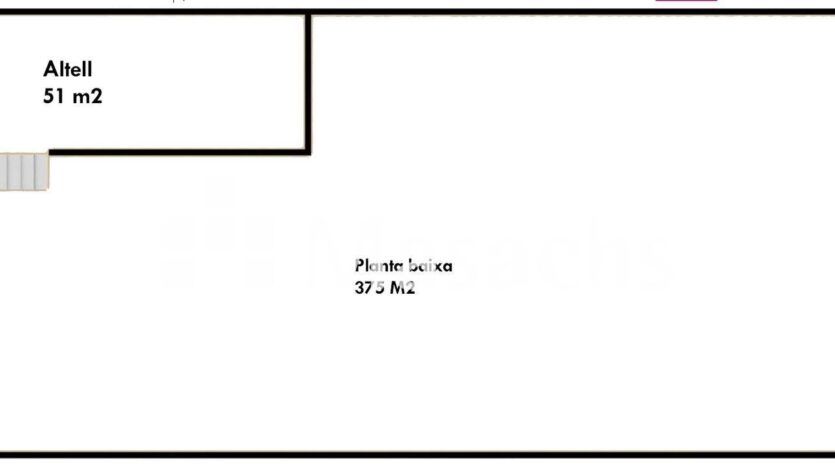
Nau industrial en lloguer a Ripollet, amb una superfície total de 462 m². La nau ofereix 375 m² de planta baixa i un altell de 51 m² destinat a oficines, dissenyat per optimitzar l’espai d’operacions i administratiu.
Disposa de tots els serveis donats d’alta, incloent subministrament d’aigua i potència elèctrica de 43 kW, per suportar necessitats industrials exigents. La nau presenta una amplada de 11 metres i una longitud de 33,25 metres, amb una alçada de 5,80 metres, garantint espais amplis i diàfans per a tràilers i operacions de càrrega i descàrrega eficients. Les seves característiques inclouen coberta de fibrociment, fals sostre, murs tallafocs, sistema de BIES i detecció automàtica d’incendis.
La nau està situada al Polígon La Clota i és un espai ideal per a activitats industrials, gràcies a la seva ubicació estratègica i excel·lent connexió amb vies de transport principals com la C-58, C-17, la C-33 i la N-150.
Disponible en febrer de 2025.

