Descripció
Ubicació i accessibilitat
  Local comercial de lloguer situat a Terrassa, a peu de carrer i en zona comercial amb gran visibilitat i trànsit de vianants.
  Excel·lent ubicació per a activitats comercials o de restauració lleugera, en un entorn urbà consolidat i ben comunicat.
Característiques del local
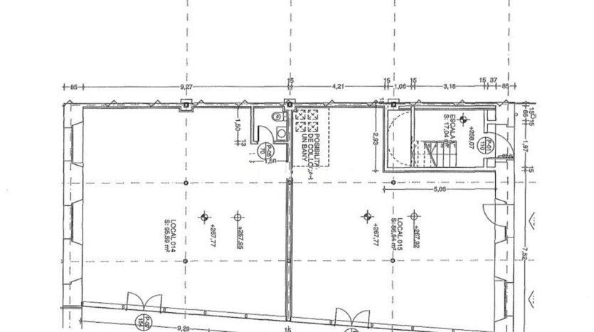
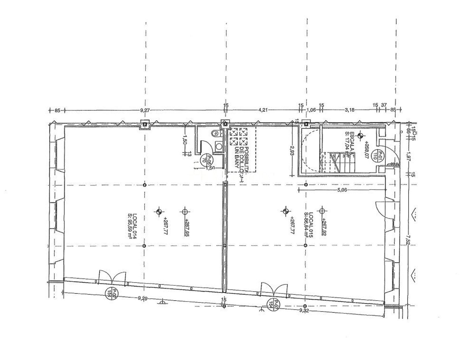
- Superfície total: 95,59 m².
- Ubicació: A peu de carrer.
- Aparador amb bona visibilitat.
- Disposa de cuina.
- Instal·lacions: Llum i aigua donades d’alta.
Ús ideal
Ideal per a petits negocis, comerços o activitats de restauració que busquin un local en zona comercial, llest per iniciar l’activitat i amb subministraments actius.
Informació addicional
- Estat de conservació: Bo.
- Disponibilitat: Desembre de 2025.
Avantatges de la propietat
- Local a peu de carrer en zona comercial de Terrassa.
- Aparador amb visibilitat directa des de la via pública.
- Disposa de cuina funcional.


 
         
                    





 
                                
                          
                          
                          
                          
                            
                             
                             
                             
                            

