Descripció
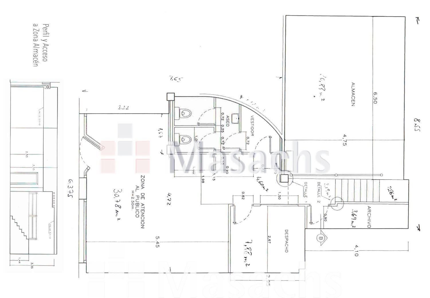
Local comercial en lloguer a Castelldefels. Aquest local comercial de 101 m² situat a peu de carrer és ideal per a negocis que busquen una ubicació accessible i ben comunicada. Amb 70 m² en planta baixa i 30 m² de magatzem, ofereix l’espai perfecte per a emmagatzematge i operacions comercials internes. La façana amb aparador garanteix una gran visibilitat, perfecta per atreure l’atenció de clients potencials.
Les característiques tècniques del local són un valor afegit: disposa de bany doble, aire condicionat per a una climatització òptima, i persiana metàl·lica de seguretat amb comandament i clau. A més, els subministraments ja estan donats d’alta, facilitant una obertura ràpida del negoci.
Amb una alçada de sostre de 1,90 m, aquest local és ideal per a activitats comercials. Si busques un local comercial a Castelldefels amb bones condicions i ubicació, aquest espai pot ser la inversió ideal per impulsar la teva activitat.








