Description
Location and accessibility
Detached Type C industrial warehouse for sale in Sant Feliu de Buixalleu (Girona), in the La Selva region, strategically located with excellent access to AP-7 and C-35, ensuring connectivity to Girona, Barcelona and the Mediterranean corridor.
Property features
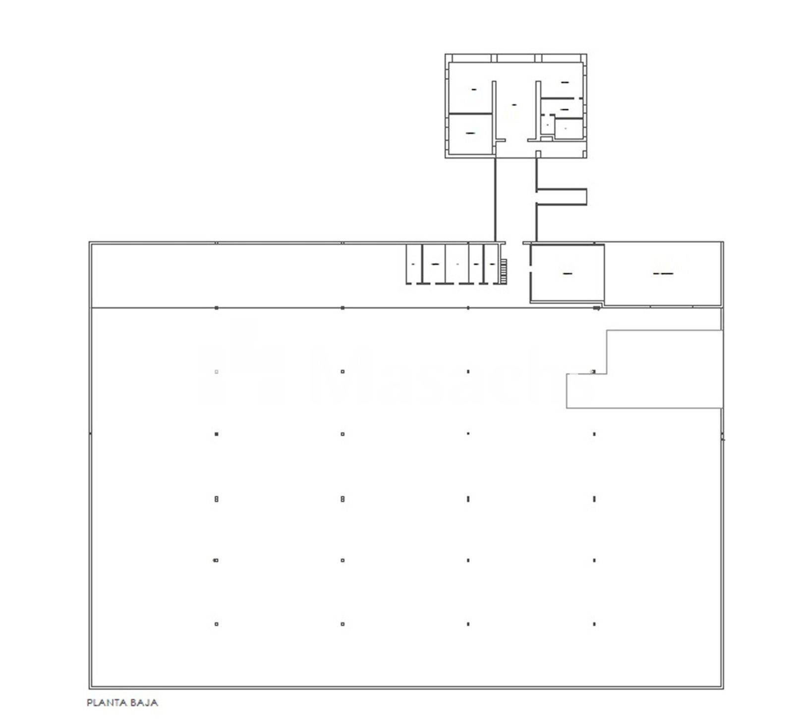
– Total built area: 4,712.10 sqm.
– Ground floor: 3,937.50 sqm.
– Mezzanine: 562.50 sqm.
– Auxiliary building: 212.10 sqm.
– Plot size: 7,815.90 sqm.
– Steel structure.
– Metal sheet roof.
– Air conditioning.
– Hot water via electric boiler.
Ideal use
– Industrial activities.
– Logistics operations.
– Companies needing a detached warehouse with large plot.
Additional information
– Condition: average
– Availability: immediate
Property advantages
– Detached warehouse with large outdoor space
– Good logistics operations
– Direct connection to AP-7 and C-35

