Description
Location and accessibility
Industrial premises for sale located in Terrassa, in the Can Palet neighbourhood (District 3), a well-established urban area with high industrial and commercial activity. Excellent connections to the main transport routes such as the N-150, the C-58, the AP-7 and the B-40, and close to key roads such as Avinguda de les Glòries Catalanes, Rubí road and Santa Eulàlia avenue, ensuring easy mobility within and outside the city.
Property features
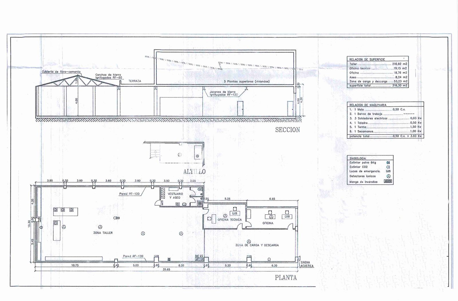
- Total surface area: 330 m².
- Workshop area.
- Office and technical office.
- Restroom with changing area.
- Loading and unloading area of approximately 53 m².
Ideal use
Ideal for industrial activities, workshops, technical services or companies requiring a functional space with a work area, offices and a loading/unloading area, in a highly accessible and visible location.
Additional information
- Condition: good.
- Availability: immediate.
Property advantages
- Excellent connections to the N-150, the C-58, the AP-7 and the B-40.
- Includes a loading and unloading area.
- Surrounding area with nearby services and facilities (Parc Vallès, Vallparadís, supermarkets, schools and sports centres).






