Description
Location and accessibility:
Office for rent located in the El Pedró neighborhood of Cornellà de Llobregat, one of the most dynamic and central areas of Baix Llobregat, Barcelona. This space has excellent access via the Esplugues road, as well as direct connection to the B-23, C-245 and the access node to the A-2 and Ronda de Dalt (B-20), allowing for agile mobility to Barcelona and the rest of the metropolitan area. Furthermore, it is very well connected by public transport: Tram (T1 and T2) a few minutes’ walk away, metro L5 (Cornellà Centre), RENFE lines R4 and R7, and urban and interurban buses (lines 67, 68 and 95).
Office characteristics:
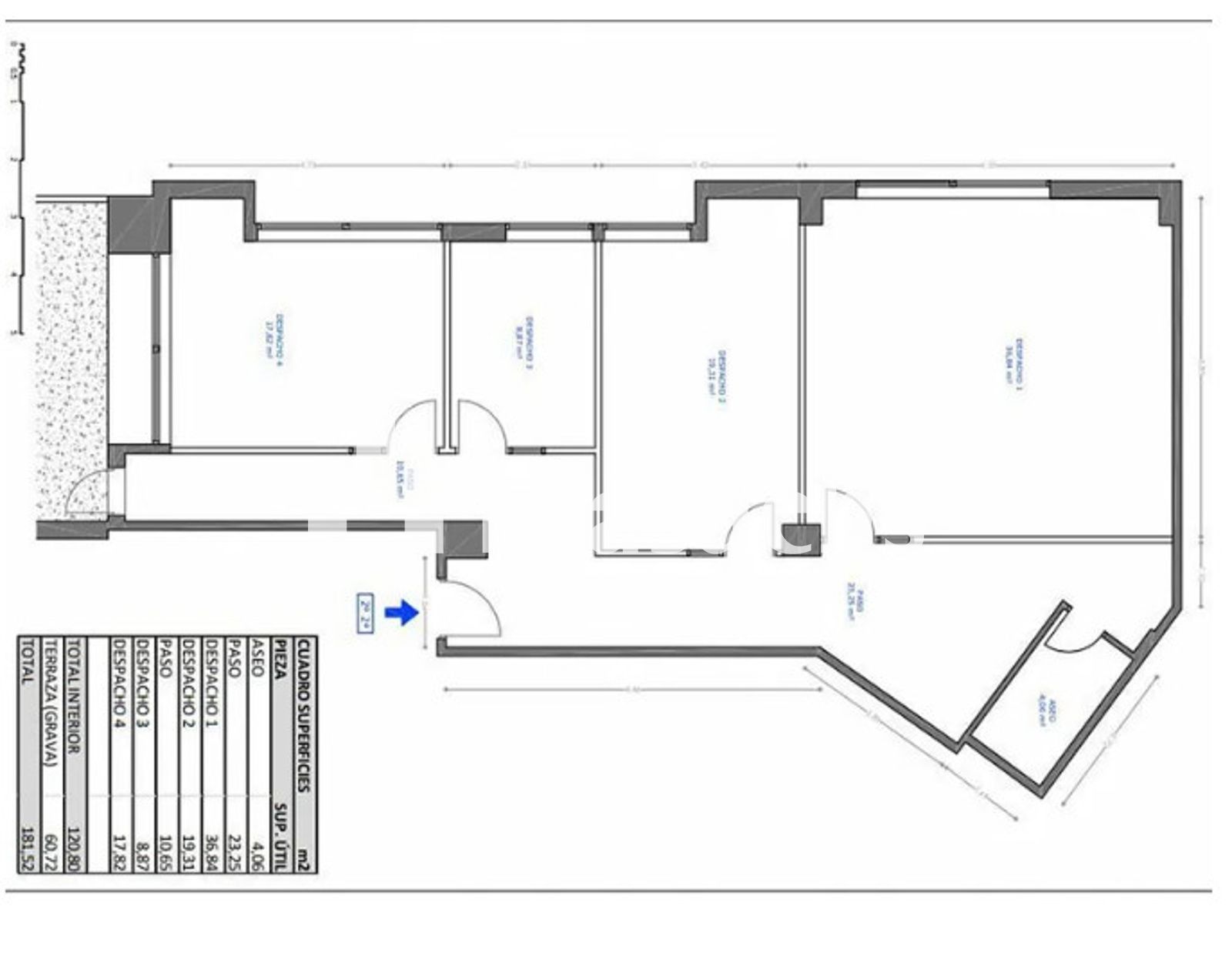
– Total area: 120.8 m² on the second floor.
– Terrace area: 60.72 m².
– Layout: In four rooms (36.84 m², 8.87 m², 19.31 m² and 17.82 m²)
– Large amount of natural light.
– Electrical installation (supplies disconnected) and aluminum windows.
– 1 private toilet.
Ideal use:
This office is perfect for professional office activities, administrative services, customer service or consulting, providing a comfortable and well-connected environment.
Additional information:
– Condition: Good condition
– Availability: Immediate
Property advantages:
– Excellent visibility in a consolidated location with corporate image.
– Direct connection to Barcelona and the metropolitan area by car and public transport.
– Environment with educational services, restaurants and shops, ideal for daily business life.

